Preloader
Pardavimui
Naujos statybos

Dviejų aukštų kotedžas su sodu ir garažu prie ežero Los Altose, Torreviecha

Torrevieja

  • Bendr. plotas, m²101 м2
  • Miegamieji2 Miegamieji
  • Vonia3 Vonia

Konvertuoti 330 000 €

TerasaSodasSandėliukasRūsysGrilisVidinis kiemas

Bendra informacija Rodyti žemėlapyje

  • Miestas: Torrevieja
  • Provincija: Alicante
  • Pakrantė: Costa Blanca
  • Statybos metai: 2020
  • Sklypo plotas, m²: 206
  • Terasos plotas, m²: 53
  • Balkonai / terasos: Taip
  • Garažo vietos: 2
  • Sodas: Taip
  • Atstumas iki jūros (m): 2000
  • Kalnuose: Taip
  • Miške: Taip
  • Kaimo vietovėje: Taip
  • Priemiestyje: Taip
  • Miesto centre: Taip
  • Sodybų kaime: Taip
  • Vaizdas į kalnus: Taip
  • Vaizdas į mišką: Taip
  • Vaizdas į jūrą: Taip
  • Vaizdas į ežerą: Taip
  • Vaizdas į upę: Taip
  • Panoraminis vaizdas: Taip
  • Vaizdas į gatvę: Taip

Aprašas

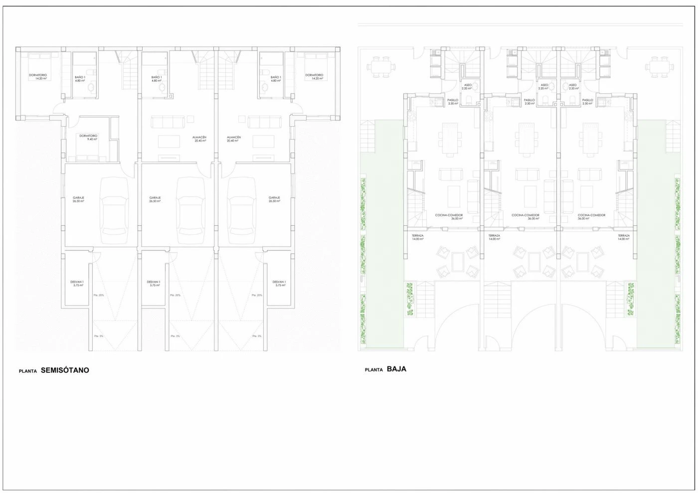
Parduodamas kotedžas populiariame Los Altoso rajone prie ežero, Torreviechoje.

Dviejų aukštų namo plotas – 101 kv. m. Jame yra:

  • dvi miegamosios kambariai,
  • trys vonios kambariai,
  • virtuvė,
  • erdvi svetainė su valgomojo zona,
  • 53 kv. m terasa,
  • stogo terasa (soliaris),
  • požeminis garažas keliems automobiliams.

206 kv. m sklype yra vidinis kiemelis ir sodas.

Namai yra šalia Saliñas de Torrevieja ežero, atstumas iki jūros – apie 2 km.

Torreviecha įsikūrusi Kosta Blankos pakrantėje. Čia vyrauja puikus saulėtas klimatas ir nuostabūs paplūdimiai. Miestas ribojasi ne tik su Viduržemio jūra, bet ir su dviem druskingais ežerais: rausvuoju Saliñas de Torrevieja ir smaragdinės spalvos Salada de la Mata. Jų vanduo ir gydomasis purvas savo sudėtimi ir populiarumu nenusileidžia Negyvajai jūrai. Šimtai žmonių atvyksta čia vien tam, kad išsimaudytų šiuose ežeruose.

Dėl šių ežerų Pietų Kosta Blankoje susiformavo unikalus klimatas, kurį Pasaulio sveikatos organizacija pripažino vienu sveikiausių pasaulyje.

Pėsčiomis pasiekiama visa reikalinga infrastruktūra: parduotuvės, restoranai, kavinės, parkai, mokykla, vaikų darželis, gydymo įstaigos.

Ideali vieta nuolatiniam gyvenimui, nepamirštamoms atostogoms arba nuomai.

Galima internetinė rezervacija, taip pat pirkimas išsimokėtinai su 3–6 % palūkanomis. Perkant nekilnojamąjį turtą Ispanijoje, galima gauti leidimą gyventi. Mūsų įmonė padeda sutvarkyti bet kokio tipo leidimą gyventi.

Patogumai

  • Terasa
  • Soliarumas
  • Sandėliukas
  • Sodas
  • Grilis
  • Spinta
  • Kiemo terasa
  • Rūsys
  • Virtuvės baldai
  • Įmontuotos spintos
  • Oro kondicionierius
  • Individualus šildymas
  • Signalizacija
  • Šarvuotos durys
  • Garažo vietos

Vaizdo įrašas

Vietovės

Panašūs objektai


Paskutiniai peržiūrėti objektai


WhatsApp