Preloader
Pardavimui
Naujos statybos

Moderni vila uždarame La Serena Golf komplekse, Los Alcázares kurorte

Los Alcázares

  • Bendr. plotas, m²103 м2
  • Miegamieji3 Miegamieji
  • Vonia2 Vonia

Konvertuoti 489 000 €

SodasSandėliukasGaražo vietosVidinis kiemasVaizdas į gatvę

Bendra informacija Rodyti žemėlapyje

  • Miestas: Los Alcázares
  • Provincija: Murcia
  • Pakrantė: Costa Calída
  • Sklypo plotas, m²: 274
  • Terasos plotas, m²: 62
  • Balkonai / terasos: Taip
  • Garažo vietos: 1
  • Sodas: Taip
  • Baseinas: Taip
  • Atstumas iki jūros (m): 2000
  • Kalnuose: Taip
  • Miške: Taip
  • Kaimo vietovėje: Taip
  • Priemiestyje: Taip
  • Miesto centre: Taip
  • Sodybų kaime: Taip
  • Vaizdas į kalnus: Taip
  • Vaizdas į mišką: Taip
  • Vaizdas į jūrą: Taip
  • Vaizdas į ežerą: Taip
  • Vaizdas į upę: Taip
  • Panoraminis vaizdas: Taip
  • Vaizdas į gatvę: Taip

Aprašas

Moderni vila uždarame komplekse tiesiogiai iš statytojo La Serena Golf rajone, Los Alcázares miestelyje.

Los Alcázares – vaizdingas pajūrio miestelis Mursijos regione, įsikūręs vakarinėje Mar Menor pakrantėje, didžiausioje sūraus vandens lagūnoje Europoje. Kurortas garsėja ilgu smėlio paplūdimiu su labai ramiu ir šiltu vandeniu, idealiai tinkančiu šeimos poilsiui ir vandens sportui.

Los Alcázares taip pat žinomas dėl gydomųjų Mar Menor purvų, turinčių terapinių savybių. Miestelyje išvystyta infrastruktūra: gausu restoranų, parduotuvių, golfo aikštynų. Čia galima mėgautis tradicine ispaniška atmosfera ir švelniu Viduržemio jūros klimatu ištisus metus.

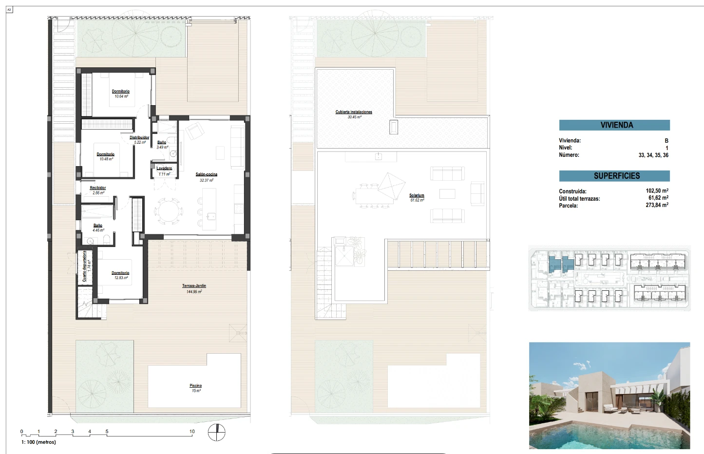
Vilos plotas – 102,50 kv. m. Numatyta:

  • trys miegamieji;
  • darbui pritaikytos dvi vonios kambario patalpos;
  • svetainė su atvira virtuve;
  • erdvus 61,62 kv. m stogo soliaris, iš kurio atsiveria puikūs vaizdai į golfo aikštyną ir Mar Menor jūrą.

Virtuvė

Funkcionalus virtuvės išplanavimas derinamas su šiuolaikiniais baldais ir gerai apgalvotu erdvės išnaudojimu. Darbo stalviršiai iš itin atsparaus kvarco arba granito yra estetiški ir lengvai prižiūrimi. Virtuvė pilnai sukomplektuota – įrengta visa reikalinga buitinė technika, įskaitant gartraukį ir keraminę kaitlentę.

Vonios kambariai

Vonios kambariuose įrengta balta, modernaus dizaino keramikinė santechnika. Montuojamos grūdinto stiklo dušo kabinos ir vienasvirtiai maišytuvai iš pirmaujančių gamintojų. Pakabinamos praustuvų spintelės papildytos veidrodžiais su LED apšvietimu, derančiu prie bendro interjero stiliaus. Grindims ir sienoms parinktos aukštos kokybės, eleganciją ir praktiškumą derinančios apdailos medžiagos.

Gyventojai gali naudotis bendru baseinu ir apželdintais, poilsiui skirtais sodais. Kiekvieną vilą papildo privatus kiemelis, išklotas dirbtine žole.

Jūsų patogumui įrengta požeminė parkavimo vieta su išankstine instaliacija elektromobilio krovimui, taip pat atskiras sandėliukas kiekvienam būstui.

Galima rezervacija internetu bei pirkimas išsimokėtinai su 3–6 % palūkanomis. Perkant nekilnojamąjį turtą Ispanijoje galima gauti leidimą gyventi šalyje. Mūsų įmonė padeda sutvarkyti visų tipų leidimus gyventi.

Patogumai

  • Soliarumas
  • Sandėliukas
  • Sodas
  • Spinta
  • Kiemo terasa
  • Virtuvės baldai
  • Virtuvės įranga
  • Įmontuotos spintos
  • Oro kondicionierius
  • Šildomos grindys vonioje
  • Privatus baseinas
  • Garažo vietos

Vaizdo įrašas

Vietovės

Panašūs objektai


Paskutiniai peržiūrėti objektai


WhatsApp