Preloader
Pardavimui
Naujos statybos

Modernūs butai su baseinu San Miguel de Salinas kurortiniame komplekse

San Miguel de Salinas

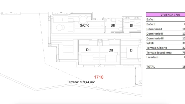
  • Bendr. plotas, m²190 м2
  • Miegamieji3 Miegamieji
  • Vonia2 Vonia

Konvertuoti 274 900 €

Vaizdas į jūrą

Bendra informacija Rodyti žemėlapyje

  • Miestas: San Miguel de Salinas
  • Provincija: Alicante
  • Pakrantė: Costa Blanca
  • Baseinas: Taip
  • Kalnuose: Taip
  • Miške: Taip
  • Kaimo vietovėje: Taip
  • Priemiestyje: Taip
  • Miesto centre: Taip
  • Sodybų kaime: Taip
  • Vaizdas į kalnus: Taip
  • Vaizdas į mišką: Taip
  • Vaizdas į jūrą: Taip
  • Vaizdas į ežerą: Taip
  • Vaizdas į upę: Taip
  • Panoraminis vaizdas: Taip
  • Vaizdas į gatvę: Taip

Aprašas

Atraskite išskirtinį gyvenamojo nekilnojamojo turto projektą, kuriame dera modernus dizainas ir prabanga, siūlantis unikalią galimybę gyventi kurortinio tipo aplinkoje. Projektas statomas vaizdingoje San Miguel de Salinas vietovėje ir žada tapti puikiu komforto oaze.

Siūlomi būstai – nuo dviejų iki trijų miegamųjų, kurių plotas nuo 93 m² iki 191 m², todėl galima pasirinkti pagal individualius poreikius. Interjeras kruopščiai apgalvotas: įrengta atvira amerikietiško tipo virtuvė su sala, sujungta su svetaine ir valgomojo zona – idealu šiuolaikiniam gyvenimo būdui. Konkurencingos kainos – nuo 184 900 € iki 315 900 €.

Butuose numatyta oro kondicionavimo sistema tiek miegamuosiuose, tiek svetainėje (padaryta išankstinė instaliacija). Karštas vanduo ruošiamas efektyvia aerotermijos sistema. Dvigubi stiklo paketai languose užtikrina puikų apšvietimą ir gerą šilumos izoliaciją.

Komplekse įrengta erdvi 195 m² ploto bendro naudojimo baseino zona, 19 m² vaikų baseinas, vaikų žaidimų aikštelė ir moderni lauko sporto salė, todėl poilsis ir pramogos tampa natūralia kasdienio gyvenimo dalimi.

Modernią architektūrą išskiria surenkamojo gelžbetonio fasadai, o pastatų projektas orientuotas į komfortą ir tvarumą. Numatyta statybų pabaiga – 2026 metai. Gyventojams taip pat bus prieinami tokie patogumai kaip bendras soliarumas ant stogo ir bendro naudojimo automobilių stovėjimo aikštelė, dar labiau keliant gyvenimo kokybę.

Mažiausia pardavimo komisija – 12 %, todėl projektas patrauklus ir investuotojams, ieškantiems nekilnojamojo turto sparčiai augančioje Ispanijos rinkoje.

San Miguel de Salinas – strategiškai patogi vieta, kurioje rasite viską, ko reikia kasdieniam gyvenimui: prekybos centrus, parduotuves, mokyklas, jaukius restoranus ir kavines. Ramioje ispaniškoje miestelio aplinkoje darniai dera tradicijos ir šiuolaikiškumas.

Artumas prie garsiausių golfo aikštynų, didelių prekybos centrų ir nuostabių mėlynąja vėliava pažymėtų paplūdimių užtikrina pramogas bei poilsį įvairiausių pomėgių turintiems žmonėms.

Daugiau išsamios informacijos, pristatymų ir užklausų rasite: „Presentaciones“.

Patogumai

  • Soliarumas
  • Privatus baseinas
  • Bendras baseinas
  • Sporto salė
  • Vaikų zona
  • Vaikų baseinas
  • Virtuvė su sala

Vaizdo įrašas

Vietovės

Panašūs objektai


Paskutiniai peržiūrėti objektai


WhatsApp