Preloader
Pardavimui
Naujos statybos

Modernūs individualūs namai šalia golfo aikštyno Algorfoje, Alicante

Algorfa

  • Bendr. plotas, m²198 м2
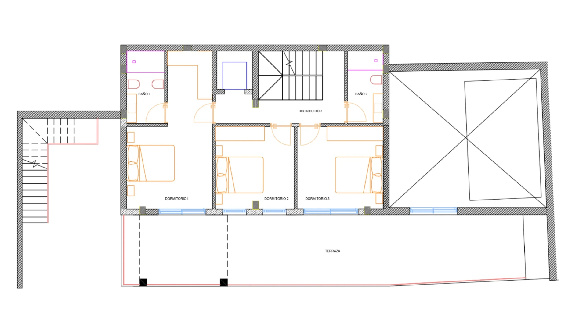
  • Miegamieji3 Miegamieji
  • Vonia3 Vonia

Konvertuoti 465 000 €

SodasRūsys

Bendra informacija Rodyti žemėlapyje

  • Miestas: Algorfa
  • Provincija: Alicante
  • Pakrantė: Costa Blanca
  • Sklypo plotas, m²: 176
  • Sodas: Taip
  • Baseinas: Taip
  • Kalnuose: Taip
  • Miške: Taip
  • Kaimo vietovėje: Taip
  • Priemiestyje: Taip
  • Miesto centre: Taip
  • Sodybų kaime: Taip
  • Vaizdas į kalnus: Taip
  • Vaizdas į mišką: Taip
  • Vaizdas į jūrą: Taip
  • Vaizdas į ežerą: Taip
  • Vaizdas į upę: Taip
  • Panoraminis vaizdas: Taip
  • Vaizdas į gatvę: Taip

Aprašas

Pristatome jums išskirtinį gyvenamąjį kompleksą iš 8 individualių namų, pasižyminčių šiuolaikišku ir funkcionaliu dizainu, apsuptų išskirtinės gamtos šalia golfo aikštyno. Projektas įsikūręs Alikantėje, Algorfoje, ir siūlo unikalią gyvenimo patirtį.

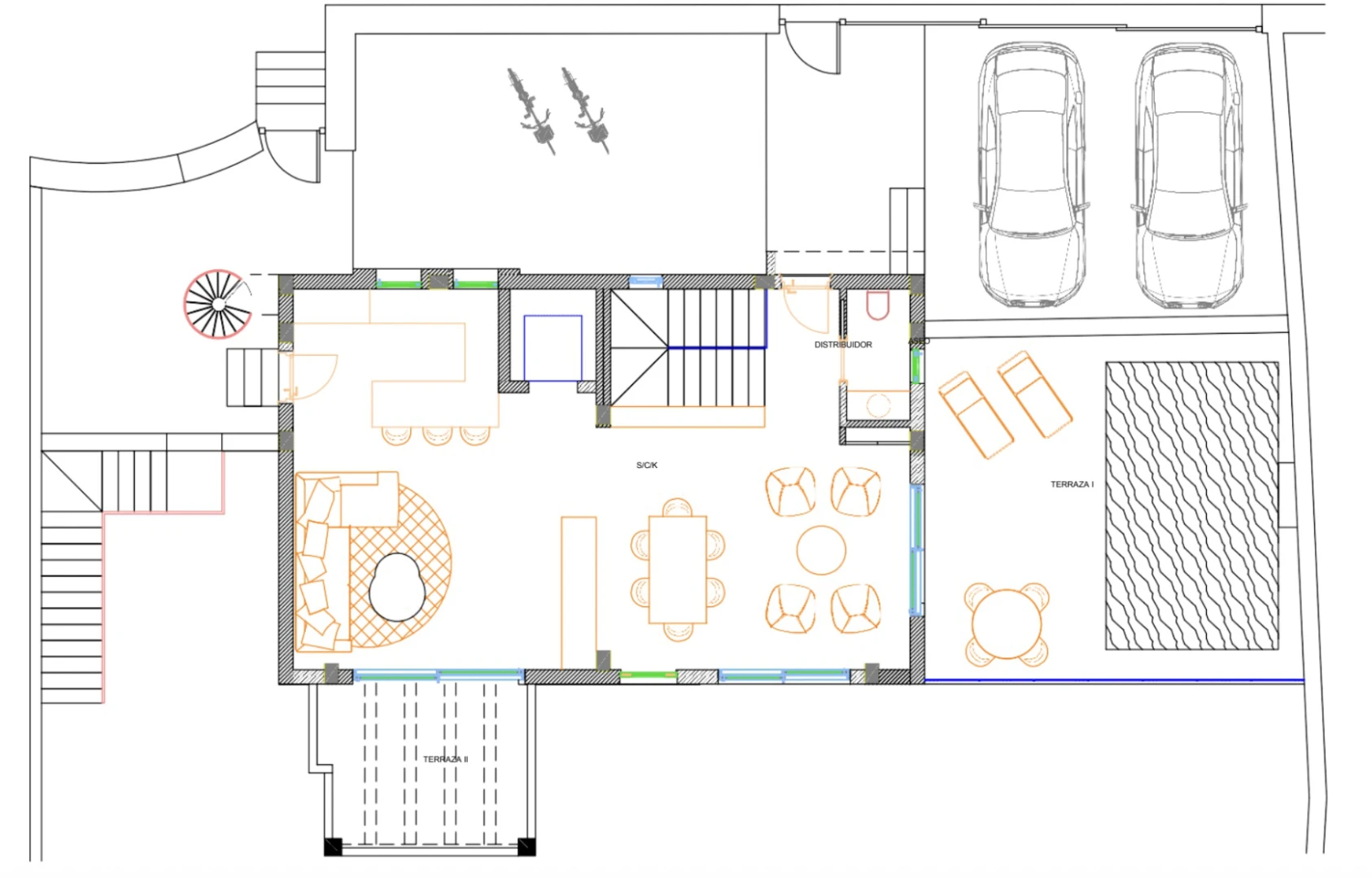
Šiuose namuose yra nuo 3 iki 4 miegamųjų, o gyvenamasis plotas svyruoja nuo 199 m² iki 291 m². Projekte numatyta įrengta atviro tipo virtuvė, sujungta su erdvia ir šviesia svetaine.

  • keraminės grindų dangos
  • grindinis šildymas
  • dvigubi stiklo paketai
  • karšto vandens tiekimo sistema su šilumos siurbliu

Gyventojai galės mėgautis erdviomis terasomis, privačiu soliariumu, sodu ir galimybe įsirengti nuosavą baseiną. Taip pat numatyta privati automobilių stovėjimo sistema ir apželdintos poilsio zonos, sukurtos ramybei ir komfortui užtikrinti.

Strategiškai patogi vieta leidžia mėgautis Viduržemio jūros gyvenimo būdu: vos 15 minučių iki nuostabių Guardamar del Segura paplūdimių ir apie 35 minutės iki Alikantės oro uosto. Algorfa apsupta visų reikalingų paslaugų, golfo aikštynų ir yra netoli žavių miestelių, tokių kaip Ciudad Quesada ir Benijófar.

Objektų statybos pabaiga numatoma 2025 metais. Tai idealus derinys tarp šiuolaikinio dizaino ir aukštos statybos kokybės, tinkantis tiek nuolatiniam gyvenimui, tiek kaip antroji būsto galimybė poilsiui.

Dėl detalesnės informacijos ir susitikimo dėl apžiūros prašome susisiekti.

Patogumai

  • Soliarumas
  • Sodas
  • Rūsys
  • Privatus baseinas
  • Žaliosios zonos
  • Privatus parkingas

Vaizdo įrašas

Vietovės

Panašūs objektai


Paskutiniai peržiūrėti objektai


WhatsApp