Preloader
Pardavimui
Naujos statybos

Modernūs kotedžai prie jūros su privačiu sodu ir terasa Denijoje

Denia

  • Bendr. plotas, m²202 м2
  • Miegamieji3 Miegamieji
  • Vonia3 Vonia

Konvertuoti 395 000 €

Sodas

Bendra informacija Rodyti žemėlapyje

  • Miestas: Denia
  • Provincija: Alicante
  • Pakrantė: Costa Blanca
  • Sodas: Taip
  • Baseinas: Taip
  • Kalnuose: Taip
  • Miške: Taip
  • Kaimo vietovėje: Taip
  • Priemiestyje: Taip
  • Miesto centre: Taip
  • Sodybų kaime: Taip
  • Vaizdas į kalnus: Taip
  • Vaizdas į mišką: Taip
  • Vaizdas į jūrą: Taip
  • Vaizdas į ežerą: Taip
  • Vaizdas į upę: Taip
  • Panoraminis vaizdas: Taip
  • Vaizdas į gatvę: Taip

Aprašas

Mėgaukitės gyvenimu vos keli žingsniai nuo Viduržemio jūros išskirtiniame būstų projekte privilegijuotoje Denijos vietoje. Čia ramybė, šiuolaikinis stilius ir Viduržemio jūros dvasia susilieja į ypatingą aplinką.

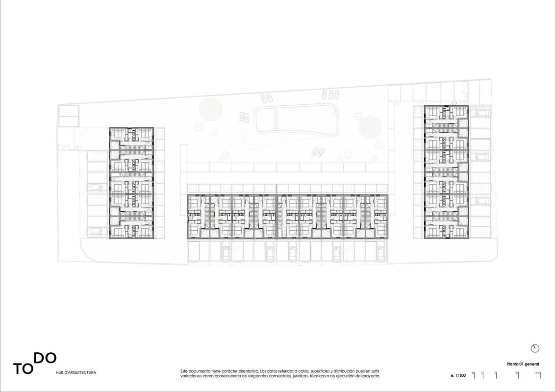
Šis privatus projektas apima 20 triaukščių kotedžų, suprojektuotų maksimaliam komfortui. Kiekvienas būstas turi erdvią terasą kiekviename aukšte, privatų sodą su tiesioginiu išėjimu į bendruomenės baseiną ir dengtą automobilio stovėjimo vietą, įskaičiuotą į kainą.

Pirmame aukšte atvira erdvė jungia svetainę su valgomojo zona ir pilnai įrengta amerikietiško tipo virtuve. Erdves gausiai apšviečia natūrali šviesa, yra tiesioginis išėjimas į terasą ir sodą. Taip pat įrengtas svečių tualetas.

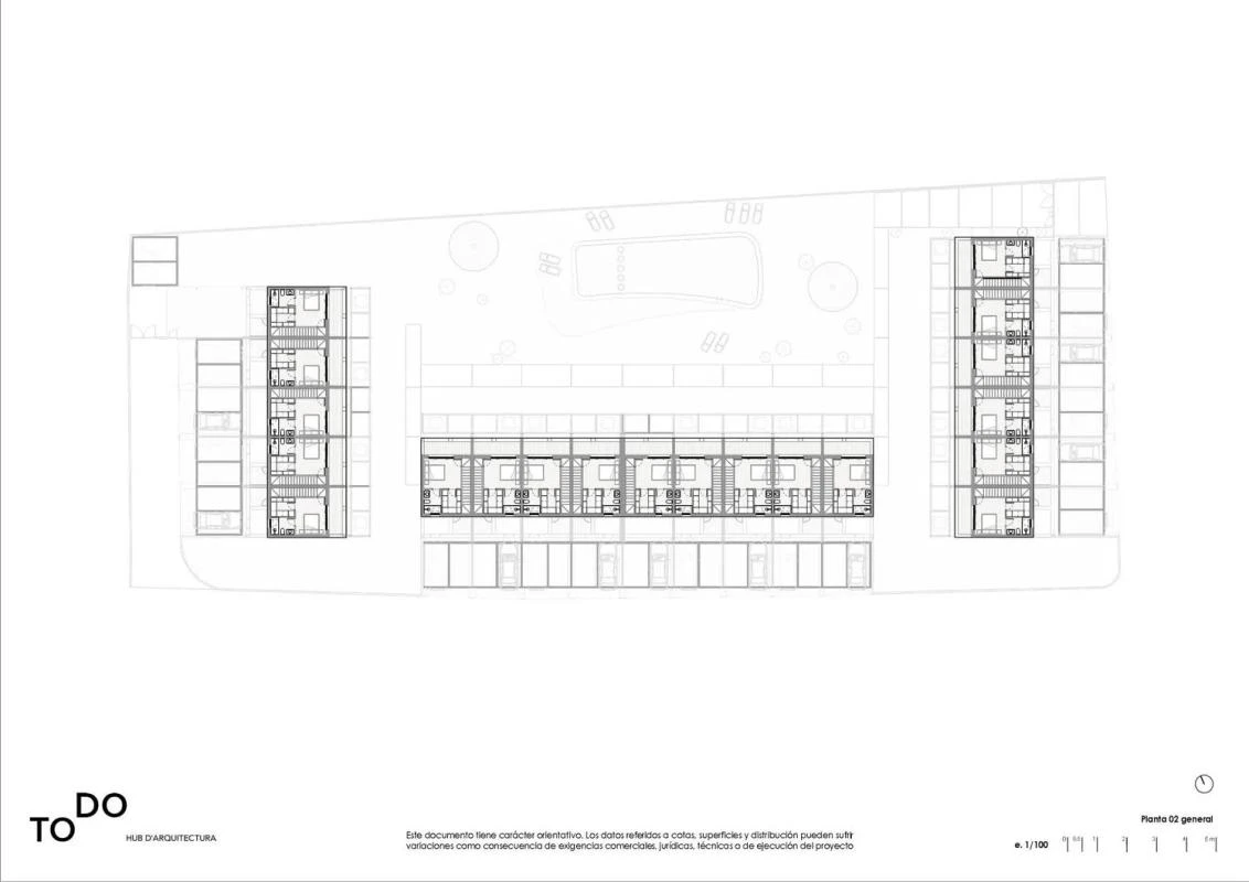
Antrame aukšte yra du miegamieji, vienas iš jų – su balkonu, ir pilnai įrengtas vonios kambarys. Viršutiniame aukšte įrengtas pagrindinis miegamasis su erdvia drabužine, vonios kambariu en suite ir privačia terasa, idealia poilsiui.

Bendrosios erdvės sukurtos skatinant kaimynystės bendruomeniškumą ir gerą savijautą – želdynai formuoja jaukią ir lengvai pasiekiamą aplinką.

Vos penkios minutės pėsčiomis iki nuostabaus Les Deveses paplūdimio, garsėjančio natūraliomis kopomis ir puikiomis sąlygomis vandens sportui. Kompleksas siūlo gyvybingą, tačiau ramią pakrantės gyvenimo atmosferą. Netoliese gausu pajūrio barų, restoranų, prekybos centrų ir didelis prekybos centras su visomis reikalingomis paslaugomis.

Golfo mėgėjams vos už kelių minučių automobiliu pasiekiamas „Oliva Nova“ golfo klubas, o netoliese driekiasi žygio ir pasivaikščiojimo maršrutai Sierra Segària ir Montgó kalnuose. Puikiai išvystyti keliai leidžia vos per 20 minučių pasiekti Deniją ir jos uostą, iš kurio kursuoja keltai į Balearų salas.

Būstų perdavimas numatytas 2026 m. balandžio mėn.

Jei ieškote namų, kuriuose gamta, modernus dizainas ir komfortas darniai susijungtų išskirtinėje aplinkoje, tai – jūsų galimybė. Nepraleiskite šio išskirtinio pasiūlymo Denijoje!

Patogumai

  • Sodas
  • Privatus baseinas
  • Žaliosios zonos

Vaizdo įrašas

Vietovės

Panašūs objektai


Paskutiniai peržiūrėti objektai


WhatsApp