Preloader
Pardavimui
Naujos statybos

Modernus viršutinis bungalas su soliariumu San Miguel de Salinas mieste

San Miguel de Salinas

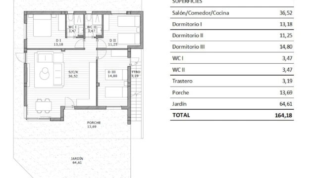
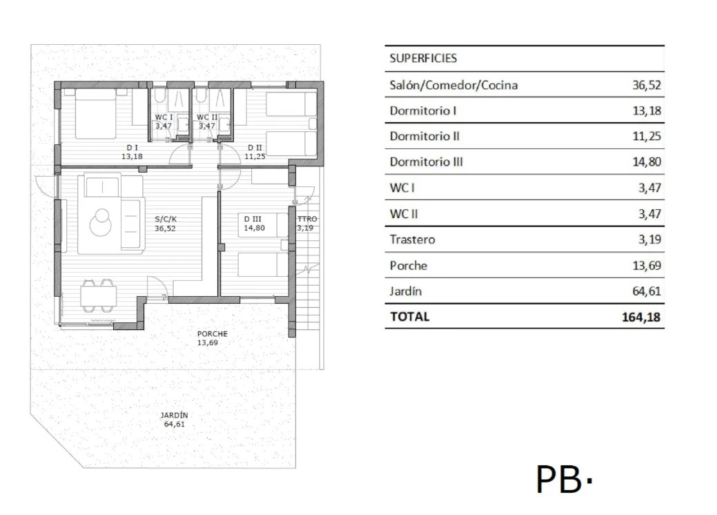
  • Bendr. plotas, m²83 м2
  • Miegamieji3 Miegamieji
  • Vonia2 Vonia

Konvertuoti 249 900 €

TerasaSodasSandėliukasGrilisGaražo vietosVidinis kiemasVaizdas į gatvę

Bendra informacija Rodyti žemėlapyje

  • Miestas: San Miguel de Salinas
  • Provincija: Alicante
  • Pakrantė: Costa Blanca
  • Statybos metai: 2025
  • Sklypo plotas, m²: 50
  • Terasos plotas, m²: 14
  • Aukštas: 1
  • Balkonai / terasos: Taip
  • Garažo vietos: 1
  • Sodas: Taip
  • Baseinas: Taip
  • Atstumas iki jūros (m): 12200
  • Kalnuose: Taip
  • Miške: Taip
  • Kaimo vietovėje: Taip
  • Priemiestyje: Taip
  • Miesto centre: Taip
  • Sodybų kaime: Taip
  • Vaizdas į kalnus: Taip
  • Vaizdas į mišką: Taip
  • Vaizdas į jūrą: Taip
  • Vaizdas į ežerą: Taip
  • Vaizdas į upę: Taip
  • Panoraminis vaizdas: Taip
  • Vaizdas į gatvę: Taip

Aprašas

Siūlome naują, šiuolaikišką viršutinio aukšto bungalą San Miguel de Salinas mieste.

Bendras būsto plotas – 82,69 kv. m. Bungalow sudaro svetainė su valgomojo zona, atvira virtuvė, trys miegamieji ir du vonios kambariai, 27,83 kv. m terasa bei nuosavas 88,86 kv. m stogo soliariumas.

Į kainą įskaitoma: grindinis šildymas vonios kambariuose, pilnas virtuvės įrengimas su buitine technika, oro kondicionavimo sistemos paruošimas, taip pat lauko ir vidaus apšvietimas.

Naujas bungalas iš statytojo yra rajone su geriausiais panoraminiais vaizdais. Komplekse – erdvūs bungalow su žaliąja zona ir bendrais baseinais, jis apsuptas golfo aikštynų ir prekybos centrų, vos už 12 km nuo Orihuela Costa paplūdimių.

Uždaras gyvenamasis kompleksas užima didelę teritoriją, kurioje įrengtas 135,10 kv. m baseinas, sodai, poilsio zonos, vaikų žaidimų ir sporto aikštelės, automobilių stovėjimo aikštelė.

San Miguel de Salinas – nedidelis Ispanijos miestelis Alikantės provincijoje, vadinamas mažu rojumi prie druskos lagūnų. Dėl savo padėties jis pasižymi unikaliu gydomuoju mikroklimatu. Mineralais prisotintas oras, 320 saulėtų dienų per metus, švelnios žiemos, visus metus prieinamos šviežios daržovės ir vaisiai daro šią vietą idealia poilsiui ir sveikatos stiprinimui.

Nuolatiniam gyvenimui čia yra visa reikalinga infrastruktūra: švietimo įstaigos, medicinos centras, vaistinės, bankai, restoranai, barai, sporto klubas, biblioteka, prekybos centrai, turgus, parkų zonos.

Galima būsto pirkimo internetu procedūra, taip pat pirkimas išsimokėtinai per banką su 4–6 % metinėmis palūkanomis.

Perkant nekilnojamąjį turtą Ispanijoje, galima gauti leidimą gyventi. Mūsų įmonė padeda sutvarkyti bet kokio tipo leidimą gyventi.

Patogumai

  • Terasa
  • Sandėliukas
  • Sodas
  • Grilis
  • Spinta
  • Kiemo terasa
  • Virtuvės baldai
  • Virtuvės įranga
  • Įmontuotos spintos
  • Oro kondicionierius
  • Individualus šildymas
  • Šildomos grindys vonioje
  • Internetas
  • Signalizacija
  • Šarvuotos durys
  • Bendras baseinas
  • Garažo vietos

Vaizdo įrašas

Vietovės

Panašūs objektai


Paskutiniai peržiūrėti objektai


WhatsApp