Preloader
Pardavimui
Naujos statybos

Nauja moderni vila su baseinu Ciudad Quesada mieste, arti jūros ir golfo laukų

Ciudad Quesada

  • Bendr. plotas, m²159 м2
  • Miegamieji3 Miegamieji
  • Vonia3 Vonia

Konvertuoti 929 305 €

TerasaSodasSandėliukasGrilisGaražo vietosVidinis kiemasVaizdas į gatvę

Bendra informacija Rodyti žemėlapyje

  • Miestas: Ciudad Quesada
  • Provincija: Alicante
  • Pakrantė: Costa Blanca
  • Sklypo plotas, m²: 529
  • Terasos plotas, m²: 158
  • Balkonai / terasos: Taip
  • Garažo vietos: 1
  • Sodas: Taip
  • Baseinas: Taip
  • Atstumas iki jūros (m): 6000
  • Kalnuose: Taip
  • Miške: Taip
  • Kaimo vietovėje: Taip
  • Priemiestyje: Taip
  • Miesto centre: Taip
  • Sodybų kaime: Taip
  • Vaizdas į kalnus: Taip
  • Vaizdas į mišką: Taip
  • Vaizdas į jūrą: Taip
  • Vaizdas į ežerą: Taip
  • Vaizdas į upę: Taip
  • Panoraminis vaizdas: Taip
  • Vaizdas į gatvę: Taip

Aprašas

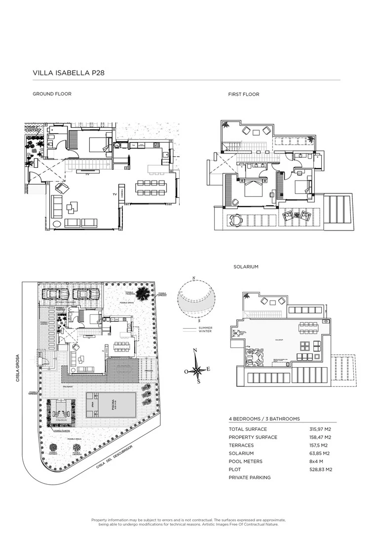
Parduodama nauja dviejų aukštų vila Ciudad Quesada mieste. Bendras vilos plotas – 158,47 m². Namuose yra trys miegamieji, trys vonios kambariai, penkios terasos, kurių bendras plotas 157,5 m², ir 63,85 m² soliarumas ant stogo.

Sklypo plotas – 528,83 m², jame įrengtas 8 x 4 m baseinas. Vidaus interjeras įrengtas šiuolaikiniu stiliumi, naudojant aukštos kokybės medžiagas.

Visai šalia yra prekybos centrai, restoranai, sveikatingumo bei pramogų centrai – visa tai palengvina kasdienį gyvenimą. Geriausi paplūdimiai pasiekiami vos per maždaug 10 minučių automobiliu. Patogi vieta netoli tokių miestų kaip Alikantė ir Torrevieja, iki Alikantės oro uosto – apie 35 minutės kelio.

Ciudad Quesada – išskirtinis gyvenamasis rajonas, kuriame daugiausia stovi individualios vilos Donya Pepa ir Lo Pepin zonose. Čia rasite gerų restoranų ir populiarų 4 žvaigždučių viešbutį „La Laguna“. Miestas yra tik apie 3 km nuo smėlėtų Guardamar, El Moncayo ir La Mata paplūdimių. Šiek tiek toliau driekiasi Torrevieja ir Orihuela Costa paplūdimiai, kur įsikūrę žinomi prekybos centrai „Habaneras“ ir „La Zenia Boulevard“.

Rajoną supa golfo laukai: La Finca, La Marquesa, Villamartin, Campoamor ir Las Colinas Golf. Netoli yra dideli miestai – Alikantė ir Mursija.

Netoli Ciudad Quesada yra unikali gamtos vertybė – nacionalinis draustinis su garsiaisiais druskos ežerais. Miestas įsikūręs ant kalvos ir nuo pakrantės atskirtas laukų bei citrusų plantacijų, todėl ši vieta yra itin išskirtinė.

Vos per 10 minučių automobiliu pasieksite geriausius Kosta Blankos pakrantės paplūdimius. Tai puiki vieta nuolat gyventi arba poilsiauti, taip pat nuomoti būstą.

Galima nuotolinė pirkimo procedūra, taip pat įsigijimas su banko kreditu už 3–6 % metinių palūkanų. Perkant nekilnojamąjį turtą Ispanijoje, galima gauti leidimą laikinai gyventi šalyje. Mūsų įmonė padeda sutvarkyti visų tipų leidimus gyventi.

Patogumai

  • Terasa
  • Soliarumas
  • Sandėliukas
  • Sodas
  • Grilis
  • Spinta
  • Kiemo terasa
  • Virtuvės baldai
  • Virtuvės įranga
  • Įmontuotos spintos
  • Oro kondicionierius
  • Individualus šildymas
  • Šildomos grindys vonioje
  • Greitas internetas
  • Signalizacija
  • Šarvuotos durys
  • Privatus baseinas
  • Garažo vietos

Vaizdo įrašas

Vietovės

Panašūs objektai


Paskutiniai peržiūrėti objektai


WhatsApp