Preloader
Pardavimui
Naujos statybos

Nauja šiuolaikinė vila su baseinu ir dideliu sklypu El Pinós mieste

El Pinós

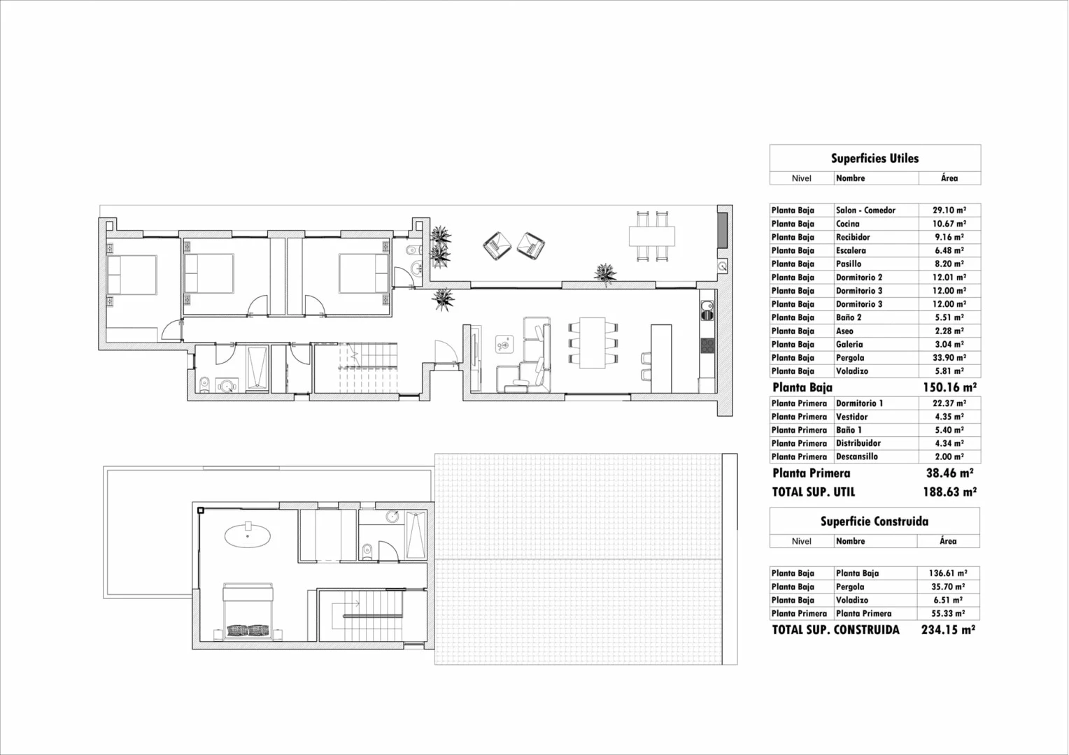
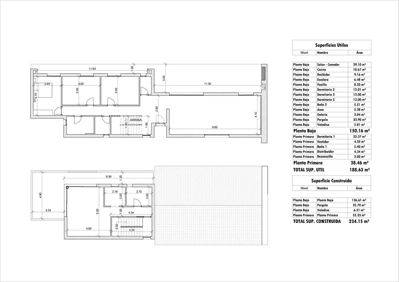
  • Bendr. plotas, m²234 м2
  • Miegamieji4 Miegamieji
  • Vonia2 Vonia

Konvertuoti 628 000 €

TerasaSodasSandėliukasRūsysVaizdas į kalnusGrilisVidinis kiemasVaizdas į gatvę

Bendra informacija Rodyti žemėlapyje

  • Miestas: El Pinós
  • Provincija: Alicante
  • Pakrantė: Costa Blanca
  • Statybos metai: December 2024
  • Sklypo plotas, m²: 10000
  • Terasos plotas, m²: 42
  • Balkonai / terasos: Taip
  • Garažo vietos: 2
  • Sodas: Taip
  • Baseinas: Taip
  • Atstumas iki jūros (m): 60000
  • Kalnuose: Taip
  • Miške: Taip
  • Kaimo vietovėje: Taip
  • Priemiestyje: Taip
  • Miesto centre: Taip
  • Sodybų kaime: Taip
  • Vaizdas į kalnus: Taip
  • Vaizdas į mišką: Taip
  • Vaizdas į jūrą: Taip
  • Vaizdas į ežerą: Taip
  • Vaizdas į upę: Taip
  • Panoraminis vaizdas: Taip
  • Vaizdas į gatvę: Taip

Aprašas

Pristatome naują, modernaus stiliaus vilą iš statytojo El Pinós mieste. Namas pastatytas 10 000 m² sklype su puikiais vaizdais.

El Pinós – savivaldybė Valensijos regione, Ispanijoje. Ji įsikūrusi vakarinėje Alikantės provincijos dalyje, Medio Vinalopó rajone, besiribojančiame su Mursijos regionu. El Pinós (Alikantė) galėsite mėgautis nuostabiais kalnų vaizdais, saule ir šio ramiojo krašto tyla.

Dvivietis namas susideda iš:

  • 4 miegamųjų;
  • 2 vonios kambarių;
  • garderobinės;
  • svečių tualeto;
  • svetainės su daugiau nei 3 m aukščio lubomis;
  • atviros, įrengtos virtuvės su integruotais baldais.

Į kainą įskaičiuota:

  • paruošta oro kondicionavimo instaliacija su šildymo ir vėsinimo sistema;
  • grindinis šildymas visame name su centrinės šildymo sistemos įranga;
  • automatinės žaliuzės;
  • įmontuotos spintos;
  • paruošta kamino instaliacija svetainėje;
  • pilnai įrengti vonios kambariai su aukščiausios kokybės santechnika ir aksesuarais;
  • šarvuotos įėjimo durys.

Sklype įrengta:

  • automobilių stovėjimo aikštelė keliems automobiliams;
  • 32 m² ploto baseinas;
  • didelis sutvarkytas sodas su automatine laistymo sistema.

Pagal savininko pageidavimą sklype galima įrengti kepsninės zoną, vaikų žaidimų aikštelę ar kitas poilsio erdves.

Bendras namo plotas – 234 m², terasos plotas – 42 m².

Statybai ir apdailai naudojamos tik aukštos kokybės medžiagos, kartu užtikrinant ekonomiškumą ir energinį efektyvumą. Namas pasižymi moderniu dizainu ir šiuolaikiška išvaizda. Tai išskirtinis ir komfortiškas būstas, leidžiantis mėgautis prabangia ir ramią aplinką.

Galima rezervacija internetu, taip pat įsigijimas išsimokėtinai su 3–6 % palūkanomis. Įsigijus nekilnojamąjį turtą Ispanijoje, galima gauti leidimą gyventi šalyje. Mūsų įmonė padeda sutvarkyti visų tipų leidimus gyventi.

Patogumai

  • Terasa
  • Soliarumas
  • Sandėliukas
  • Sodas
  • Grilis
  • Spinta
  • Kiemo terasa
  • Rūsys
  • Virtuvės baldai
  • Įmontuotos spintos
  • Automatinis laistymas
  • Oro kondicionierius
  • Individualus šildymas
  • Šildomos grindys vonioje
  • Šildomos grindys name
  • Greitas internetas
  • Signalizacija
  • Vaizdo telefonas
  • Šarvuotos durys
  • Privatus baseinas
  • Garažo vietos

Vaizdo įrašas

Vietovės

Panašūs objektai


Paskutiniai peržiūrėti objektai


WhatsApp