Preloader
Pardavimui
Naujos statybos

Nauja vienaaukštė vila su baseinu ir 10 000 m² sklypu El Pinós mieste

El Pinós

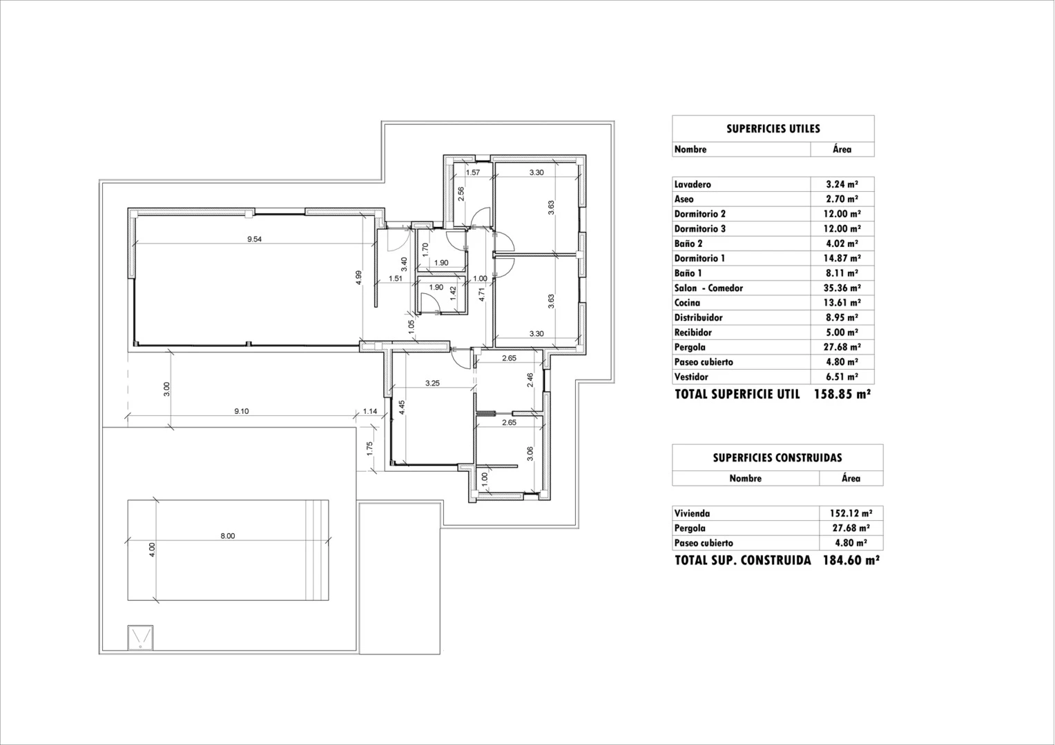
  • Bendr. plotas, m²184 м2
  • Miegamieji3 Miegamieji
  • Vonia2 Vonia

Konvertuoti 495 000 €

TerasaSodasSandėliukasRūsysVaizdas į kalnusGrilisVidinis kiemasVaizdas į gatvę

Bendra informacija Rodyti žemėlapyje

  • Miestas: El Pinós
  • Provincija: Alicante
  • Pakrantė: Costa Blanca
  • Statybos metai: December 2024
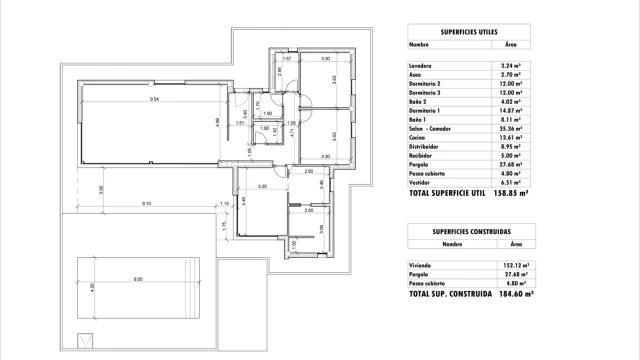
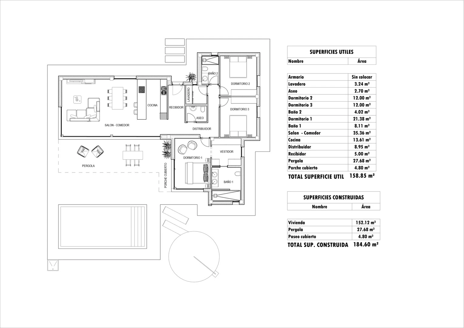
  • Sklypo plotas, m²: 10000
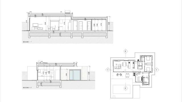
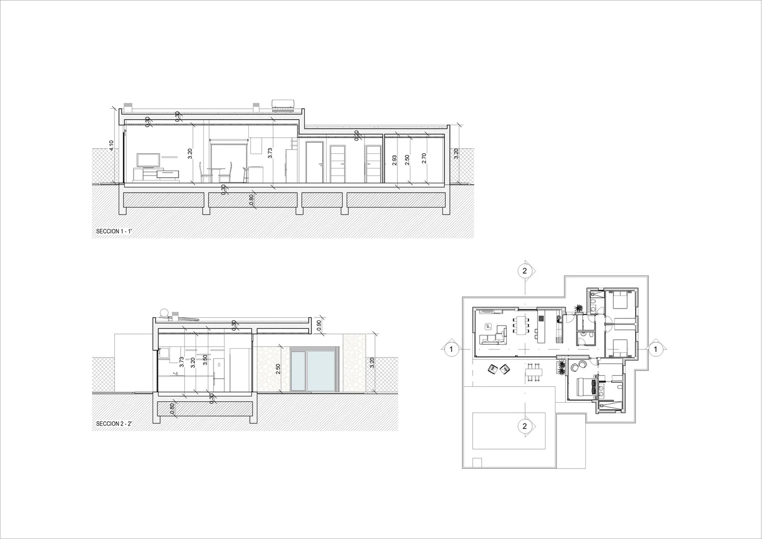
  • Terasos plotas, m²: 32
  • Balkonai / terasos: Taip
  • Garažo vietos: 2
  • Sodas: Taip
  • Baseinas: Taip
  • Atstumas iki jūros (m): 60000
  • Kalnuose: Taip
  • Miške: Taip
  • Kaimo vietovėje: Taip
  • Priemiestyje: Taip
  • Miesto centre: Taip
  • Sodybų kaime: Taip
  • Vaizdas į kalnus: Taip
  • Vaizdas į mišką: Taip
  • Vaizdas į jūrą: Taip
  • Vaizdas į ežerą: Taip
  • Vaizdas į upę: Taip
  • Panoraminis vaizdas: Taip
  • Vaizdas į gatvę: Taip

Aprašas

Pristatoma nauja vystytojo vila El Pinós mieste. Namas pastatytas dideliame 10 000 m² sklype, iš kurio atsiveria puikūs vaizdai.

Vienaaukštis namas susideda iš trijų miegamųjų, dviejų vonios kambarių, drabužinės, svečių tualeto, daugiau nei trijų metrų aukščio svetainės ir įrengtos atviros virtuvės. Namo plotas – 184 m², o terasos plotas – 32 m².

Į kainą įskaičiuota:

  • paruošta oro kondicionavimo sistema,
  • grindinis šildymas visame name su šildymo sistema,
  • automatinės žaliuzės,
  • įmontuotos spintos,
  • paruošta židinio įrengimo vieta svetainėje,
  • pilnai įrengti vonios kambariai,
  • šarvuotos įėjimo durys.

Sklype įrengta automobilių stovėjimo aikštelė keliems automobiliams, 32 m² ploto baseinas ir didelis sutvarkytas sodas su automatiniu laistymu. Pagal būsimo savininko pageidavimą čia galima įrengti kepsninės zoną ar vaikų žaidimų aikštelę.

Statant ir įrengiant namą naudojamos tik aukštos kokybės medžiagos, užtikrinančios ekonomiškumą ir energinį efektyvumą. Namas pasižymi šiuolaikiniu dizainu ir estetika. Tai unikali ir patogi gyvenamoji vieta, leidžianti mėgautis išskirtine aplinka.

El Pinós – savivaldybė Ispanijoje, Valensijos regione. Ji yra vakarinėje Alikantės provincijos dalyje, Medio Vinalopó regione, besiribojančiame su Mursijos regionu. El Pinós (Alikantė) miestelyje galėsite mėgautis nuostabiais kalnų vaizdais, saule ir šios vietovės ramybe.

Galima apžiūra ir rezervacija nuotoliniu būdu, taip pat įsigijimas išsimokėtinai su 3–6 % palūkanomis. Perkant nekilnojamąjį turtą Ispanijoje galima gauti leidimą gyventi šalyje. Mūsų įmonė padeda sutvarkyti bet kokio tipo leidimą gyventi.

Patogumai

  • Terasa
  • Soliarumas
  • Sandėliukas
  • Sodas
  • Grilis
  • Spinta
  • Kiemo terasa
  • Rūsys
  • Virtuvės baldai
  • Virtuvės įranga
  • Įmontuotos spintos
  • Automatinis laistymas
  • Oro kondicionierius
  • Individualus šildymas
  • Šildomos grindys vonioje
  • Šildomos grindys name
  • Greitas internetas
  • Signalizacija
  • Vaizdo telefonas
  • Šarvuotos durys
  • Privatus baseinas
  • Garažo vietos

Vaizdo įrašas

Vietovės

Panašūs objektai


Paskutiniai peržiūrėti objektai


WhatsApp