Preloader
Pardavimui
Naujos statybos

Nauji 2–3 miegamųjų apartamentai su baseinu ir terasa Orihueloje

Orihuela

  • Bendr. plotas, m²197 м2
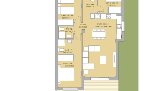
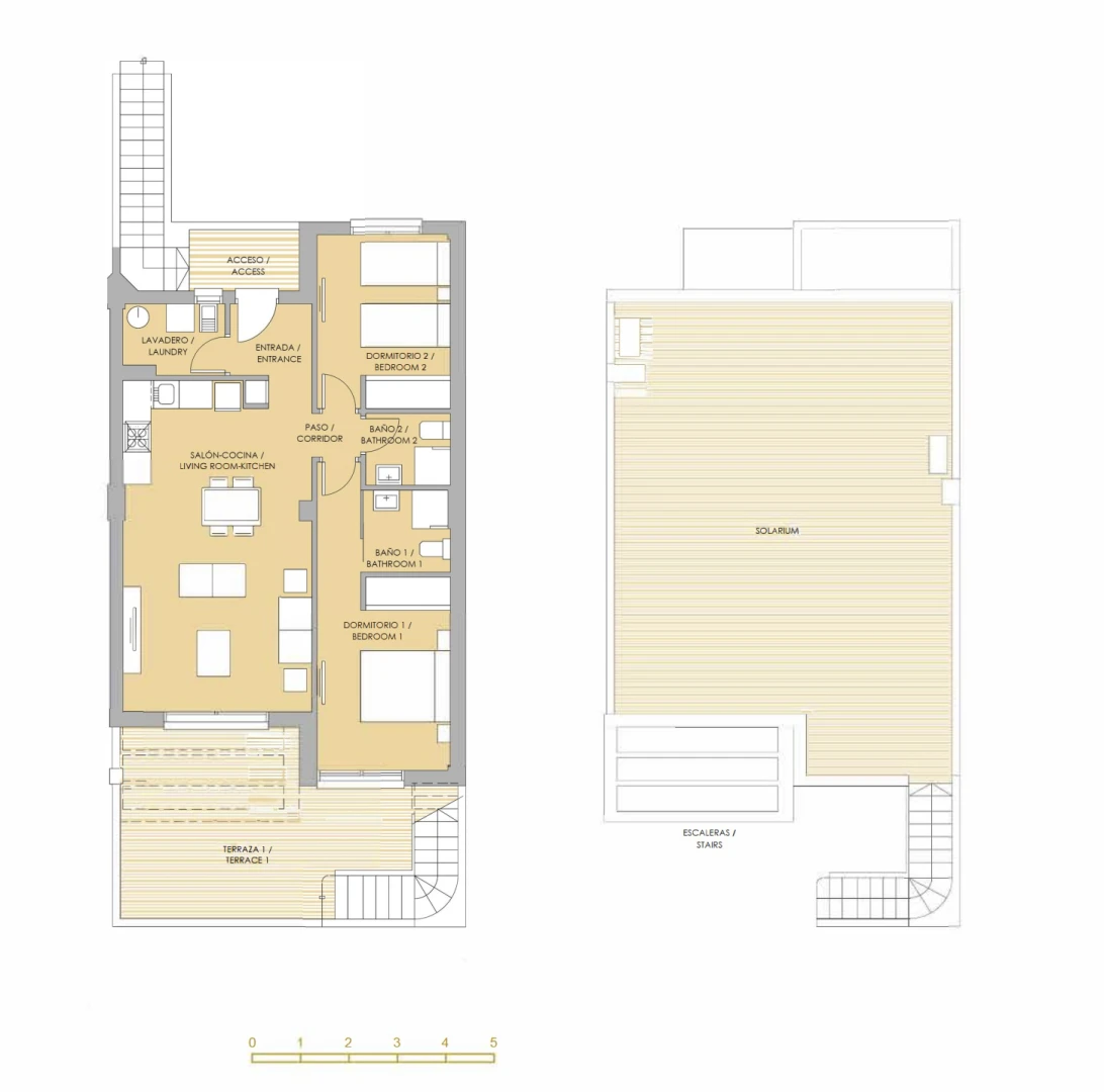
  • Miegamieji3 Miegamieji
  • Vonia2 Vonia

Konvertuoti 299 900 €

TerasaSodasVaizdas į gatvę

Bendra informacija Rodyti žemėlapyje

  • Miestas: Orihuela
  • Provincija: Alicante
  • Pakrantė: Costa Blanca
  • Balkonai / terasos: Taip
  • Sodas: Taip
  • Baseinas: Taip
  • Kalnuose: Taip
  • Miške: Taip
  • Kaimo vietovėje: Taip
  • Priemiestyje: Taip
  • Miesto centre: Taip
  • Sodybų kaime: Taip
  • Vaizdas į kalnus: Taip
  • Vaizdas į mišką: Taip
  • Vaizdas į jūrą: Taip
  • Vaizdas į ežerą: Taip
  • Vaizdas į upę: Taip
  • Panoraminis vaizdas: Taip
  • Vaizdas į gatvę: Taip

Aprašas

Šiame išskirtiniame naujos statybos projekte siūlomi apartamentai su 2–3 miegamaisiais, kiekvienuose įrengtos 2 vonios kambariai jūsų patogumui.

Strategiškai patogioje Orihuelos vietoje įsikūrę apartamentai yra pėsčiomis pasiekiamu atstumu nuo įvairių paslaugų. Netoliese rasite prekybos centrus, restoranus, vaistines ir golfo aikštynus – viską, ko reikia patogiam ir kasdieniškam gyvenimui.

Aukštos kokybės apdaila daro šiuos būstus rafinuotu pasirinkimu. Gyventojams skirta erdvi bendro naudojimo zona su baseinu, apželdintomis erdvėmis ir daugybe poilsio zonų, idealiai tinkančių visai šeimai.

Butų plotas – nuo 77 m² iki erdvių 235 m². Priklausomai nuo pasirinkto varianto, jie turi terasas, sodą arba stogo terasą (soliarį). Erdvioms terasoms dėka galima dar labiau mėgautis maloniu regiono klimatu, o kiekvieni namai tampa privačia užuovėja šalia gyvybingo Orihuelos centro.

Kainos svyruoja nuo 239 900 € iki 309 900 €, todėl šie būstai yra išskirtinė galimybė ieškantiems komforto ir šiuolaikiško stiliaus derinio unikalausje aplinkoje.

Patogumai

  • Terasa
  • Soliarumas
  • Sodas
  • Privatus baseinas
  • Bendras baseinas

Vaizdo įrašas

Vietovės

Panašūs objektai


Paskutiniai peržiūrėti objektai


WhatsApp