Preloader
Pardavimui
Naujos statybos

Nauji apartamentai ir penthausai prie jūros Torreviechoje

Torrevieja

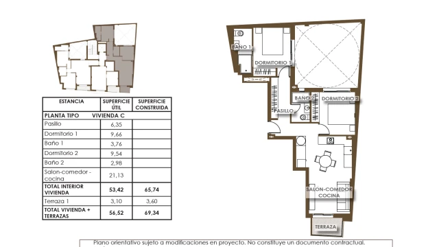
  • Bendr. plotas, m²78 м2
  • Miegamieji2 Miegamieji
  • Vonia2 Vonia

Konvertuoti 287 000 €

Liftas

Bendra informacija Rodyti žemėlapyje

  • Miestas: Torrevieja
  • Provincija: Alicante
  • Pakrantė: Costa Blanca
  • Liftas: Taip
  • Baseinas: Taip
  • Kalnuose: Taip
  • Miške: Taip
  • Kaimo vietovėje: Taip
  • Priemiestyje: Taip
  • Miesto centre: Taip
  • Sodybų kaime: Taip
  • Vaizdas į kalnus: Taip
  • Vaizdas į mišką: Taip
  • Vaizdas į jūrą: Taip
  • Vaizdas į ežerą: Taip
  • Vaizdas į upę: Taip
  • Panoraminis vaizdas: Taip
  • Vaizdas į gatvę: Taip

Aprašas

Ryškiame Torrevjechos pakrantės ruože šis naujas gyvenamasis kompleksas siūlo išskirtinį 16 būstų pasirinkimą: apartamentus, pirmo aukšto butus ir penthausus, sukurtus mėgautis Viduržemio jūros gyvenimo būdu visu jo pilnumu.

Privilegijuota vieta vos už 300 metrų nuo jūros leidžia kasdien džiaugtis paplūdimiais ir unikia gamtine aplinka, o vos už 1 kilometro esantis golfo aikštynas papildo pasiūlymą tiems, kurie ieško ramybės, poilsio ir geros savijautos.

Šiuolaikiškas dizainas ir funkcionalumas

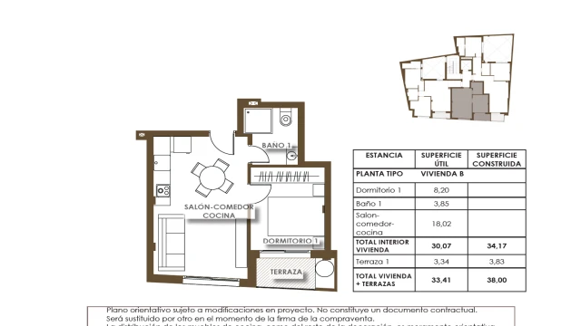
Kiekvienas butas kruopščiai suprojektuotas taip, kad erdvės būtų patogios, šviesios ir praktiškos. Komplekse siūlomi 1 ir 2 miegamųjų butai su 1 arba 2 vonios kambariais, atitinkantys skirtingus gyvenimo būdus.

  • Įrengtos sieninės spintos
  • Sumontuota oro kondicionavimo sistema komfortui visus metus

Taip išlaikoma ideali pusiausvyra tarp estetikos ir funkcionalumo.

Apartamentai ir žemutinių aukštų butai išsiskiria privačiomis terasomis, idealiomis poilsiui gryname ore. Penthausai papildomai siūlo soliarumus – papildomas erdves, kviečiančias atsipalaiduoti, degintis ar vakarieniauti su vaizdu į jūrą.

Privilegijuota aplinka ir vieta

Vos 300 metrų nuo pakrantės esanti vieta leidžia mėgautis pajūrio promenadomis, restoranų terasa prie jūros ir krištolo skaidrumo paplūdimiais, kurie ir yra Torrevjechos vizitinė kortelė.

  • Paplūdimiai ir promenados pėsčiomis pasiekiamu atstumu
  • Golfo aikštynas maždaug už 1 km
  • Alicante–Elče oro uostas už maždaug 45 km, patogiems vietiniams ir tarptautiniams skrydžiams

Bendros erdvės ir gyvenimo būdas

Gyvenamasis kompleksas siūlo bendro naudojimo erdves, sukurtas gyventojų gerovei ir bendravimui.

  • Bendras baseinas, apsuptas žaliųjų zonų – puikiai tinka vasaros dienoms
  • Bendras soliarumas – vieta poilsiui, bendravimui ar deginimuisi saugioje ir ramioje aplinkoje

Gyvenimas čia – tai harmoningas balansas tarp šiuolaikinio komforto, artumo jūrai ir tikros Viduržemio jūros atmosferos.

Patogumai

  • Soliarumas
  • Liftas
  • Privatus baseinas
  • Bendras baseinas

Vaizdo įrašas

Vietovės

Panašūs objektai


Paskutiniai peržiūrėti objektai


WhatsApp