Preloader
Pardavimui
Naujos statybos

Nauji modernūs namai Polope su panoraminiais vaizdais į jūrą ir kalnus

Polop

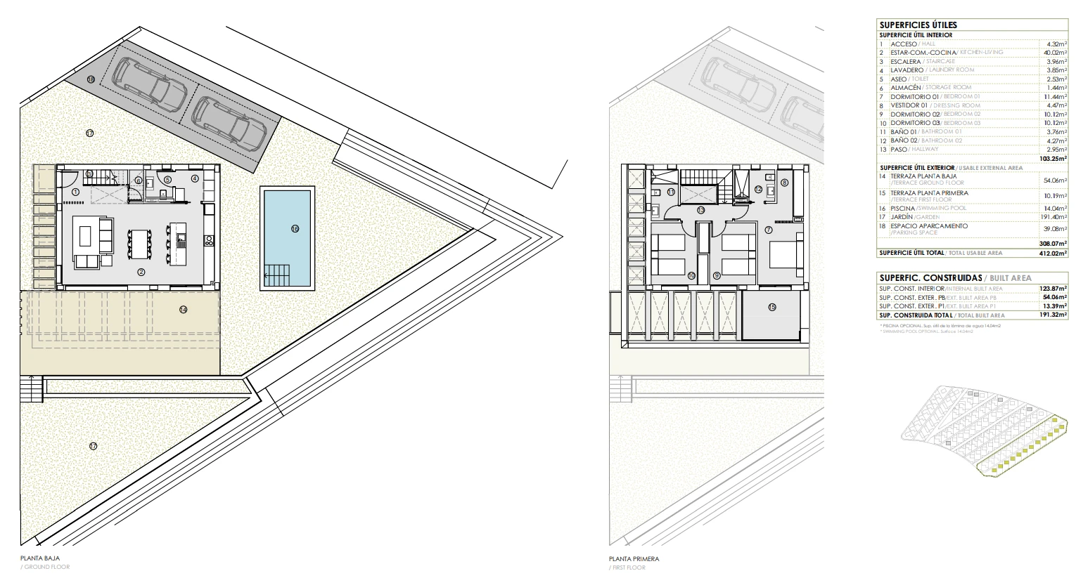
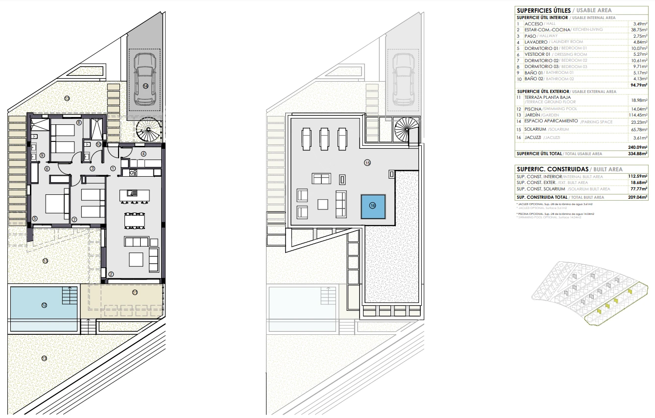
  • Bendr. plotas, m²276 м2
  • Miegamieji3 Miegamieji
  • Vonia2 Vonia

Konvertuoti 725 000 €

TerasaVaizdas į jūrą

Bendra informacija Rodyti žemėlapyje

  • Miestas: Polop
  • Provincija: Alicante
  • Pakrantė: Costa Blanca
  • Balkonai / terasos: Taip
  • Baseinas: Taip
  • Kalnuose: Taip
  • Miške: Taip
  • Kaimo vietovėje: Taip
  • Priemiestyje: Taip
  • Miesto centre: Taip
  • Sodybų kaime: Taip
  • Vaizdas į kalnus: Taip
  • Vaizdas į mišką: Taip
  • Vaizdas į jūrą: Taip
  • Vaizdas į ežerą: Taip
  • Vaizdas į upę: Taip
  • Panoraminis vaizdas: Taip
  • Vaizdas į gatvę: Taip

Aprašas

Naujasis gyvenamasis projektas Polope, Costa Blancoje, siūlo idealią erdvę pilnavertiškai mėgautis Viduržemio jūros gyvenimo būdu. Galite rinktis iš rezidencijų su 3 miegamaisiais, suprojektuotų taip, kad atspindėtų regiono dvasią ir maksimaliai išnaudotų palankią aplinką dėl erdvių atvirų erdvių.

Viena iš svarbiausių projekto ypatybių – įspūdingi panoraminiai vaizdai į įlanką su sodriai mėlynais vandenimis ir didingus Alikantės kalnus su jų viršūnėmis ir žaliais masyvais.

Šiais stulbinamais vaizdais galima grožėtis nuo namų terasų. Jos taip pat turi erdvius sklypus, idealiai tinkančius poilsiui saulėtoje Costa Blancoje. Jų dydis leidžia sutalpinti stalus, kėdes, gultus ar bet kurią kitą jūsų pasirinktą lauko įrangą ir lengvai pritaikyti erdvę pagal individualius poreikius.

Rezidencijos sukurtos gyvenimui lauke: kiekviename name suprojektuotos terasos, sodai, verandos ir soliariumai. Daugumoje namų yra galimybė įrengti privatų baseiną (bekraštį arba įprastą, priklausomai nuo sklypo) arba sūkurinę vonią ant soliariumo vieno aukšto rezidencijose.

Išplanavimas kruopščiai apgalvotas iki smulkiausių detalių, kad būtų užtikrintas maksimalus komfortas. Atviros virtuvės yra visiškai įrengtos visa reikalinga buitine technika, o vonios kambariai – funkcionalūs. Kiekvienam namui priklauso į kainą įskaičiuota parkavimo vieta.

Vieta – vienas iš išskirtinių projekto privalumų: vos 5 minutės iki žavingo Polop de la Marina centro. Čia darniai dera tradicijos ir išplėtota infrastruktūra: restoranai, parduotuvės, prekybos centrai, bankai ir ligoninės.

Apylinkėse rasite pėsčiųjų ir kalnų dviračių maršrutus, taip pat sporto centrą su padelio kortais. Golfo mėgėjai įvertins artumą prie garsių aikštynų, tokių kaip „Villaitana Golf“, į kurį automobiliu nuvyksite per 15 minučių.

Be to, vos už 5 minučių kelio automobiliu kuriamas vienas didžiausių sporto kompleksų Ispanijoje su prestižine teniso akademija, olimpiniu stadionu, futbolo centru ir banglenčių parku su bangų baseinais bei kitomis sporto ir laisvalaikio erdvėmis.

Ir, žinoma, netoliese driekiasi 244 kilometrų ilgio Costa Blankos paplūdimiai bei vaizdingasis Altea miestelis. Patogiam susisiekimui Alikantės–Elčės Miguelio Hernandezo oro uostas yra vos 50 minučių kelio automobiliu.

Patogumai

  • Terasa
  • Soliarumas
  • Privatus baseinas
  • Žaliosios zonos
  • Virtuvė su sala
  • Privatus parkingas

Vaizdo įrašas

Vietovės

Panašūs objektai


Paskutiniai peržiūrėti objektai


WhatsApp