Preloader
Pardavimui
Naujos statybos

Nauji prabangūs apartamentai prie jūros uždaroje gyvenvietėje Villachojosoje

Villajoyosa

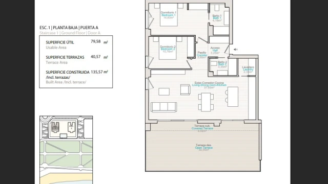
  • Bendr. plotas, m²95 м2
  • Miegamieji2 Miegamieji
  • Vonia2 Vonia

Konvertuoti 780 000 €

TerasaSodasSandėliukasLiftasVaizdas į jūrąGaražo vietosVidinis kiemasVaizdas į gatvę

Bendra informacija Rodyti žemėlapyje

  • Miestas: Villajoyosa
  • Provincija: Alicante
  • Pakrantė: Costa Blanca
  • Statybos metai: December 2025
  • Terasos plotas, m²: 41
  • Aukštas: 1
  • Liftas: Taip
  • Balkonai / terasos: Taip
  • Garažo vietos: 1
  • Sodas: Taip
  • Baseinas: Taip
  • Atstumas iki jūros (m): 100
  • Kalnuose: Taip
  • Miške: Taip
  • Kaimo vietovėje: Taip
  • Priemiestyje: Taip
  • Miesto centre: Taip
  • Sodybų kaime: Taip
  • Vaizdas į kalnus: Taip
  • Vaizdas į mišką: Taip
  • Vaizdas į jūrą: Taip
  • Vaizdas į ežerą: Taip
  • Vaizdas į upę: Taip
  • Panoraminis vaizdas: Taip
  • Vaizdas į gatvę: Taip

Aprašas

Pristatome šiuolaikiškus apartamentus naujame, uždarame komplekse nuo statytojo Villachojosoje.

Siūlomi prabangūs nauji apartamentai, dviaukščiai būstai ir penthausai, esantys pačioje jūros pakrantėje tarp Benidormo ir Villachojosos, Costa Blankos pakrantėje. Elegantiški balti šešių aukštų pastatai supami plačių žaliųjų zonų. Siūlomi būstai su viena–keturiomis miegamosiomis zonomis ir erdviomis gyvenamosiomis patalpomis.

Kiekvienas būstas pastatytas naudojant aukštos kokybės medžiagas ir aprūpintas pažangiomis technologijomis: šilumos izoliacija, aeroterminė sistema, centrinis oro kondicionavimas su „Air Zone“ sistema. Virtuvės ir vonios kambariai visiškai įrengti: šildomos grindys, pakabinami klozetai, baldai, veidrodžiai ir dušo pertvaros. Jūsų patogumui taip pat įrengtos automatinės žaliuzės ir išmaniųjų namų sistema.

Iš erdvių terasų atsiveria nuostabūs, niekuo neužstojami jūros vaizdai – galėsite mėgautis saulėtekiais pirmoje eilėje nuo vandens.

  • Atviras baseinas
  • Išpuoselėti sodai
  • Vaikų žaidimų zona
  • Visiškai įrengta sporto salė
  • Šildomas baseinas
  • Pirtis

Kviečiame „pažinti Viduržemio jūrą“ ypatingu būdu: be triukšmo, kamščių ir minios žmonių – mėgaujantis ramybe ir prabanga.

Villachojosa – nedidelis, jaukus miestelis šiaurinėje Costa Blankos pakrantės dalyje. Patogioje vietoje esantis pajūrio miestas – šalia didelio kurortinio Benidormo ir netoli provincijos sostinės Alikantės. Tai vaizdingas ir žavus miestas su puikiais smėlio paplūdimiais.

Pakrantėje stovi spalvingi žvejų namai, o vaizdai į jūrą kalnų fone kuria išskirtinę miesto estetiką. Villachojosa garsėja savo šokolado pramone ir turizmu.

Šį objektą galima įsigyti nuotoliniu būdu, neatvykstant į Ispaniją: išsimokėtinai tiesiogiai iš statytojo arba imant banko paskolą su 3–6 % metinėmis palūkanomis.

Įsigijus nekilnojamąjį turtą Ispanijoje, galima gauti leidimą gyventi. Mūsų įmonė padeda sutvarkyti bet kokio tipo leidimo gyventi dokumentus.

Patogumai

  • Terasa
  • Sandėliukas
  • Sodas
  • Spinta
  • Kiemo terasa
  • Virtuvės baldai
  • Virtuvės įranga
  • Įmontuotos spintos
  • Liftas
  • Oro kondicionierius
  • Šildomos grindys vonioje
  • Bendras baseinas
  • Garažo vietos

Vaizdo įrašas

Vietovės

Panašūs objektai


Paskutiniai peržiūrėti objektai


WhatsApp