Preloader
Pardavimui
Naujos statybos

Šiuolaikinė vila su baseinu ir sodu uždarame komplekse Algorfoje

Algorfa

  • Bendr. plotas, m²156 м2
  • Miegamieji4 Miegamieji
  • Vonia3 Vonia

Konvertuoti 795 000 €

TerasaSodasSandėliukasRūsysVaizdas į kalnusGrilisGaražo vietosVidinis kiemasVaizdas į gatvę

Bendra informacija Rodyti žemėlapyje

  • Miestas: Algorfa
  • Provincija: Alicante
  • Pakrantė: Costa Blanca
  • Statybos metai: 2024
  • Sklypo plotas, m²: 500
  • Terasos plotas, m²: 59
  • Balkonai / terasos: Taip
  • Garažo vietos: 1
  • Sodas: Taip
  • Baseinas: Taip
  • Atstumas iki jūros (m): 17000
  • Kalnuose: Taip
  • Miške: Taip
  • Kaimo vietovėje: Taip
  • Priemiestyje: Taip
  • Miesto centre: Taip
  • Sodybų kaime: Taip
  • Vaizdas į kalnus: Taip
  • Vaizdas į mišką: Taip
  • Vaizdas į jūrą: Taip
  • Vaizdas į ežerą: Taip
  • Vaizdas į upę: Taip
  • Panoraminis vaizdas: Taip
  • Vaizdas į gatvę: Taip

Aprašas

Pristatoma įspūdinga vila gražiame, šiuolaikiniame, uždarame gyvenamajame komplekse Algorfoje. Kompleksą sudaro 11 atskirai stovinčių vilų, kiekviena jų turi nuosavą sodą, baseiną, stogo terasą (soliariumą) ir parkavimo vietą.

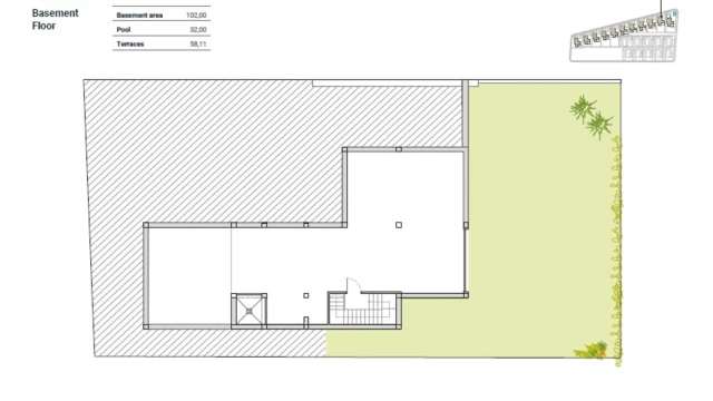
Vila yra dviejų aukštų su rūsio aukštu. Pirmajame aukšte įrengta viena miegamoji, erdvus svetainės ir virtuvės sujungtas kambarys su išėjimu į terasą, prie baseino ir į sodą.

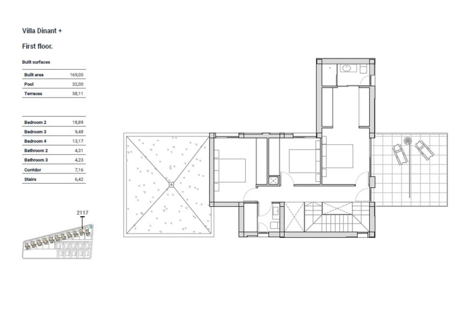
Antrajame aukšte yra trys miegamieji su puikiais vaizdais pro langus ir vonios kambariai. Taip pat name įrengta didelė skalbykla, o rūsio aukšte galima įsirengti treniruoklių salę, biliardo kambarį ar poilsio zoną.

  • Namų plotas – 155,7 kv. m
  • Sodo plotas – 302 kv. m
  • Terasos plotas – 59 kv. m
  • Nuosavas baseinas – 8 × 4 m

Į kainą įskaičiuota: pilnai įrengti vonios kambariai su šildomomis grindimis, įrengta ir baldais apstatyta virtuvė su buitine technika, išvedžiota oro kondicionavimo instaliacija, visiškai įrengta signalizacijos sistema su davikliais ir kameromis, šarvuotos durys, įmontuotos spintos, elektrinės žaliuzės, dvigubi langų paketai, dušo pertvaros, spintelės ir veidrodžiai.

Statybai ir apdailai naudojamos tik aukštos kokybės medžiagos. Namui būdingas modernus dizainas – natūralaus akmens ir medžio derinys interjerui suteikia jaukumo ir prabangos.

Kosta Blanka – tikras rojaus kampelis. Šiame Viduržemio jūros pakrantės ruože driekiasi apie 170 nuostabių paplūdimių ir įlankų, įvairialypiai kraštovaizdžiai, gamtos parkai, druskingi ežerai ir kalnai. Alikantės provincija garsėja 22 golfo laukais. Tai puiki vieta gyventi, ilsėtis ir dirbti.

Vila yra rajone su išplėtota infrastruktūra: šalia restoranai, parduotuvės, prekybos centras, vaistinės, autobusų stotelės, parkai, kavinės, barai, golfo laukai.

Atstumas iki jūros – apie 17 km.

Puiki vila idealiai tinka tiems, kurie ieško gražių, stilingų namų prestižiniame rajone, visai šalia įvairių paslaugų ir patogumų.

Galima rezervacija internetu, taip pat pirkimas išsimokėtinai su 3–4 % palūkanomis.

Perkant nekilnojamąjį turtą Ispanijoje, galima gauti leidimą laikinai gyventi. Mūsų įmonė padeda sutvarkyti bet kurios rūšies leidimus gyventi. O perkant nekilnojamąjį turtą, kurio vertė viršija 300 000 eurų, leidimą gyventi padedame gauti kaip dovaną.

Patogumai

  • Terasa
  • Soliarumas
  • Sandėliukas
  • Sodas
  • Grilis
  • Spinta
  • Kiemo terasa
  • Rūsys
  • Virtuvės baldai
  • Virtuvės įranga
  • Įmontuotos spintos
  • Automatinis laistymas
  • Automatinės durys
  • Oro kondicionierius
  • Centrinis oro kondicionavimas
  • Individualus oro kondicionavimas
  • Individualus šildymas
  • Šildomos grindys vonioje
  • Šildomos grindys name
  • Internetas
  • Greitas internetas
  • Namų elektronika
  • Interjero magnetinės durys
  • Signalizacija
  • Vaizdo telefonas
  • Šarvuotos durys
  • Privatus baseinas
  • Garažo vietos

Vaizdo įrašas

Vietovės

Panašūs objektai


Paskutiniai peržiūrėti objektai


WhatsApp