Preloader
Pardavimui
Naujos statybos

Šiuolaikiški 2–3 kambarių apartamentai su baseinu Orihueloje

Orihuela

  • Bendr. plotas, m²147 м2
  • Miegamieji2 Miegamieji
  • Vonia2 Vonia

Konvertuoti 239 900 €

TerasaSodasVaizdas į gatvę

Bendra informacija Rodyti žemėlapyje

  • Miestas: Orihuela
  • Provincija: Alicante
  • Pakrantė: Costa Blanca
  • Balkonai / terasos: Taip
  • Sodas: Taip
  • Baseinas: Taip
  • Kalnuose: Taip
  • Miške: Taip
  • Kaimo vietovėje: Taip
  • Priemiestyje: Taip
  • Miesto centre: Taip
  • Sodybų kaime: Taip
  • Vaizdas į kalnus: Taip
  • Vaizdas į mišką: Taip
  • Vaizdas į jūrą: Taip
  • Vaizdas į ežerą: Taip
  • Vaizdas į upę: Taip
  • Panoraminis vaizdas: Taip
  • Vaizdas į gatvę: Taip

Aprašas

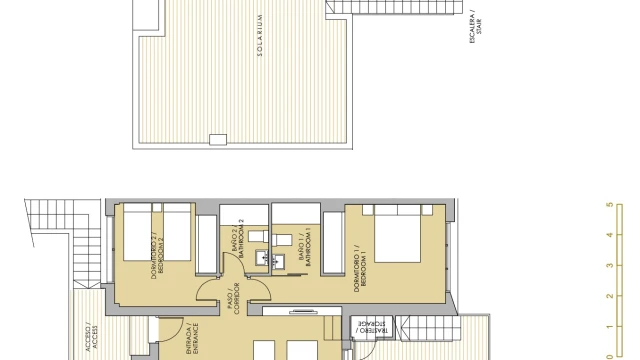
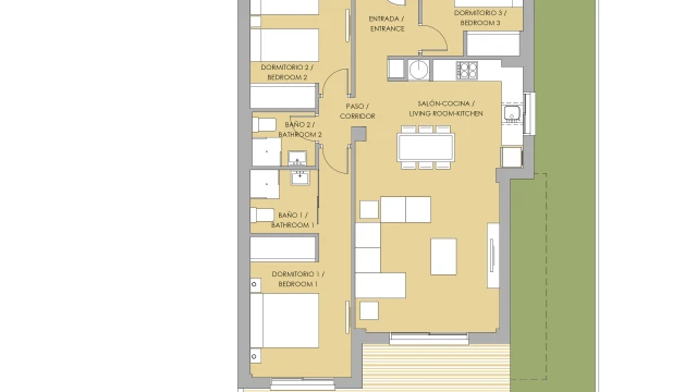
Šiame išskirtiniame naujos statybos projekte siūlomi apartamentai su 2–3 miegamaisiais ir 2 vonios kambariais, užtikrinančiais aukštą gyvenimo komfortą.

Butai įsikūrę strategiškai patogioje Orihuellos vietoje, netoli įvairių paslaugų. Pėsčiomis lengvai pasieksite prekybos centrus, restoranus, vaistines ir golfo aikštynus – viskas šalia, kad kasdienis gyvenimas būtų praktiškesnis ir patogesnis.

Aukštos kokybės apdaila paverčia šiuos būstus solidžiu ir rafinuotu pasirinkimu. Gyventojams skirta didelė bendro naudojimo erdvė su:

  • baseinu,
  • sutvarkytomis žaliomis zonomis,
  • kelios poilsio ir laisvalaikio erdvės visai šeimai.

Būstų plotai svyruoja nuo 77 m² iki erdvių 235 m². Priklausomai nuo pasirinkto varianto, juose gali būti terasa, sodas arba stogo terasa (soliariumas). Didelės terasos leidžia maksimaliai mėgautis maloniu regiono klimatu ir paverčia kiekvienus namus privačia oaze netoli gyvybingo Orihuellos centro.

Kainos nuo 239 900 € iki 309 900 € daro šiuos apartamentus išskirtine galimybe tiems, kurie ieško patogumo ir modernumo dermės unikalioje aplinkoje.

Patogumai

  • Terasa
  • Soliarumas
  • Sodas
  • Privatus baseinas
  • Bendras baseinas

Vaizdo įrašas

Vietovės

Panašūs objektai


Paskutiniai peržiūrėti objektai


WhatsApp