Preloader
Pardavimui

Šiuolaikiški apartamentai Benidorme su terasa, vaizdu į jūrą ir baseinu

Benidorm

  • Bendr. plotas, m²94 м2
  • Miegamieji2 Miegamieji
  • Vonia2 Vonia

Konvertuoti 435 000 €

TerasaLiftasBaldaiGaražo vietosVidinis kiemas

Bendra informacija Rodyti žemėlapyje

  • Miestas: Benidorm
  • Provincija: Alicante
  • Rajonas: Poniente
  • Pakrantė: Costa Blanca
  • Statybos metai: 2024
  • Aukštas: 8
  • Liftas: Taip
  • Balkonai / terasos: Taip
  • Garažo vietos: 1
  • Baseinas: Taip
  • Atstumas iki jūros (m): 1800
  • Kalnuose: Taip
  • Miške: Taip
  • Kaimo vietovėje: Taip
  • Priemiestyje: Taip
  • Miesto centre: Taip
  • Sodybų kaime: Taip
  • Vaizdas į kalnus: Taip
  • Vaizdas į mišką: Taip
  • Vaizdas į jūrą: Taip
  • Vaizdas į ežerą: Taip
  • Vaizdas į upę: Taip
  • Panoraminis vaizdas: Taip
  • Vaizdas į gatvę: Taip

Aprašas

Siūlomi parduoti puikūs apartamentai aštuntame aukšte viename vaizdingiausių ir ramiausių Benidormo rajonų. Namas, pastatytas 2024 metais, derina šiuolaikinį komfortą ir artumą gamtai.

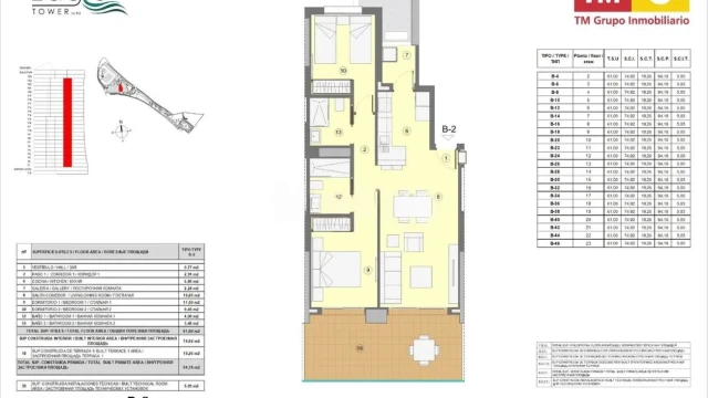
Bendras apartamentų plotas – 94 m² (naudingas plotas – 80 m²). Juose yra du erdvūs miegamieji ir du vonios kambariai su šildomomis grindimis, kurie suteikia jaukumo. Didelė terasa padalinta į valgomojo ir poilsio zonas, iš kurių atsiveria nuostabus vaizdas į miestą, jūrą ir golfo lauką.

Dizainas ir išplanavimas
Vietą taupanti virtuvė sujungta su svetaine ir valgomojo zona, todėl erdvė tampa šviesi ir funkcionali. Pietinė apartamentų orientacija užtikrina daug natūralios šviesos visą dieną.

Komplekso infrastruktūra

  • didelis bendras baseinas,
  • sūkurinė vonia (jacuzzi),
  • daugiafunkcė sporto aikštelė futbolui, krepšiniui ir padelio tenisui,
  • pilnai įrengta treniruoklių salė,
  • dviratų parkavimo vietos.

Papildomi privalumai
Butas parduodamas su baldais. Į kainą įskaičiuota požeminė parkavimo vieta ir sandėliukas tame pačiame aukšte. Pastate yra liftas, jis pritaikytas riboto judumo žmonėms.

Šie apartamentai – idealus pasirinkimas ieškantiems ramaus ir malonaus gyvenimo gamtos apsuptyje, tačiau su visais miesto patogumais šalia.

Apie Benidormą
Benidormas – populiarus Ispanijos miestas su puikiais paplūdimiais, restoranais, barais, parduotuvėmis, įvairiomis pramogomis ir vandens parkais. Šis miestas laikomas vienu svarbiausių Ispanijos kurortų ir išsiskiria iš kitų pakrantės kurortų bei visos šalies miestų gausybe dangoraižių.

Be švelnaus klimato, Benidormas traukia garsiais Levante ir Poniente paplūdimiais, firminėmis parduotuvėmis ir išparduotuvių centrais, naktiniais klubais, kazino, barais ir restoranais, pramogų parku „Terra Mítica“, vandens parkais „Aqualandia“ ir „Aqua Natura“, teminiais parkais „Mundomar“ ir „Terra Natura“, bei koncertų sale „Benidorm Palace“.

Pirkimo sąlygos ir Viza
Galima atlikti nuotolinę rezervaciją, taip pat įsigyti būstą išsimokėtinai iš statytojo arba su banko paskola už 3–6 % metinių palūkanų. Perkant nekilnojamąjį turtą Ispanijoje, galima gauti leidimą gyventi. Mūsų įmonė padeda sutvarkyti bet kokio tipo leidimą gyventi.

Patogumai

  • Terasa
  • Spinta
  • Kiemo terasa
  • Baldai
  • Virtuvės baldai
  • Virtuvės įranga
  • Įmontuotos spintos
  • Liftas
  • Oro kondicionierius
  • Bendras baseinas
  • Garažo vietos

Vaizdo įrašas

Vietovės

Panašūs objektai


Paskutiniai peržiūrėti objektai


WhatsApp