Preloader
Pardavimui
Naujos statybos

Šiuolaikiški apartamentai golfo komplekse šalia San Juan de los Terreros

Pilar de Jaravia

  • Bendr. plotas, m²76 м2
  • Miegamieji2 Miegamieji
  • Vonia2 Vonia

Konvertuoti 162 500 €

TerasaSodasSandėliukasLiftasVaizdas į kalnusGrilisGaražo vietosVidinis kiemasVaizdas į gatvę

Bendra informacija Rodyti žemėlapyje

  • Miestas: Pilar de Jaravia
  • Provincija: Almería
  • Pakrantė: Costa Calída
  • Terasos plotas, m²: 8
  • Aukštas: 1
  • Liftas: Taip
  • Balkonai / terasos: Taip
  • Garažo vietos: 1
  • Sodas: Taip
  • Baseinas: Taip
  • Atstumas iki jūros (m): 9000
  • Kalnuose: Taip
  • Miške: Taip
  • Kaimo vietovėje: Taip
  • Priemiestyje: Taip
  • Miesto centre: Taip
  • Sodybų kaime: Taip
  • Vaizdas į kalnus: Taip
  • Vaizdas į mišką: Taip
  • Vaizdas į jūrą: Taip
  • Vaizdas į ežerą: Taip
  • Vaizdas į upę: Taip
  • Panoraminis vaizdas: Taip
  • Vaizdas į gatvę: Taip

Aprašas

Siūlomi modernaus stiliaus apartamentai gražiame, šiuolaikiniame gyvenamajame komplekse Pilar de Jaravios mieste.

Gyvenamasis kompleksas „Eagle“ yra pirmoje eilėje prie Aguilón golfo aikštyno – vieno iš unikaliausių ir patraukliausių aikštynų Ispanijoje. Laukinė aplinka ir išskirtinis gamtovaizdžių grožis daro šį projektą išties išskirtiniu.

„Eagle“ kompleksas yra mažiau nei 10 minučių kelio automobiliu nuo San Juan de los Terreros – vieno žaviausių miestelių Almerijos pakrantėje. Vienas iš šio regiono išskirtinumų – daugybė laukinių paplūdimių.

Vietovė pasižymi neįprastu klimatu, leidžiančiu mėgautis gamta ir aplinka ištisus metus. Almerijos ir Mursijos oro uostai pasiekiami mažiau nei per 45 minutes automobiliu.

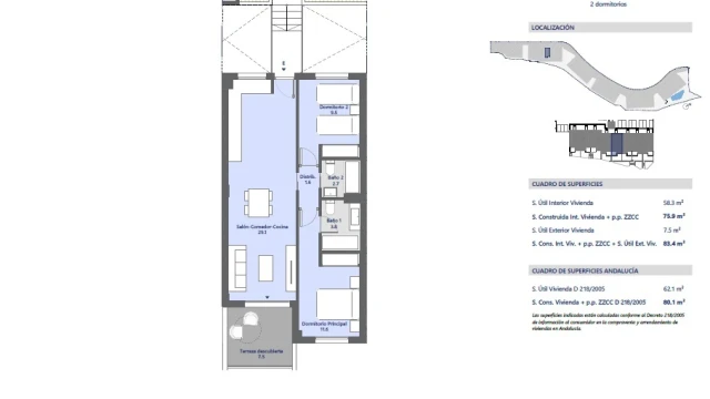
Butas susideda iš dviejų miegamųjų, dviejų vonios kambarių, virtuvės, svetainės ir terasos.

  • Buto plotas – 75,80 kv. m
  • Terasos plotas – 7,5 kv. m

Į kainą įskaičiuota:

  • šildomos grindys vonios kambariuose
  • dušo kabina
  • vonios kambario baldai su veidrodžiu ir apšvietimu
  • įmontuotas šaldytuvas
  • gartraukis
  • kaitlentė ir orkaitė
  • skalbimo ir indaplovė
  • automatinės žaliuzės
  • išvedžiota ortakių instaliacija oro kondicionavimui
  • šarvuotos įėjimo durys

Statybose ir apdailoje naudojamos tik aukštos kokybės medžiagos. Namas pasižymi šiuolaikišku dizainu – šviesi spalvinė gama ir dideli panoraminiai langai nuo grindų iki lubų užtikrina nuolatinę natūralią šviesą.

Atstumas iki jūros – 9 km.

Galima rezervacija internetu, taip pat pirkimas išsimokėtinai su 3–6 % palūkanomis. Įsigijus nekilnojamąjį turtą Ispanijoje, galima gauti leidimą gyventi šalyje. Mūsų įmonė padeda sutvarkyti bet kokio tipo leidimus gyventi.

Patogumai

  • Terasa
  • Sandėliukas
  • Sodas
  • Grilis
  • Spinta
  • Kiemo terasa
  • Virtuvės baldai
  • Virtuvės įranga
  • Įmontuotos spintos
  • Liftas
  • Oro kondicionierius
  • Individualus šildymas
  • Šildomos grindys vonioje
  • Greitas internetas
  • Signalizacija
  • Šarvuotos durys
  • Bendras baseinas
  • Garažo vietos

Vaizdo įrašas

Vietovės

Panašūs objektai


Paskutiniai peržiūrėti objektai


WhatsApp