Preloader
Pardavimui
Naujos statybos

Šiuolaikiški dviejų aukštų apartamentai naujame uždarame komplekse Vilajosoje

Villajoyosa

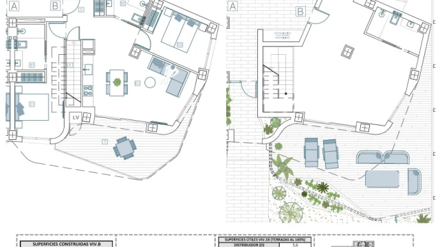
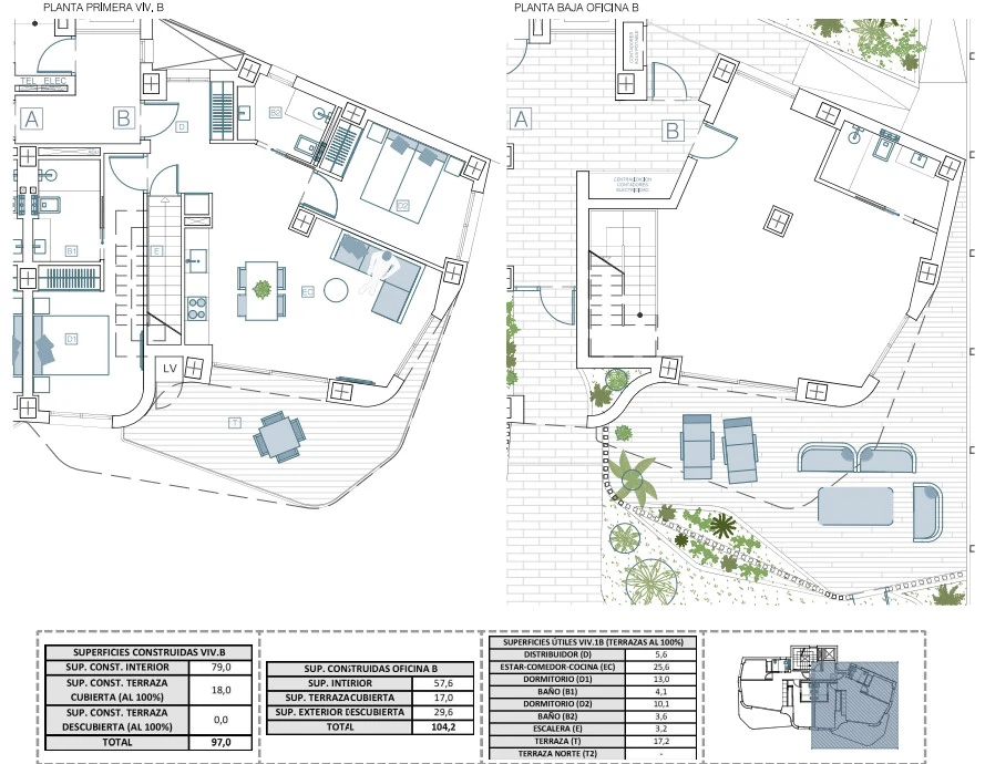
  • Bendr. plotas, m²201 м2
  • Miegamieji2 Miegamieji
  • Vonia2 Vonia

Konvertuoti 495 000 €

TerasaSandėliukasLiftasVaizdas į jūrąGaražo vietosVidinis kiemasVaizdas į gatvę

Bendra informacija Rodyti žemėlapyje

  • Miestas: Villajoyosa
  • Provincija: Alicante
  • Pakrantė: Costa Blanca
  • Statybos metai: December 2026
  • Sklypo plotas, m²: 29
  • Terasos plotas, m²: 35
  • Aukštas: 1
  • Liftas: Taip
  • Balkonai / terasos: Taip
  • Garažo vietos: 1
  • Baseinas: Taip
  • Atstumas iki jūros (m): 900
  • Kalnuose: Taip
  • Miške: Taip
  • Kaimo vietovėje: Taip
  • Priemiestyje: Taip
  • Miesto centre: Taip
  • Sodybų kaime: Taip
  • Vaizdas į kalnus: Taip
  • Vaizdas į mišką: Taip
  • Vaizdas į jūrą: Taip
  • Vaizdas į ežerą: Taip
  • Vaizdas į upę: Taip
  • Panoraminis vaizdas: Taip
  • Vaizdas į gatvę: Taip

Aprašas

Pristatome šiuolaikiškus dviejų aukštų apartamentus naujame uždarame komplekse nuo statytojo Vilajosoje.

201 m² ploto apartamentai išsidėstę per du aukštus. Viršutiniame aukšte įrengtos dvi miegamosios, dvi vonios kambariai, svetainė, įrengta atvira virtuvė ir erdvios terasos. Apatiniame aukšte yra didelis daugiafunkcis kambarys, vonios kambarys ir išėjimas į nuosavą kiemą.

Į kainą įskaičiuota:

  • įmontuotos spintos;
  • pilna vonios kambarių įranga ir šildomos grindys voniose;
  • virtuvės baldai ir integruota buitinė technika;
  • automobilio parkavimo vieta;
  • paruošta oro kondicionavimo sistema;
  • apšvietimas ir žaliuzės;
  • šarvuotos įėjimo durys.

Statyba ir apdaila atlikta naudojant aukštos kokybės medžiagas.

Šis išskirtinis, iš 10 prabangių apartamentų sudarytas gyvenamasis kompleksas sujungia šiuolaikinį dizainą, prabangią apdailą ir privilegijuotą vietą. Kiekvieni namai suprojektuoti galvojant apie komfortą ir eleganciją – su erdviomis patalpomis, privačiomis terasomis ir atvira panorama, leidžiančia mėgautis Viduržemio jūros klimatu ištisus metus.

Vilajosa – nedidelis, jaukus miestelis šiaurinėje Kosta Blankos pakrantėje. Tai pajūrio kurortas, itin patogioje vietoje – šalia didelio kurortinio miesto Benidormo ir netoli provincijos sostinės Alikantės. Miestelis vaizdingas ir žavus, su puikiais smėlio paplūdimiais. Pakrantėje stovi spalvingi žvejų namai, o jūrą supa kalnų panorama – visa tai kuria unikalią Vilajosos estetiką.

Vilajosa gerai žinoma dėl savo šokolado pramonės ir turizmo.

Šį objektą galima įsigyti nuotoliniu būdu, neatvykstant į Ispaniją – išsimokėtinai tiesiai iš statytojo arba pasinaudojus banko kreditu su 3–6 % metinėmis palūkanomis.

Perkant nekilnojamąjį turtą Ispanijoje, galima gauti leidimą gyventi šalyje. Mūsų įmonė padeda sutvarkyti bet kokio tipo leidimo gyventi dokumentus.

Patogumai

  • Terasa
  • Sandėliukas
  • Spinta
  • Kiemo terasa
  • Virtuvės baldai
  • Virtuvės įranga
  • Įmontuotos spintos
  • Liftas
  • Oro kondicionierius
  • Šildomos grindys vonioje
  • Bendras baseinas
  • Garažo vietos

Vaizdo įrašas

Vietovės

Panašūs objektai


Paskutiniai peržiūrėti objektai


WhatsApp