Preloader
Pardavimui

Erdvi vila su privačiu baseinu ir sodu populiariame Aguas Nuevas rajone

Torrevieja

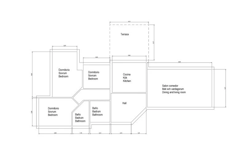
  • Bendr. plotas, m²164 м2
  • Miegamieji3 Miegamieji
  • Vonia2 Vonia

Konvertuoti 399 000 €

TerasaSodasSandėliukasVaikų žaidimų aikštelėGrilisGaražo vietosVidinis kiemas

Bendra informacija Rodyti žemėlapyje

  • Miestas: Torrevieja
  • Provincija: Alicante
  • Rajonas: Aguas Nuevas
  • Pakrantė: Costa Blanca
  • Statybos metai: 30 December 1999
  • Sklypo plotas, m²: 410
  • Terasos plotas, m²: 70
  • Balkonai / terasos: Taip
  • Garažo vietos: 1
  • Sodas: Taip
  • Baseinas: Taip
  • Atstumas iki jūros (m): 1500
  • Kalnuose: Taip
  • Miške: Taip
  • Kaimo vietovėje: Taip
  • Priemiestyje: Taip
  • Miesto centre: Taip
  • Sodybų kaime: Taip
  • Vaizdas į kalnus: Taip
  • Vaizdas į mišką: Taip
  • Vaizdas į jūrą: Taip
  • Vaizdas į ežerą: Taip
  • Vaizdas į upę: Taip
  • Panoraminis vaizdas: Taip
  • Vaizdas į gatvę: Taip

Aprašas

Graži ir erdvi vila populiariame Aguas Nuevas rajone, Torrevjechos mieste. Namas pastatytas 410 m² sklype, turi tris miegamuosius ir du vonios kambarius.

Didelė atskira virtuvė su išėjimu į sodą ir kepsninės zoną, svetainė, holas ir terasa su gražiais vaizdais į apylinkes. Gražus, prižiūrėtas sodas su privačiu baseinu ir vaikų žaidimų aikštele, garažas. Įrengta apsaugos signalizacija. Šalia visos reikalingos paslaugos ir infrastruktūra.

Torrevjecha įsikūrusi sniego baltumo Kosta Blankos pakrantėje. Čia puikus saulėtas klimatas ir nuostabūs paplūdimiai. Mieste net apie 320 saulėtų dienų per metus: žiemą temperatūra retai nukrenta žemiau 10 °C, o vasarą paprastai laikosi ties 25–30 °C.

Miestas ribojasi ne tik su Viduržemio jūra, bet ir su dviem druskingais ežerais: rausvuoju Salinas de Torrevieja ir smaragdo spalvos Salada de la Mata, kurių vanduo ir mineralinis purvas savo sudėtimi ir populiarumu nenusileidžia Negyvajai jūrai. Šimtai žmonių atvyksta čia vien tam, kad pasimaudytų šiuose ežeruose. Dėl jų Kosta Blankos pietuose susiformavo unikalus mikroklimatas, kurį Pasaulio sveikatos organizacija pripažino vienu sveikiausių pasaulyje.

Galima atlikti apgyvendinimo rezervaciją ir nuotoliniu būdu, taip pat įsigyti būstą išsimokėtinai iš statytojo arba imant banko paskolą su 3–4,5 % metinėmis palūkanomis.

Perkant nekilnojamąjį turtą Ispanijoje galima gauti leidimą gyventi. Mūsų įmonė padeda sutvarkyti bet kokio tipo leidimą gyventi. Perkant nekilnojamąjį turtą, kurio vertė viršija 300 000 eurų, pasirūpiname leidimu gyventi kaip dovana.

Patogumai

  • Terasa
  • Soliarumas
  • Sandėliukas
  • Sodas
  • Grilis
  • Spinta
  • Kiemo terasa
  • Virtuvės baldai
  • Virtuvės įranga
  • Įmontuotos spintos
  • Internetas
  • Telefono linija
  • Signalizacija
  • Vaizdo telefonas
  • Privatus baseinas
  • Žaidimų aikštelė
  • Garažo vietos

Vaizdo įrašas

Vietovės

Panašūs objektai


Paskutiniai peržiūrėti objektai


WhatsApp