Preloader
Pardavimui
Naujos statybos

Šiuolaikiški apartamentai su baseinais prie jūros Torreviejoje

Torrevieja

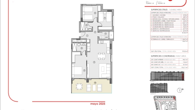
  • Bendr. plotas, m²109 м2
  • Miegamieji3 Miegamieji
  • Vonia2 Vonia

Konvertuoti 394 000 €

SodasSandėliukasVaizdas į jūrą

Bendra informacija Rodyti žemėlapyje

  • Miestas: Torrevieja
  • Provincija: Alicante
  • Pakrantė: Costa Blanca
  • Sodas: Taip
  • Baseinas: Taip
  • Kalnuose: Taip
  • Miške: Taip
  • Kaimo vietovėje: Taip
  • Priemiestyje: Taip
  • Miesto centre: Taip
  • Sodybų kaime: Taip
  • Vaizdas į kalnus: Taip
  • Vaizdas į mišką: Taip
  • Vaizdas į jūrą: Taip
  • Vaizdas į ežerą: Taip
  • Vaizdas į upę: Taip
  • Panoraminis vaizdas: Taip
  • Vaizdas į gatvę: Taip

Aprašas

Ieškote būsto prie jūros su patogumais, prilygstančiais kurortiniam kompleksui? Turite galimybę įsigyti būstą vienoje patraukliausių Kosta Blankos vietovių.

Vos už 500 metrų nuo paplūdimio įsikūręs išskirtinis gyvenamasis kompleksas su naujais butais, idealiai tinkančiais tiek nuolatiniam gyvenimui, tiek kaip antras būstas ar investicija.

Butai pasižymi šiuolaikišku dizainu ir šviesiomis erdvėmis, suprojektuotomis komfortui ir poilsiui bet kuriuo metų laiku. Siūlomi variantai su 2 ir 3 miegamaisiais bei 2 vonios kambariais, atviros erdvės plano, kur amerikietiško tipo virtuvė integruota į svetainę, sukuriant erdvės ir šviesos pojūtį.

Galite rinktis butą su privačiu sodu pirmame aukšte, erdviomis terasomis viduriniuose aukštuose arba įspūdingu privačiu soliariumu viršutiniuose aukštuose.

Visiems butams priklauso vieta požeminiame garaže ir sandėliukas, užtikrinantys papildomą erdvę ir funkcionalumą, kurio jums reikia.

Gyvenamasis kompleksas sukurtas išskirtinei gerovės ir poilsio patirčiai.

  • Trys baseinai, iš kurių vienas – šildomas
  • Sporto salė su sūkurine vonia (jacuzzi)
  • Teniso kortas
  • Petankės aikštelė
  • Išpuoselėti želdynai ir poilsio zonos

Vaikams įrengtas atskiras seklesnis baseinas ir saugi žaidimų aikštelė.

Gyvenkite Torreviejoje, vos kelios minutės pėsčiomis nuo jūros, su visais patogumais kasdieniam gyvenimui ir poilsiui. Miestas siūlo puikų susisiekimą, gausybę paslaugų, parduotuvių, medicinos centrų ir laisvalaikio galimybių.

Su paplūdimiu vos už kelių žingsnių, kiekviena diena tampa nedidele kelione į Viduržemio jūros rojų.

Susisiekite dėl išsamesnės informacijos ir atvykite apžiūrėti savo naujų namų prie jūros.

Patogumai

  • Soliarumas
  • Sandėliukas
  • Sodas
  • Oro kondicionierius
  • Vaizdo telefonas
  • Privatus baseinas
  • Bendras baseinas
  • Sporto salė
  • Dviračių kambarys
  • Vaikų zona
  • Žaliosios zonos
  • Teniso kortas

Vaizdo įrašas

Vietovės

Panašūs objektai


Paskutiniai peržiūrėti objektai


WhatsApp