Preloader
Pardavimui
Naujos statybos

Išskirtinės naujos statybos vilos su baseinu prie San Miguel de Salinas

San Miguel de Salinas

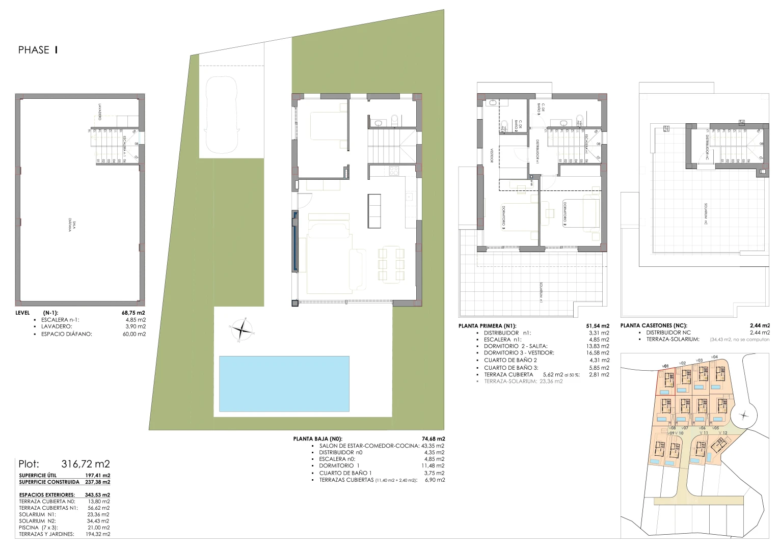
  • Bendr. plotas, m²237 м2
  • Miegamieji2 Miegamieji
  • Vonia3 Vonia

Konvertuoti 1 000 000 €

SodasRūsysLiftas

Bendra informacija Rodyti žemėlapyje

  • Miestas: San Miguel de Salinas
  • Provincija: Alicante
  • Pakrantė: Costa Blanca
  • Sklypo plotas, m²: 357
  • Liftas: Taip
  • Sodas: Taip
  • Baseinas: Taip
  • Kalnuose: Taip
  • Miške: Taip
  • Kaimo vietovėje: Taip
  • Priemiestyje: Taip
  • Miesto centre: Taip
  • Sodybų kaime: Taip
  • Vaizdas į kalnus: Taip
  • Vaizdas į mišką: Taip
  • Vaizdas į jūrą: Taip
  • Vaizdas į ežerą: Taip
  • Vaizdas į upę: Taip
  • Panoraminis vaizdas: Taip
  • Vaizdas į gatvę: Taip

Aprašas

Atraskite išskirtinį gyvenamąjį projektą, sudarytą iš 24 naujos statybos prabangių vilų. Čia būsimi savininkai gali rinktis iš kelių išskirtinių modelių ir pritaikyti savo namus pagal asmeninius poreikius bei pageidavimus.

Kiekvienos vilos standartinis plotas – 339 m² per tris aukštus, o sklypai – nuo 304 m² iki 357 m². Pirmajame aukšte įrengta erdvi svetainė su atvira virtuve, pagrindinis miegamasis su įmontuota spinta ir pilnai įrengtu vonios kambariu. Ir svetainė, ir miegamasis turi tiesioginį išėjimą į sodą ir įspūdingą privatų baseiną.

Viršutiniame aukšte rasite dar du miegamuosius: viename įrengtos įmontuotos spintos, kitame – drabužinė ir vonios kambarys „en suite“. Taip pat šiame aukšte yra trečias pilnai įrengtas vonios kambarys. Iš abiejų miegamųjų patenkama į erdvią saulėtą terasą, iš kurios atsiveria nuostabūs vaizdai į aplinkinę gamtą ir Viduržemio jūrą.

Savininkai gali padidinti vilos plotą įsirengdami erdvų rūsį, kurį galima paversti papildoma svetaine, miegamuoju, sporto sale, vyno rūsiu arba dideliu garažu keliems automobiliams. Taip pat galima įrengti stogo terasą–soliarumą, idealiai tinkančią gultams, sūkurinei voniai ir poilsio zonai, maksimaliai išnaudojant įspūdingus vaizdus šioje privilegijuotoje aplinkoje.

Šios išskirtinės vilos siūlo tokias ypatybes kaip stiklinės dušo pertvaros, šildomos grindys vonios kambariuose, moderni aeroterminė karšto vandens sistema, oro kondicionieriai ir automatizuoti vartai į privačią parkavimo zoną. Šiuo metu visos vilos yra statybų stadijoje, numatomas projekto užbaigimas – 2025 m. pirmasis ketvirtis.

Gyvenamasis kompleksas įsikūręs šalia žavaus San Miguel de Salinas miestelio ir užtikrina patogų susisiekimą su plačiu paslaugų spektru: netoliese yra prekybos centrai, specializuotos parduotuvės, aukštos klasės restoranai ir mokyklos. Be to, strateginė vieta arti prestižinių golfo aikštynų ir įspūdingų regiono auksinio smėlio paplūdimių suteikia unikalią galimybę mėgautis tobulu gamtos ramybės ir artumo visoms reikalingoms paslaugoms deriniu, užtikrinančiu komfortišką ir rafinuotą gyvenimo būdą.

Patogumai

  • Soliarumas
  • Sodas
  • Rūsys
  • Įmontuotos spintos
  • Liftas
  • Oro kondicionierius
  • Vaizdo telefonas
  • Privatus baseinas
  • Sporto salė
  • Žaliosios zonos
  • Virtuvė su sala
  • Privatus parkingas

Vaizdo įrašas

Vietovės

Panašūs objektai


Paskutiniai peržiūrėti objektai


WhatsApp