Preloader
Pardavimui
Naujos statybos

Išskirtiniai 2–3 kambarių apartamentai gamtos apsuptyje

Relleu

  • Bendr. plotas, m²111 м2
  • Miegamieji1 Miegamieji
  • Vonia1 Vonia

Konvertuoti 175 000 €

Bendra informacija Rodyti žemėlapyje

  • Miestas: Relleu
  • Provincija: Alicante
  • Pakrantė: Costa Blanca
  • Baseinas: Taip
  • Kalnuose: Taip
  • Miške: Taip
  • Kaimo vietovėje: Taip
  • Priemiestyje: Taip
  • Miesto centre: Taip
  • Sodybų kaime: Taip
  • Vaizdas į kalnus: Taip
  • Vaizdas į mišką: Taip
  • Vaizdas į jūrą: Taip
  • Vaizdas į ežerą: Taip
  • Vaizdas į upę: Taip
  • Panoraminis vaizdas: Taip
  • Vaizdas į gatvę: Taip

Aprašas

Sveiki atvykę į mūsų išskirtinius apartamentus, kuriuose elegancija dera su gamta. Čia rasite kruopščiai suprojektuotus 2–3 kambarių būstus.

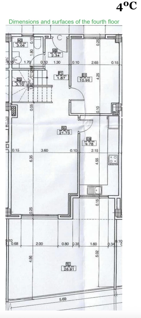
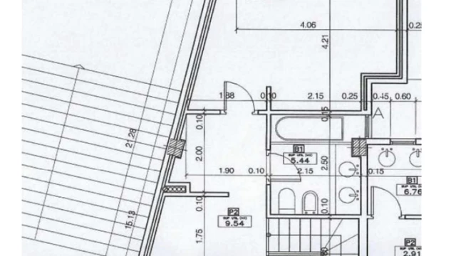
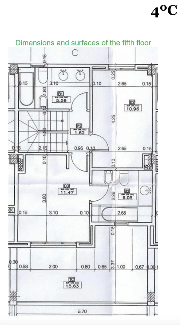
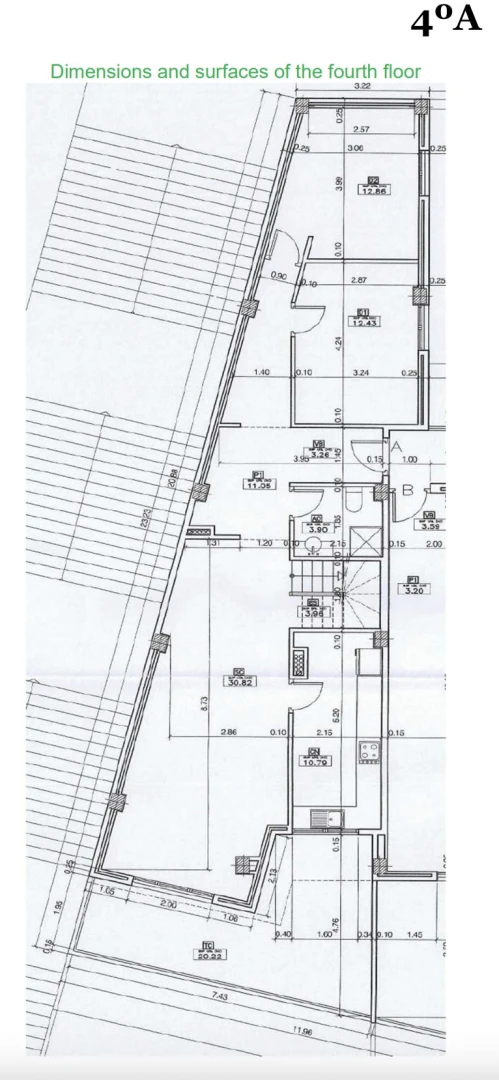
Galite rinktis iš būstų, kurių plotas nuo 99 m² iki 194 m² – tai erdvūs, rafinuoto stiliaus namai. Mėgaukitės šviesiomis, didelėmis gyvenamosiomis erdvėmis ir įspūdingais vaizdais, atsiveriančiais pro langus.

Pajuskite galimybę gyventi vietoje, kur šiuolaikinis komfortas susilieja su autentišku ispanišku charakteriu. Kainos svyruoja nuo 144 000 € iki 254 000 €, todėl pasiūla pritaikyta skirtingiems poreikiams ir biudžetams.

Patirkite ramybę ir jaukumą ramiame, žaviame aplinkos fone, kurį papildo gyvybinga ir draugiška vietos bendruomenė. Mėgaukitės maisto gaminimu modernioje atviro plano virtuvėje arba leiskite laiką erdviame terasiniame plote, jungiančiame jus su nuostabia regiono gamta.

Patogumai

  • Privatus baseinas
  • Bendras baseinas
  • Sporto salė
  • Vidaus baseinas
  • Virtuvė su sala
  • Erdvi automobilių stovėjimo aikštelė

Vaizdo įrašas

Vietovės

Panašūs objektai


Paskutiniai peržiūrėti objektai


WhatsApp