Preloader
Pardavimui
Naujos statybos

Išskirtiniai 2–3 kambarių apartamentai gamtos apsuptyje Ispanijoje

Relleu

  • Bendr. plotas, m²111 м2
  • Miegamieji1 Miegamieji
  • Vonia1 Vonia

Konvertuoti 175 000 €

Bendra informacija Rodyti žemėlapyje

  • Miestas: Relleu
  • Provincija: Alicante
  • Pakrantė: Costa Blanca
  • Baseinas: Taip
  • Kalnuose: Taip
  • Miške: Taip
  • Kaimo vietovėje: Taip
  • Priemiestyje: Taip
  • Miesto centre: Taip
  • Sodybų kaime: Taip
  • Vaizdas į kalnus: Taip
  • Vaizdas į mišką: Taip
  • Vaizdas į jūrą: Taip
  • Vaizdas į ežerą: Taip
  • Vaizdas į upę: Taip
  • Panoraminis vaizdas: Taip
  • Vaizdas į gatvę: Taip

Aprašas

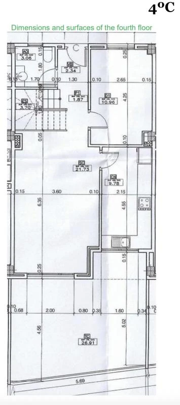
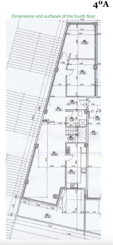
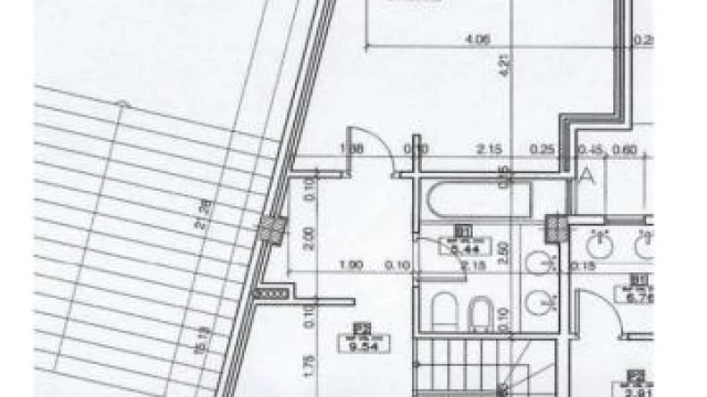
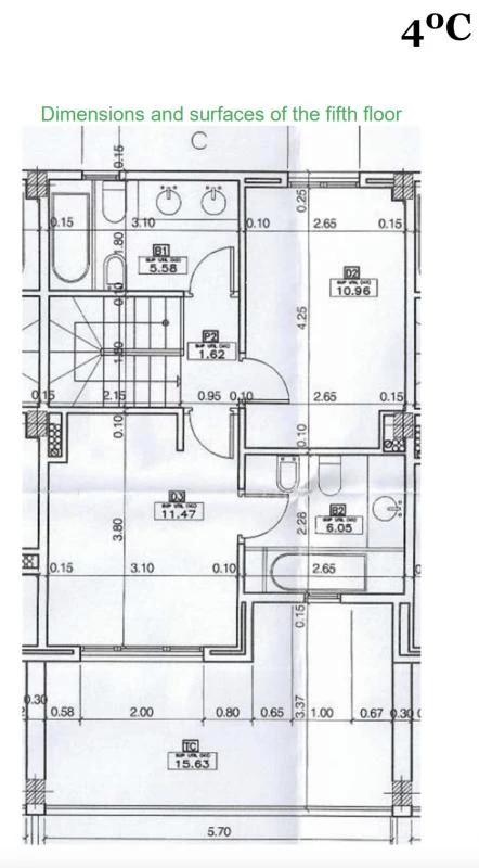
Sveiki atvykę į mūsų išskirtinius apartamentus, kur elegancija dera su gamta. Čia rasite kruopščiai suprojektuotus 2–3 kambarių būstus.

Galite rinktis apartamentus nuo 99 m² iki 194 m² ploto – visi jie pasižymi išskirtine estetika ir komfortu. Mėgaukitės erdviomis, šviesiomis gyvenamosiomis zonomis ir įspūdingais vaizdais, atsiveriančiais pro langus.

Pasinaudokite galimybe gyventi vietoje, kur šiuolaikinis prabangus stilius susilieja su autentišku ispanišku charakteriu. Kainos svyruoja nuo 144 000 € iki 254 000 €, todėl tai patrauklus pasirinkimas įvairiems poreikiams ir biudžetams.

Patirkite ramybę ir žavesį ramiame aplinkos fone, kurį papildo gyvybinga ir draugiška bendruomenė. Mėgaukitės maisto ruošimu modernioje atviro plano virtuvėje ir leiskite laiką erdvioje terasoje, kuri jus sujungia su įspūdinga regiono gamta.

Patogumai

  • Privatus baseinas
  • Bendras baseinas
  • Sporto salė
  • Vidaus baseinas
  • Virtuvė su sala
  • Erdvi automobilių stovėjimo aikštelė

Vaizdo įrašas

Vietovės

Panašūs objektai


Paskutiniai peržiūrėti objektai


WhatsApp