Preloader
Pardavimui
Naujos statybos

Išskirtiniai 2–3 kambarių apartamentai gamtos apsuptyje

Relleu

  • Bendr. plotas, m²163 м2
  • Miegamieji3 Miegamieji
  • Vonia2 Vonia

Konvertuoti 232 000 €

Bendra informacija Rodyti žemėlapyje

  • Miestas: Relleu
  • Provincija: Alicante
  • Pakrantė: Costa Blanca
  • Baseinas: Taip
  • Kalnuose: Taip
  • Miške: Taip
  • Kaimo vietovėje: Taip
  • Priemiestyje: Taip
  • Miesto centre: Taip
  • Sodybų kaime: Taip
  • Vaizdas į kalnus: Taip
  • Vaizdas į mišką: Taip
  • Vaizdas į jūrą: Taip
  • Vaizdas į ežerą: Taip
  • Vaizdas į upę: Taip
  • Panoraminis vaizdas: Taip
  • Vaizdas į gatvę: Taip

Aprašas

Sveiki atvykę į mūsų išskirtinius apartamentus, kuriuose elegancija dera su gamta. Čia rasite kruopščiai suprojektuotus 2–3 kambarių namus.

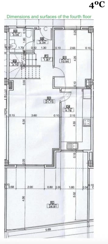
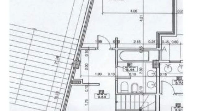
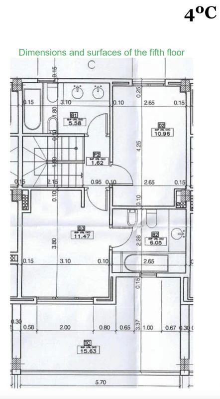
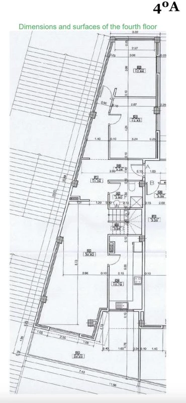
Galite rinktis būstus nuo 99 m² iki 194 m² ploto – tai erdvūs, prabangūs ir šiuolaikiški apartamentai. Mėgaukitės šviesiomis, plačiomis gyvenamosiomis erdvėmis ir įspūdingais vaizdais, atsiveriančiais pro langus.

Pajuskite galimybę gyventi ten, kur modernus komfortas susilieja su autentišku ispanišku charakteriu. Kainos svyruoja nuo 144 000 € iki 254 000 €, todėl rasite pasiūlymų įvairiems poreikiams ir biudžetams.

Patirkite ramybę ir žavesį raminančioje aplinkoje, kurią papildo gyvybinga vietos bendruomenė. Mėgaukitės maisto gaminimu modernioje virtuvėje sujungtoje su svetaine arba leiskite laiką erdvioje terasoje, kurioje galėsite dar labiau priartėti prie nuostabios šio regiono gamtos.

Patogumai

  • Privatus baseinas
  • Bendras baseinas
  • Sporto salė
  • Vidaus baseinas
  • Virtuvė su sala
  • Erdvi automobilių stovėjimo aikštelė

Vaizdo įrašas

Vietovės

Panašūs objektai


Paskutiniai peržiūrėti objektai


WhatsApp