Preloader
Pardavimui
Naujos statybos

Elegantiški 2–3 kambarių apartamentai gamtos apsuptyje

Relleu

  • Bendr. plotas, m²163 м2
  • Miegamieji3 Miegamieji
  • Vonia2 Vonia

Konvertuoti 235 000 €

Bendra informacija Rodyti žemėlapyje

  • Miestas: Relleu
  • Provincija: Alicante
  • Pakrantė: Costa Blanca
  • Baseinas: Taip
  • Kalnuose: Taip
  • Miške: Taip
  • Kaimo vietovėje: Taip
  • Priemiestyje: Taip
  • Miesto centre: Taip
  • Sodybų kaime: Taip
  • Vaizdas į kalnus: Taip
  • Vaizdas į mišką: Taip
  • Vaizdas į jūrą: Taip
  • Vaizdas į ežerą: Taip
  • Vaizdas į upę: Taip
  • Panoraminis vaizdas: Taip
  • Vaizdas į gatvę: Taip

Aprašas

Sveiki atvykę į mūsų išskirtinius apartamentus, kuriuose elegancija dera su gamta. Čia rasite kruopščiai suprojektuotus 2–3 kambarių būstus.

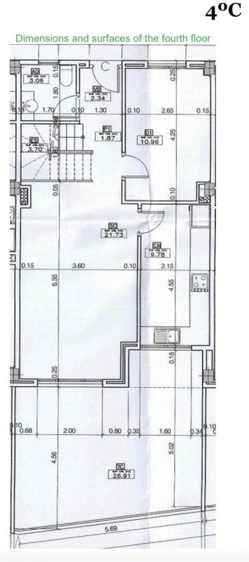
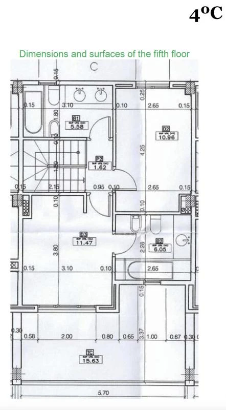
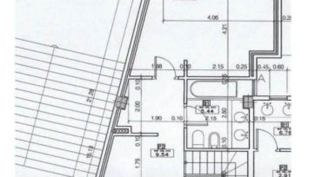
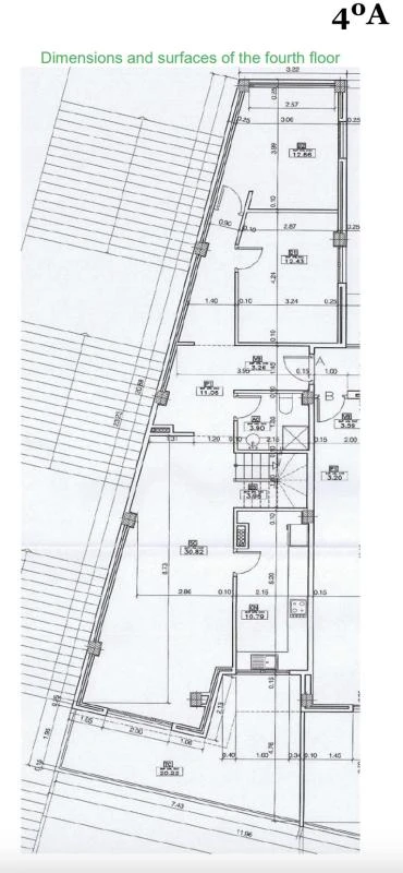
Galite rinktis iš apartamentų, kurių plotas nuo 99 m² iki 194 m² – tai erdvūs ir rafinuoti namai. Mėgaukitės šviesiomis, plačiomis gyvenamosiomis zonomis ir įspūdingais vaizdais, atsiveriančiais pro langus.

Pasinaudokite galimybe gyventi vietoje, kur šiuolaikinis komfortas susilieja su autentišku ispanišku charakteriu. Kainos svyruoja nuo 144 000 € iki 254 000 €, todėl pasiūla pritaikyta įvairiems poreikiams ir biudžetams.

Patirkite ramybę ir žavesį tykioje aplinkoje, kurią papildo gyvybinga vietos bendruomenė. Mėgaukitės maisto ruošimu modernioje atviro plano virtuvėje arba leiskite laiką erdvioje terasoje, kuri jus suartina su natūraliu regiono grožiu.

Patogumai

  • Privatus baseinas
  • Bendras baseinas
  • Sporto salė
  • Vidaus baseinas
  • Virtuvė su sala
  • Erdvi automobilių stovėjimo aikštelė

Vaizdo įrašas

Vietovės

Panašūs objektai


Paskutiniai peržiūrėti objektai


WhatsApp