Preloader
Pardavimui
Naujos statybos

Moderni vila prie jūros su privačiu baseinu ir parkavimu

Dehesa De Campoamor

  • Bendr. plotas, m²225 м2
  • Miegamieji4 Miegamieji
  • Vonia3 Vonia

Konvertuoti 1 150 000 €

ApsaugaVaizdas į jūrąGaražo vietos

Bendra informacija Rodyti žemėlapyje

  • Miestas: Dehesa De Campoamor
  • Provincija: Alicante
  • Pakrantė: Costa Blanca
  • Statybos metai: June 2024
  • Sklypo plotas, m²: 500
  • Terasos plotas, m²: 130
  • Balkonai / terasos: Taip
  • Garažo vietos: 1
  • Baseinas: Taip
  • Atstumas iki jūros (m): 500
  • Kalnuose: Taip
  • Miške: Taip
  • Kaimo vietovėje: Taip
  • Priemiestyje: Taip
  • Miesto centre: Taip
  • Sodybų kaime: Taip
  • Vaizdas į kalnus: Taip
  • Vaizdas į mišką: Taip
  • Vaizdas į jūrą: Taip
  • Vaizdas į ežerą: Taip
  • Vaizdas į upę: Taip
  • Panoraminis vaizdas: Taip
  • Vaizdas į gatvę: Taip

Aprašas

Prabangi moderni vila prie jūros su privačiu baseinu ir parkavimo vietomis. Priklausantis 500 m² sklypas estetiškai ir funkcionaliai sutvarkytas dizainerio.

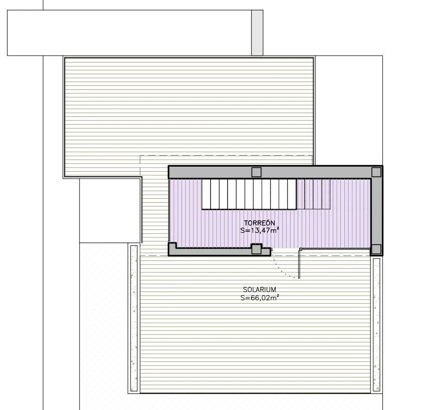
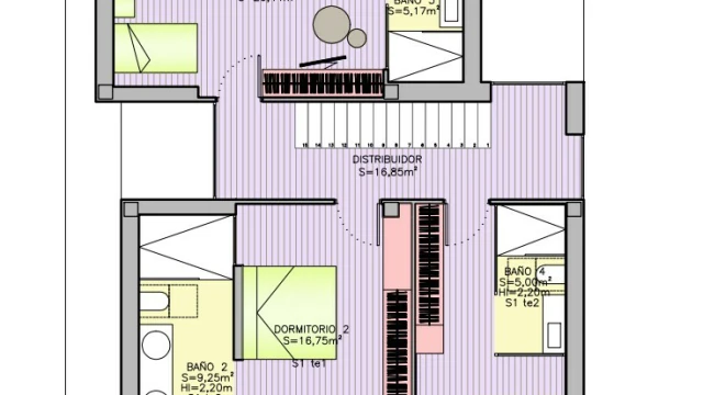
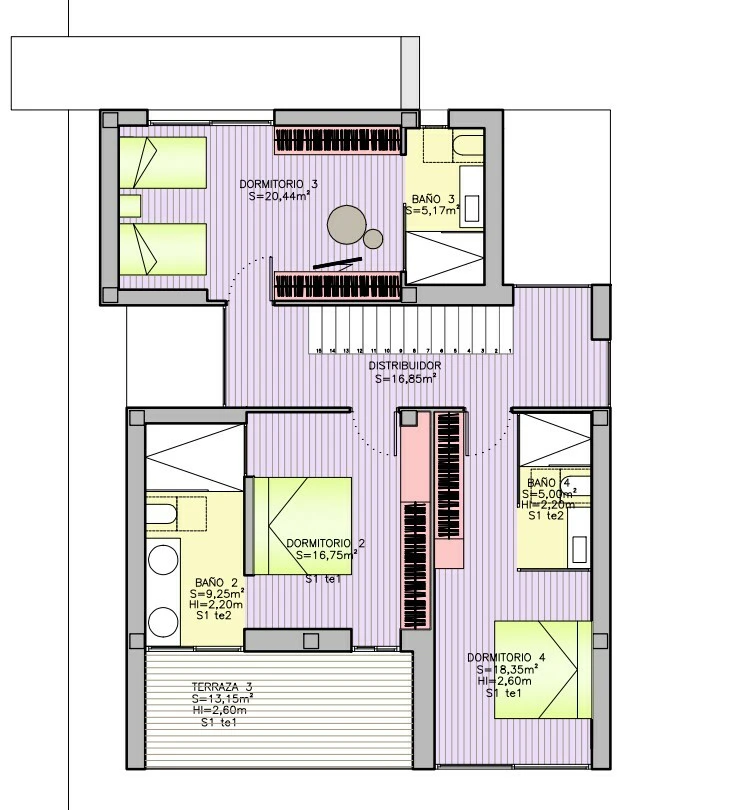
Viloje įrengtos keturios miegamojo erdvės, trys vonios kambariai, svetainė su virtuve, terasa ir stogo soliariumas – erdvi stogo terasa, kur galima ilsėtis ir degintis.

Vila yra vos penkių minučių pėsčiomis atstumu nuo didelio, gražaus paplūdimio.

Puikiai išvystyta infrastruktūra:

  • parduotuvės
  • restoranai ir kavinės
  • parkai
  • mokykla ir vaikų darželis
  • medicinos įstaigos
  • SPA / grožio salonas
  • fitneso centras
  • golfo aikštynai

Patogumai

  • Virtuvės baldai
  • Virtuvės įranga
  • Įmontuotos spintos
  • Automatinis laistymas
  • Oro kondicionierius
  • Centrinis oro kondicionavimas
  • Individualus oro kondicionavimas
  • Šildomos grindys vonioje
  • Šildomos grindys name
  • Internetas
  • Telefono linija
  • Signalizacija
  • Sauga
  • Privatus baseinas
  • Garažo vietos

Vaizdo įrašas

Vietovės

Panašūs objektai


Paskutiniai peržiūrėti objektai


WhatsApp