Preloader
Pardavimui
Naujos statybos

Modernūs apartamentai su vaizdu į lagūną ir baseinu Los Balcones rajone

Torrevieja

  • Bendr. plotas, m²157 м2
  • Miegamieji3 Miegamieji
  • Vonia2 Vonia

Konvertuoti 299 900 €

TerasaSodas

Bendra informacija Rodyti žemėlapyje

  • Miestas: Torrevieja
  • Provincija: Alicante
  • Pakrantė: Costa Blanca
  • Balkonai / terasos: Taip
  • Sodas: Taip
  • Baseinas: Taip
  • Kalnuose: Taip
  • Miške: Taip
  • Kaimo vietovėje: Taip
  • Priemiestyje: Taip
  • Miesto centre: Taip
  • Sodybų kaime: Taip
  • Vaizdas į kalnus: Taip
  • Vaizdas į mišką: Taip
  • Vaizdas į jūrą: Taip
  • Vaizdas į ežerą: Taip
  • Vaizdas į upę: Taip
  • Panoraminis vaizdas: Taip
  • Vaizdas į gatvę: Taip

Aprašas

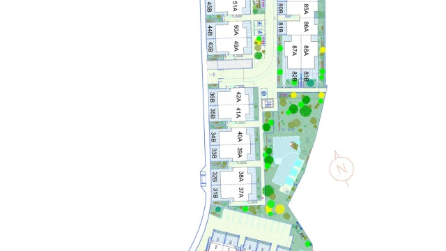
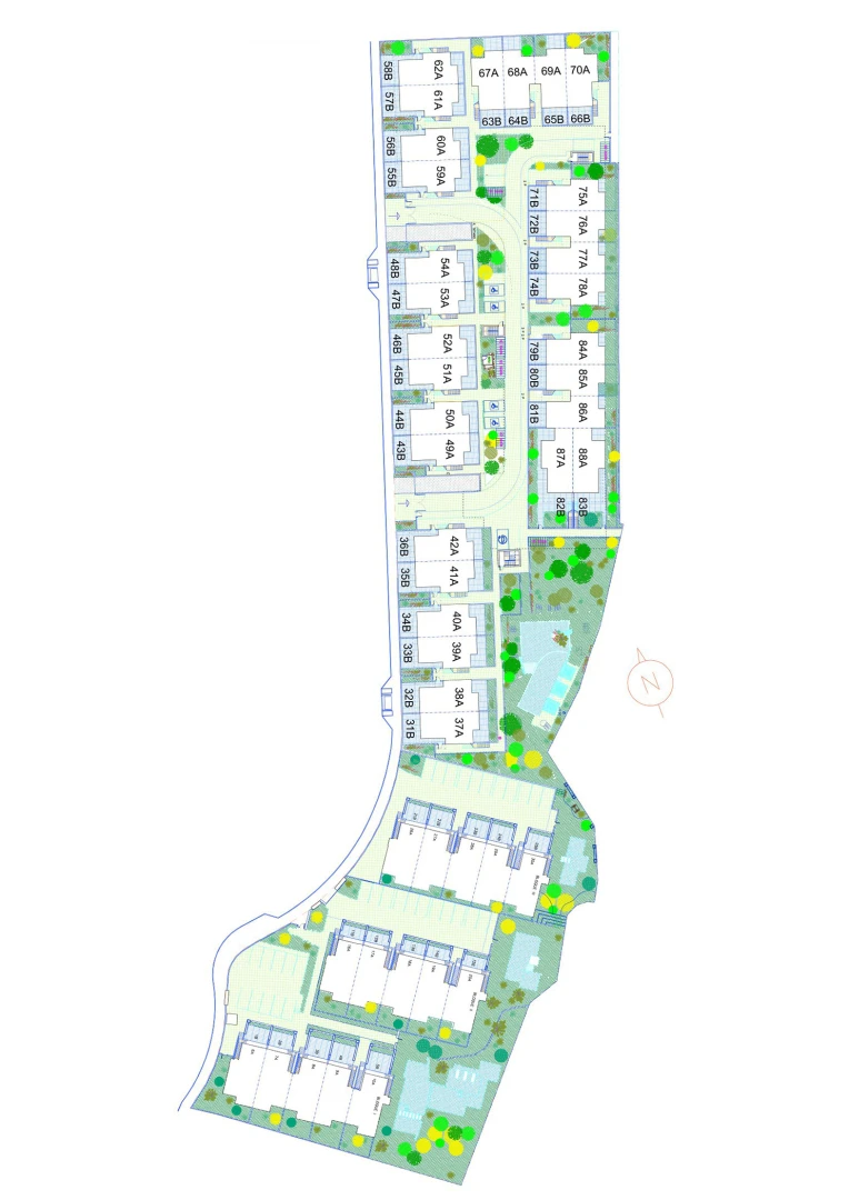
Sveiki atvykę į išskirtinį gyvenamąjį kompleksą, esantį Torreviechoje, prestižiniame Los Balcones – Los Altos del Edén rajone. Šis modernus projektas apima 30 apartamentų, specialiai suprojektuotų taip, kad atitiktų aukščiausius komforto ir stiliaus standartus.

Kompleksas įsikūręs vienoje iš populiariausių vietovių visoje Kosta Blankoje ir siūlo ramybės atmosferą ryškioje ir gyvybingoje Alikantės širdyje. Puiki komplekso vieta leidžia gyventojams mėgautis įspūdingais panoraminiais vaizdais dėl artumos nuostabiai rožinei lagūnai ir garsiems, netoliese esantiems paplūdimiams.

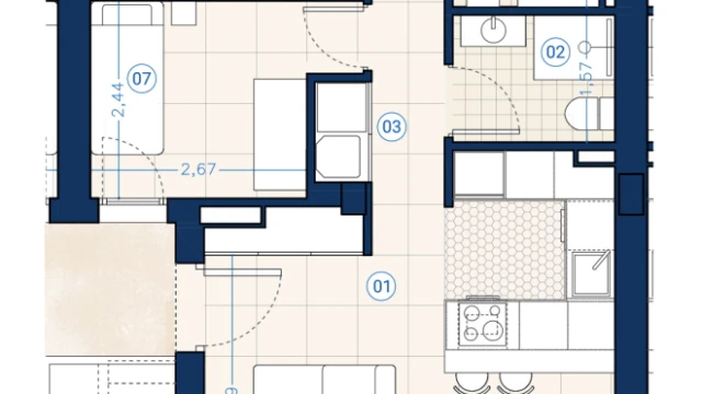
Šiuolaikinio dizaino gyvenamosios erdvės turi nuo 2 iki 3 miegamųjų ir yra įrengtos naudojant aukštos kokybės apdailos medžiagas. Kiekvienas būstas turi privačias lauko erdves – terasą, balkoną ir (arba) sodą, puikiai tinkančias mėgautis unikaliu kraštovaizdžiu ir įspūdingais apylinkių vaizdais.

Komplekse įrengtos erdvios bendro naudojimo zonos:

  • didelis bendras baseinas,
  • sutvarkytos žaliuojančios poilsio erdvės,
  • privetos parkavimo vietos gyventojams.

Visa tai daro šį kompleksą idealia vieta poilsiui ir gyvenimui, leidžiančia visiškai mėgautis visais Torrevjechos teikiamais privalumais.

Gyvenamasis plotas sudaro 157 m², o kainos svyruoja nuo 274 900 € iki 289 900 €. Šie objektai yra puikus pasirinkimas tiems, kurie ieško aukštos gyvenimo kokybės išskirtinėje aplinkoje.

Patogumai

  • Terasa
  • Sodas
  • Privatus baseinas
  • Bendras baseinas
  • Išorinis langas
  • Sodo zonos
  • Žaliosios zonos

Vaizdo įrašas

Vietovės

Panašūs objektai


Paskutiniai peržiūrėti objektai


WhatsApp