Preloader
Pardavimui
Naujos statybos

Nauja moderni vieno aukšto vila su baseinu Daya Nueva miestelyje

Daya Nueva

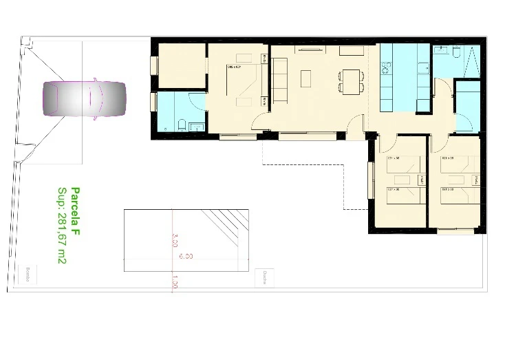
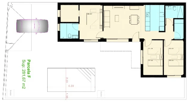
  • Bendr. plotas, m²117 м2
  • Miegamieji3 Miegamieji
  • Vonia2 Vonia

Konvertuoti 359 000 €

SodasVidinis kiemas

Bendra informacija Rodyti žemėlapyje

  • Miestas: Daya Nueva
  • Provincija: Alicante
  • Pakrantė: Costa Blanca
  • Statybos metai: October 2020
  • Sklypo plotas, m²: 282
  • Sodas: Taip
  • Baseinas: Taip
  • Atstumas iki jūros (m): 10000
  • Kalnuose: Taip
  • Miške: Taip
  • Kaimo vietovėje: Taip
  • Priemiestyje: Taip
  • Miesto centre: Taip
  • Sodybų kaime: Taip
  • Vaizdas į kalnus: Taip
  • Vaizdas į mišką: Taip
  • Vaizdas į jūrą: Taip
  • Vaizdas į ežerą: Taip
  • Vaizdas į upę: Taip
  • Panoraminis vaizdas: Taip
  • Vaizdas į gatvę: Taip

Aprašas

Parduodama nauja, šiuolaikiška vila, įsikūrusi Daya Nueva miestelyje. Vieno aukšto, 117 kv. m ploto vila turi tris miegamuosius, erdvią svetainę sujungtą su atvira virtuve ir du vonios kambarius.

Namui priklauso 282 kv. m sklypas, kuriame įrengta poilsio ir pikniko zona bei privatus baseinas.

Į vilos kainą įskaičiuota:

  • Parengta instaliacija centriniam oro kondicionieriui;
  • Įmontuoti baldai;
  • Privatus baseinas;
  • Apšvietimas;
  • Pilnai įrengti vonios kambariai su šildomomis grindimis.

Objekto užbaigimas – per 8 mėnesius nuo rezervacijos mokesčio (6000 eurų) sumokėjimo.

Netoliese – išplėtota infrastruktūra: prekybos centras, parduotuvės, barai, restoranai, mokykla, vaistinės, viešojo transporto stotelės ir parkai.

Daya Nueva – miestelis Ispanijoje, priklausantis autonominei Valensijos bendruomenei, Alikantės provincijai. Pavadinimo dalis „Daya“ reiškia „mažą uždarą įlankėlę“. Netoliese tekanti Seguros upė šioje vietovėje sudaro būdingus lėtai tekančio vandens telkinius. Žodis „Nueva“ reiškia „nauja“.

Klimatas čia – sausas Viduržemio jūros, su daugybe saulėtų dienų ir nedideliu kritulių kiekiu.

Įsigijus nekilnojamąjį turtą Ispanijoje, galima gauti leidimą gyventi šalyje. Mūsų įmonė padeda sutvarkyti bet kokio tipo leidimus gyventi. Perkant nekilnojamąjį turtą, kurio vertė viršija 300 000 eurų, leidimą gyventi parengiame kaip dovaną.

Patogumai

  • Sodas
  • Spinta
  • Kiemo terasa
  • Virtuvės baldai
  • Įmontuotos spintos
  • Oro kondicionierius
  • Šildomos grindys vonioje
  • Internetas
  • Privatus baseinas

Vaizdo įrašas

Vietovės

Panašūs objektai


Paskutiniai peržiūrėti objektai


WhatsApp