Preloader
Pardavimui
Naujos statybos

Nauja moderni vila su baseinu ir sodu La Romanoje, netoli Alikantės

La Romana

  • Bendr. plotas, m²115 м2
  • Miegamieji2 Miegamieji
  • Vonia2 Vonia

Konvertuoti 215 000 €

TerasaSodasSandėliukasGrilisGaražo vietosVidinis kiemasVaizdas į gatvę

Bendra informacija Rodyti žemėlapyje

  • Miestas: La Romana
  • Provincija: Alicante
  • Pakrantė: Costa Blanca
  • Terasos plotas, m²: 17
  • Aukštas: 1
  • Balkonai / terasos: Taip
  • Garažo vietos: 1
  • Sodas: Taip
  • Baseinas: Taip
  • Atstumas iki jūros (m): 37000
  • Kalnuose: Taip
  • Miške: Taip
  • Kaimo vietovėje: Taip
  • Priemiestyje: Taip
  • Miesto centre: Taip
  • Sodybų kaime: Taip
  • Vaizdas į kalnus: Taip
  • Vaizdas į mišką: Taip
  • Vaizdas į jūrą: Taip
  • Vaizdas į ežerą: Taip
  • Vaizdas į upę: Taip
  • Panoraminis vaizdas: Taip
  • Vaizdas į gatvę: Taip

Aprašas

Pristatoma nauja vystytojo vila La Romanoje. Namas stovi dideliame sklype su puikiais vaizdais. La Romana – tipiškas Ispanijos miestelis, apsuptas kalnų ir esantis maždaug už 30 min. kelio nuo jūros. Iki Alikantės oro uosto – apie 30 minučių automobiliu.

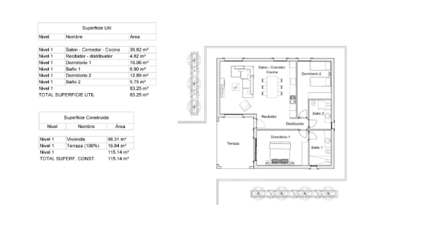
Vieno aukšto namas suprojektuotas patogiam gyvenimui ir susideda iš:

  • 2 miegamųjų;
  • 2 vonios kambarių;
  • rūbinės;
  • svetainės;
  • įrengtos atviros virtuvės su integruota buitinė technika.

Bendras namo plotas – 115,14 kv. m, terasos plotas – 16,84 kv. m.

Į kainą įskaičiuota:

  • iš anksto įrengta oro kondicionavimo sistema;
  • grindinis šildymas vonios kambariuose;
  • automatinės žaliuzės;
  • įmontuojamos spintos;
  • pilnai įrengti vonios kambariai;
  • šarvuotos įėjimo durys.

Sklype įrengta parkavimo vieta, 32 kv. m ploto baseinas ir didelis sutvarkytas sodas su automatine laistymo sistema. Pagal naujojo savininko pageidavimą čia galima įrengti kepsninės zoną ar vaikų žaidimų aikštelę.

Statybose ir apdailoje naudojamos tik aukštos kokybės medžiagos, užtikrinančios ekonomiškumą ir energinį efektyvumą. Namas pasižymi šiuolaikiniu dizainu ir modernaus stiliaus eksterjeru. Tai išskirtinis ir komfortiškas būstas, leidžiantis mėgautis išskirtine aplinka.

Galima rezervacija internetu ir pirkimas išsimokėtinai su 3–6 % palūkanų norma. Perkant nekilnojamąjį turtą Ispanijoje, galima gauti leidimą gyventi šalyje. Mūsų įmonė padeda sutvarkyti visų tipų leidimus gyventi.

Patogumai

  • Terasa
  • Soliarumas
  • Sandėliukas
  • Sodas
  • Grilis
  • Spinta
  • Kiemo terasa
  • Virtuvės baldai
  • Virtuvės įranga
  • Įmontuotos spintos
  • Oro kondicionierius
  • Individualus šildymas
  • Šildomos grindys vonioje
  • Greitas internetas
  • Signalizacija
  • Šarvuotos durys
  • Privatus baseinas
  • Garažo vietos

Vaizdo įrašas

Vietovės

Panašūs objektai


Paskutiniai peržiūrėti objektai


WhatsApp