Preloader
Pardavimui
Naujos statybos

Nauja moderni vieno aukšto vila su baseinu ir sodu La Romanoje

La Romana

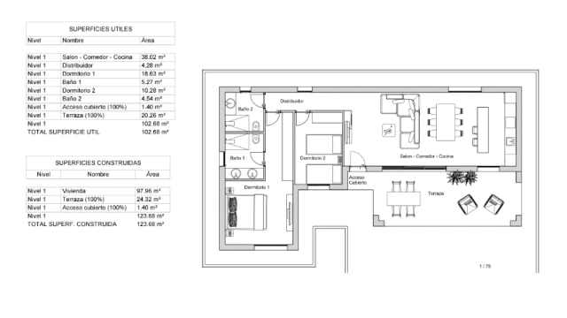
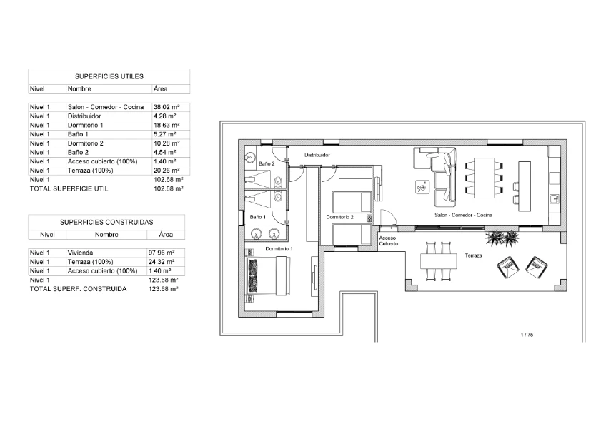
  • Bendr. plotas, m²124 м2
  • Miegamieji2 Miegamieji
  • Vonia2 Vonia

Konvertuoti 218 000 €

TerasaSodasSandėliukasGrilisGaražo vietosVidinis kiemasVaizdas į gatvę

Bendra informacija Rodyti žemėlapyje

  • Miestas: La Romana
  • Provincija: Alicante
  • Pakrantė: Costa Blanca
  • Sklypo plotas, m²: 14569
  • Terasos plotas, m²: 25
  • Aukštas: 1
  • Balkonai / terasos: Taip
  • Garažo vietos: 1
  • Sodas: Taip
  • Baseinas: Taip
  • Atstumas iki jūros (m): 37000
  • Kalnuose: Taip
  • Miške: Taip
  • Kaimo vietovėje: Taip
  • Priemiestyje: Taip
  • Miesto centre: Taip
  • Sodybų kaime: Taip
  • Vaizdas į kalnus: Taip
  • Vaizdas į mišką: Taip
  • Vaizdas į jūrą: Taip
  • Vaizdas į ežerą: Taip
  • Vaizdas į upę: Taip
  • Panoraminis vaizdas: Taip
  • Vaizdas į gatvę: Taip

Aprašas

Pristatoma nauja vystytojo vila La Romanoje. Namas yra dideliame sklype su puikiais vaizdais.

Vieno aukšto namas susideda iš dviejų miegamųjų, dviejų vonios kambarių, drabužinės, svetainės ir įrengtos atviros virtuvės. Namo plotas – 123,68 kv. m, o terasos plotas – 24,32 kv. m.

Į kainą įskaičiuota:

  • paruošta instaliacija oro kondicionieriui,
  • grindinis šildymas vonios kambariuose,
  • automatinės žaliuzės,
  • įmontuotos spintos,
  • pilnai įrengti vonios kambariai,
  • šarvuotos įėjimo durys.

Sklype įrengta automobilių stovėjimo vieta, 32 kv. m baseinas ir didelis sutvarkytas sodas su automatine laistymo sistema. Pagal savininko pageidavimą sode galima įrengti kepsninės zoną ar vaikų žaidimų aikštelę.

Statybai ir apdailai naudojamos tik aukštos kokybės medžiagos, kartu užtikrinant ekonomiškumą ir energinį efektyvumą. Namas pasižymi šiuolaikišku dizainu ir fasadu. Tai išskirtinis ir patogus būstas, leidžiantis mėgautis išskirtine aplinka.

La Romana – Ispanijos savivaldybė Alikantės provincijoje, priklausanti Valensijos autonominiam regionui. Tai tipiškas ispaniškas miestelis, apsuptas kalnų ir esantis maždaug 30 minučių kelio nuo jūros. Vila yra vos apie 30 minučių atstumu nuo Alikantės oro uosto.

Galima atlikti nuotolinę rezervaciją, taip pat įsigyti būstą išsimokėtinai su 3–6 % metinėmis palūkanomis. Įsigijus nekilnojamąjį turtą Ispanijoje, galima gauti leidimą gyventi. Mūsų įmonė padeda sutvarkyti bet kokio tipo leidimą gyventi.

Patogumai

  • Terasa
  • Soliarumas
  • Sandėliukas
  • Sodas
  • Grilis
  • Spinta
  • Kiemo terasa
  • Virtuvės baldai
  • Virtuvės įranga
  • Įmontuotos spintos
  • Automatinis laistymas
  • Oro kondicionierius
  • Individualus šildymas
  • Šildomos grindys vonioje
  • Greitas internetas
  • Signalizacija
  • Šarvuotos durys
  • Privatus baseinas
  • Garažo vietos

Vaizdo įrašas

Vietovės

Panašūs objektai


Paskutiniai peržiūrėti objektai


WhatsApp