Preloader
Pardavimui
Naujos statybos

Šiuolaikinė įrengta vila su baseinu ir terasa Finistrate, šalia Benidormo

Benidorm

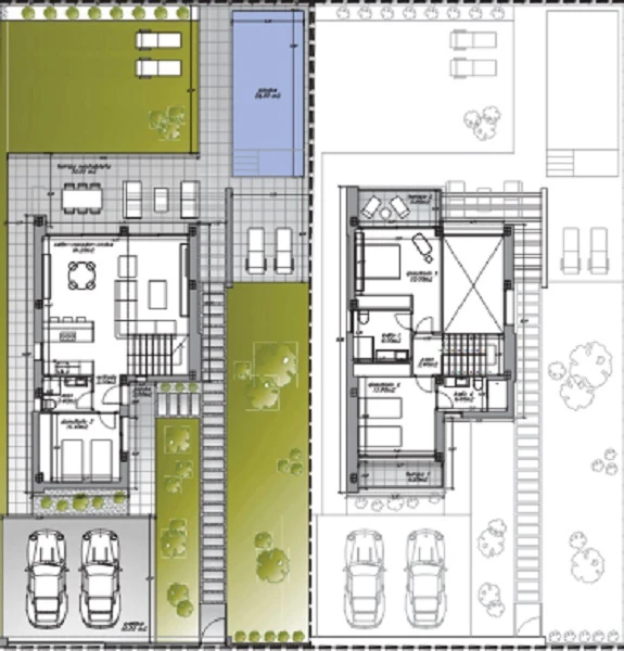
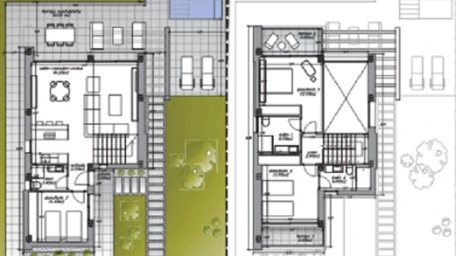
  • Bendr. plotas, m²159 м2
  • Miegamieji3 Miegamieji
  • Vonia3 Vonia

Konvertuoti 840 000 €

TerasaSandėliukasBaldaiVidinis kiemas

Bendra informacija Rodyti žemėlapyje

  • Miestas: Benidorm
  • Provincija: Alicante
  • Pakrantė: Costa Blanca
  • Statybos metai: 2024
  • Sklypo plotas, m²: 446
  • Balkonai / terasos: Taip
  • Baseinas: Taip
  • Atstumas iki jūros (m): 1000
  • Kalnuose: Taip
  • Miške: Taip
  • Kaimo vietovėje: Taip
  • Priemiestyje: Taip
  • Miesto centre: Taip
  • Sodybų kaime: Taip
  • Vaizdas į kalnus: Taip
  • Vaizdas į mišką: Taip
  • Vaizdas į jūrą: Taip
  • Vaizdas į ežerą: Taip
  • Vaizdas į upę: Taip
  • Panoraminis vaizdas: Taip
  • Vaizdas į gatvę: Taip

Aprašas

Parduodama nauja, šiuolaikinė vila Finistrato mieste.

Sklypo plotas – 446 kv. m. Čia įrengta žalia poilsio ir pikniko zona, privatus baseinas bei automobilių stovėjimo vieta.

Vilos plotas – 159 kv. m. Pirmame aukšte – šviesi svetainė su atvira virtuve, trys miegamieji, trys vonios kambariai, erdvi terasa su panoraminiu vaizdu į apylinkes.

Vila visiškai įrengta ir paruošta gyvenimui: parduodama su visais reikalingais baldais, buitinėmis priemonėmis ir įranga.

Šalia vilos yra visa kas reikalinga kasdieniam gyvenimui: prekybos centras, parduotuvės, vaistinės, administraciniai biurai, bankai, mokykla, poilsio zonos ir parkai, medicinos centras, autobusų stotelės.

Istorinė Finistrato dalis yra netoli kurortinio Benidormo – maždaug už 3 km nuo jūros, 238 m virš jūros lygio, nuo jo atskirta Sierra Cortina kalnų grandine.

Kalvotoje prieškalnių vietovėje plyti vaizdingi nedideli parkai. Virš istorinės centro dalies iš vienos pusės iškyla į milžinišką varpą panašus Puch Kampanos kalnas, o jūros ir Benidormo kryptimi atsiveria vaizdas į žaliuojančias, žaluma apsuptas vilas.

Pajūrio Finistratas – tai rami, žalia zona, kur galima mėgautis ramiu poilsiu. Čia gausu vaikų žaidimų aikštelių, sporto įrenginių, o privačių, originalios architektūros vilų teritorijose ir uždaruose viešbučių kompleksuose įrengti baseinai.

Perkant šį nekilnojamojo turto objektą, mes padovanosime visai jūsų šeimai investuotojo leidimo gyventi dokumentų parengimą!

Patogumai

  • Terasa
  • Sandėliukas
  • Spinta
  • Kiemo terasa
  • Baldai
  • Virtuvės baldai
  • Virtuvės įranga
  • Įmontuotos spintos
  • Oro kondicionierius
  • Šildomos grindys vonioje
  • Internetas
  • Telefono linija
  • Privatus baseinas

Vaizdo įrašas

Vietovės

Panašūs objektai


Paskutiniai peržiūrėti objektai


WhatsApp