Preloader
Pardavimui
Naujos statybos

Nauji apartamentai su vaizdu į jūrą Punta Primėje

Torrevieja

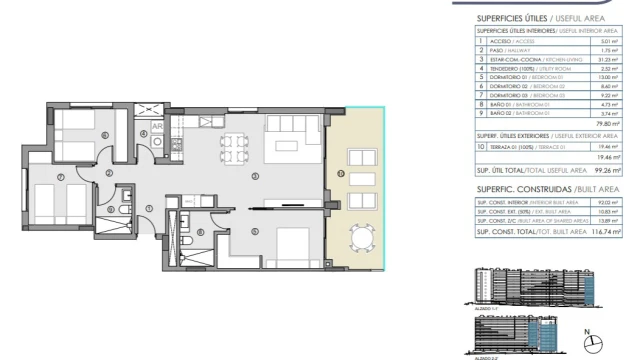
  • Bendr. plotas, m²99 м2
  • Miegamieji3 Miegamieji
  • Vonia2 Vonia

Konvertuoti 364 000 €

TerasaLiftasVaizdas į jūrąVaikų žaidimų aikštelė

Bendra informacija Rodyti žemėlapyje

  • Miestas: Torrevieja
  • Provincija: Alicante
  • Rajonas: Punta Prima
  • Pakrantė: Costa Blanca
  • Statybos metai: February 2027
  • Terasos plotas, m²: 20
  • Aukštas: 3
  • Liftas: Taip
  • Balkonai / terasos: Taip
  • Baseinas: Taip
  • Atstumas iki jūros (m): 100
  • Kalnuose: Taip
  • Miške: Taip
  • Kaimo vietovėje: Taip
  • Priemiestyje: Taip
  • Miesto centre: Taip
  • Sodybų kaime: Taip
  • Vaizdas į kalnus: Taip
  • Vaizdas į mišką: Taip
  • Vaizdas į jūrą: Taip
  • Vaizdas į ežerą: Taip
  • Vaizdas į upę: Taip
  • Panoraminis vaizdas: Taip
  • Vaizdas į gatvę: Taip

Aprašas

Naujas, šiuolaikiškas butas antroje linijoje nuo jūros, įsikūręs aukščiausios klasės gyvenamajame komplekse Punta Primės rajone.

Butas su vaizdu į jūrą, 99 kv. m ploto, susideda iš trijų šviesių miegamųjų, dviejų pilnai įrengtų vonios kambarių, svetainės su virtuve ir 20 kv. m terasos su nuostabiais vaizdais.

Į buto kainą įskaičiuota virtuvės buitinė technika (šaldytuvas, indaplovė, orkaitė ir mikrobangų krosnelė), įmontuotos spintos virtuvėje ir miegamuosiuose, elektrinis grindinis šildymas vonios kambariuose. Visi butai orientuoti į pietus.

Komplekso teritorijoje įrengtos bendro naudojimo zonos su dideliais sodais, pagrindiniu baseinu, šildomu baseinu, vaikų baseinu, sūkurine vonia (jacuzzi), sporto sale, sauna, petankės aikštele, šachmatais, stalo tenisu, padelio teniso kortu, vaikų žaidimų aikštele ir požeminiu parkingu.

Statybai ir apdailai naudojamos tik aukštos kokybės medžiagos.

Punta Prima – gyvenamasis rajonas, esantis vos už 5 minučių kelio nuo Torrevjechos ir geriausių Orihuela Costa paplūdimių, tik 40 km nuo Alikantės oro uosto, 15 minučių nuo Villamartín ir Las Ramblas golfo aikštynų ir 10 minučių nuo La Zenia Boulevard prekybos centro.

Ideali vieta nuolatiniam gyvenimui ir nuomai.

Galima internetinė rezervacija, taip pat pirkimas išsimokėtinai arba su 4–6 % metinėmis palūkanomis.

Perkant nekilnojamąjį turtą Ispanijoje, galima gauti leidimą gyventi. Mūsų įmonė padeda sutvarkyti bet kokio tipo leidimą gyventi.

Patogumai

  • Terasa
  • Spinta
  • Virtuvės baldai
  • Virtuvės įranga
  • Įmontuotos spintos
  • Liftas
  • Centrinis oro kondicionavimas
  • Šildomos grindys vonioje
  • Internetas
  • Telefono linija
  • Šarvuotos durys
  • Bendras baseinas
  • Žaidimų aikštelė
  • Sporto aikštelė
  • Sporto salė
  • Uždengta parkavimo vieta

Vaizdo įrašas

Vietovės

Panašūs objektai


Paskutiniai peržiūrėti objektai


WhatsApp