Preloader
Pardavimui
Naujos statybos

Naujas modernus butų kompleksas prie jūros Orihuela Costa kurorte

Orihuela

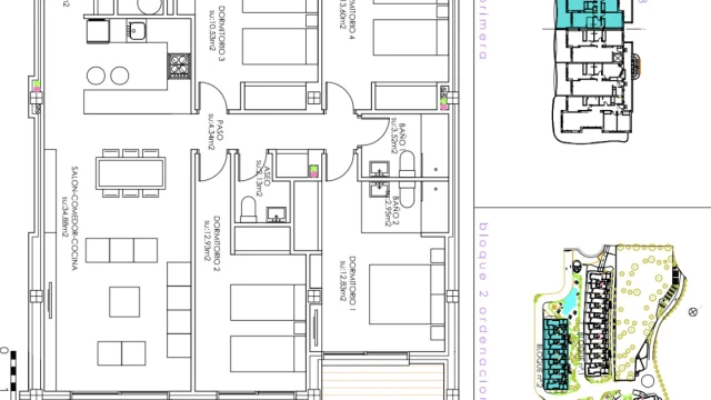
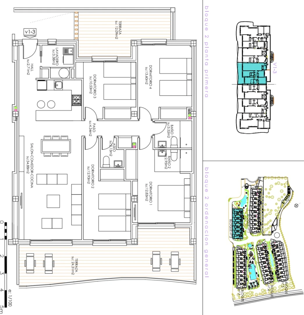
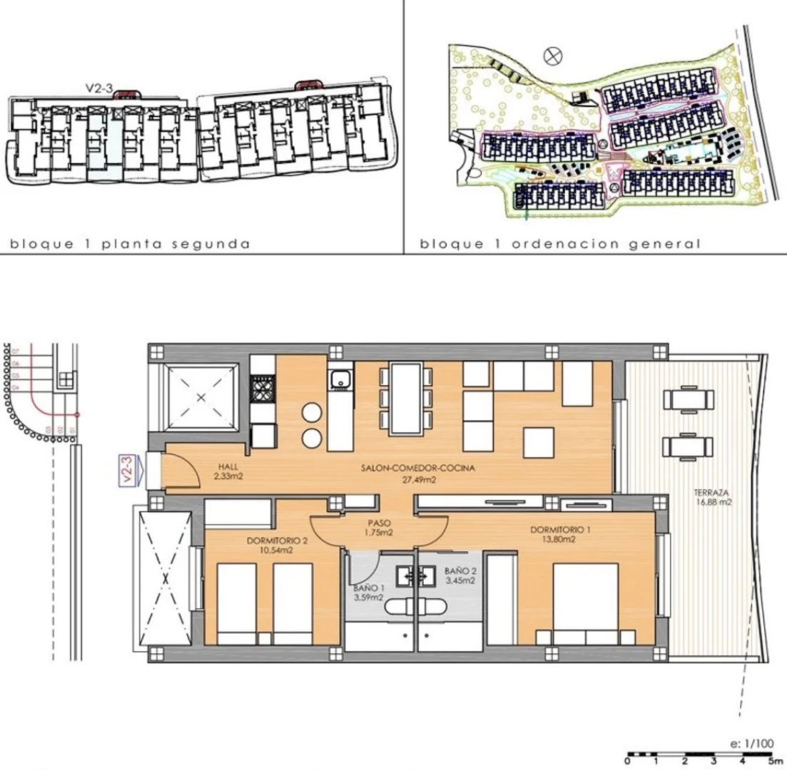
  • Bendr. plotas, m²127 м2
  • Miegamieji2 Miegamieji
  • Vonia2 Vonia

Konvertuoti 350 000 €

TerasaSodasLiftas

Bendra informacija Rodyti žemėlapyje

  • Miestas: Orihuela
  • Provincija: Alicante
  • Pakrantė: Costa Blanca
  • Liftas: Taip
  • Balkonai / terasos: Taip
  • Sodas: Taip
  • Baseinas: Taip
  • Kalnuose: Taip
  • Miške: Taip
  • Kaimo vietovėje: Taip
  • Priemiestyje: Taip
  • Miesto centre: Taip
  • Sodybų kaime: Taip
  • Vaizdas į kalnus: Taip
  • Vaizdas į mišką: Taip
  • Vaizdas į jūrą: Taip
  • Vaizdas į ežerą: Taip
  • Vaizdas į upę: Taip
  • Panoraminis vaizdas: Taip
  • Vaizdas į gatvę: Taip

Aprašas

Prestižiniame Orihuela Costa rajone, vos už 500 metrų nuo jūros, įsikūręs novatoriškas gyvenamasis kompleksas, naujai apibrėžiantis gyvenimo prie Viduržemio jūros meną. Įspūdingas projektas siūlo puikius bendrus baseinus, atgaivinančias sūkurines vonias ir kruopščiai suplanuotus sodus ramybei bei poilsiui.

Naujajame gyvenamajame komplekse siūlomas atidžiai atrinktas būstų pasirinkimas, kurių kaina svyruoja nuo 315 000 € iki 525 000 €, o plotas – nuo 99 m² iki 169 m². Pirkėjai gali rinktis butus su 2–4 miegamaisiais: pirmuose aukštuose – su jaukiais privatiais sodais arba viršutiniuose aukštuose – penthausus su išskirtiniais soliarumais. Visuose butuose į kainą įskaičiuota parkavimo vieta požeminiame garaže ir sandėliukas.

Dėl puikios vietos šis projektas užtikrina greitą susisiekimą su plačiu paslaugų spektru vos už kelių žingsnių: netoliese yra prekybos centrai, barai, restoranai ir daugybė kitų paslaugų, kuriančių tikrai svetingą aplinką. Be to, garsusis prekybos centras „Zenia Boulevard“ yra tik už 1 km, o keli žinomi golfo aikštynai – maždaug už 5 km, todėl čia garantuotas aktyvus ir turiningas gyvenimo būdas.

Orihuela Costa, Alikantės provincijoje, – tai kryptis, kur harmoningai dera pajūrio grožis ir aukštos kokybės paslaugos. Dėl švelnaus klimato ir nedidelio atstumo iki paplūdimių šis rajonas puikiai tinka ne tik poilsiui, bet ir nuolatiniam gyvenimui dinamiškoje, tačiau tuo pačiu atsipalaidavusioje aplinkoje.

Patogumai

  • Terasa
  • Sodas
  • Liftas
  • Privatus baseinas
  • Bendras baseinas
  • Žaliosios zonos
  • Privatus parkingas

Vaizdo įrašas

Vietovės

Panašūs objektai


Paskutiniai peržiūrėti objektai


WhatsApp