Preloader
Pardavimui
Naujos statybos

Naujos vilos su baseinu ir sodu ramioje La Romana, Alicante kaimo vietovėje

La Romana

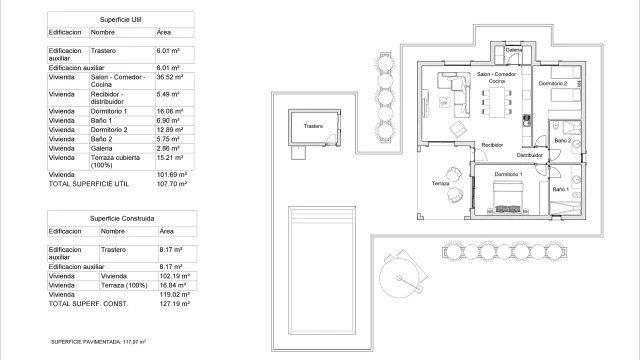
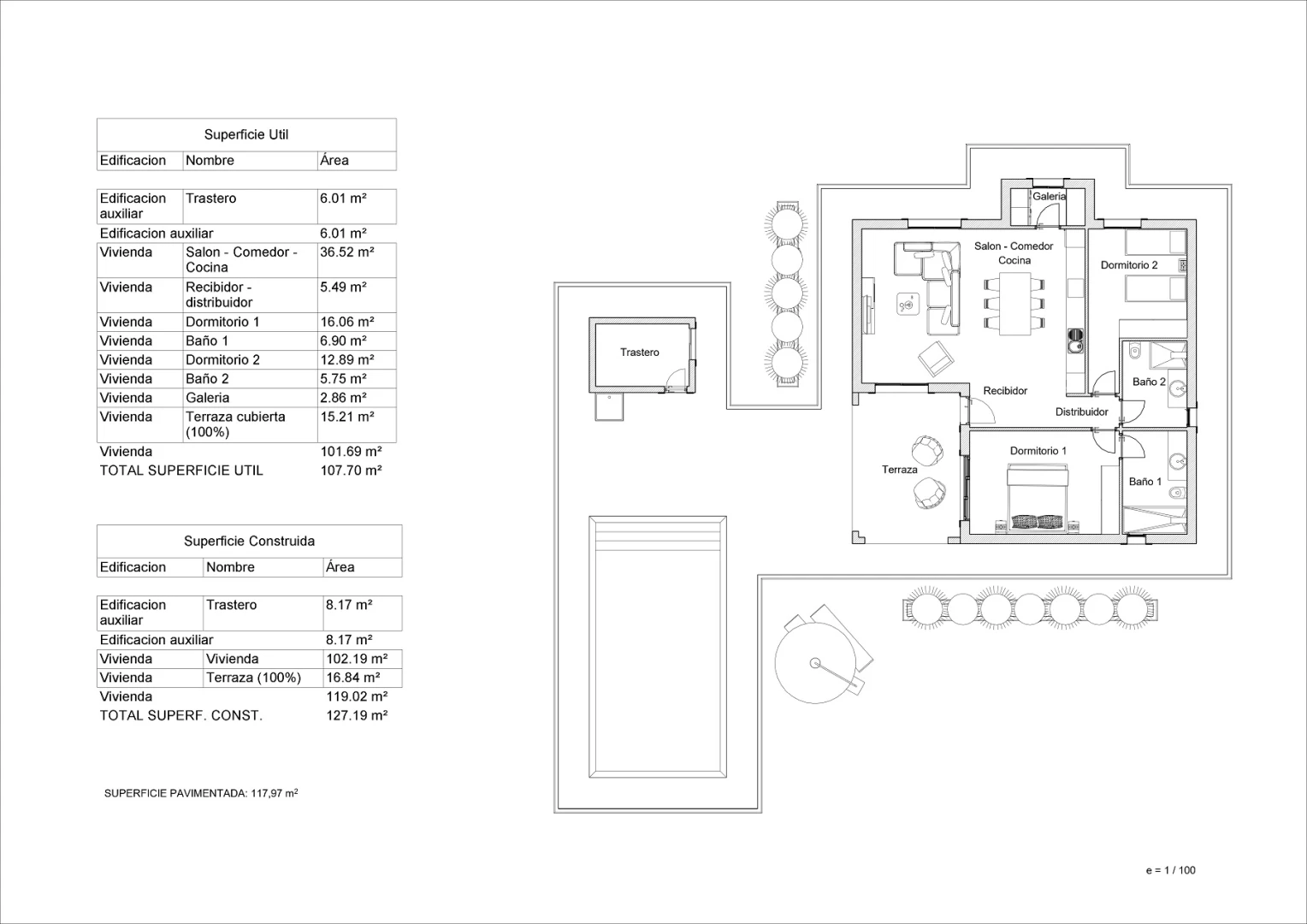
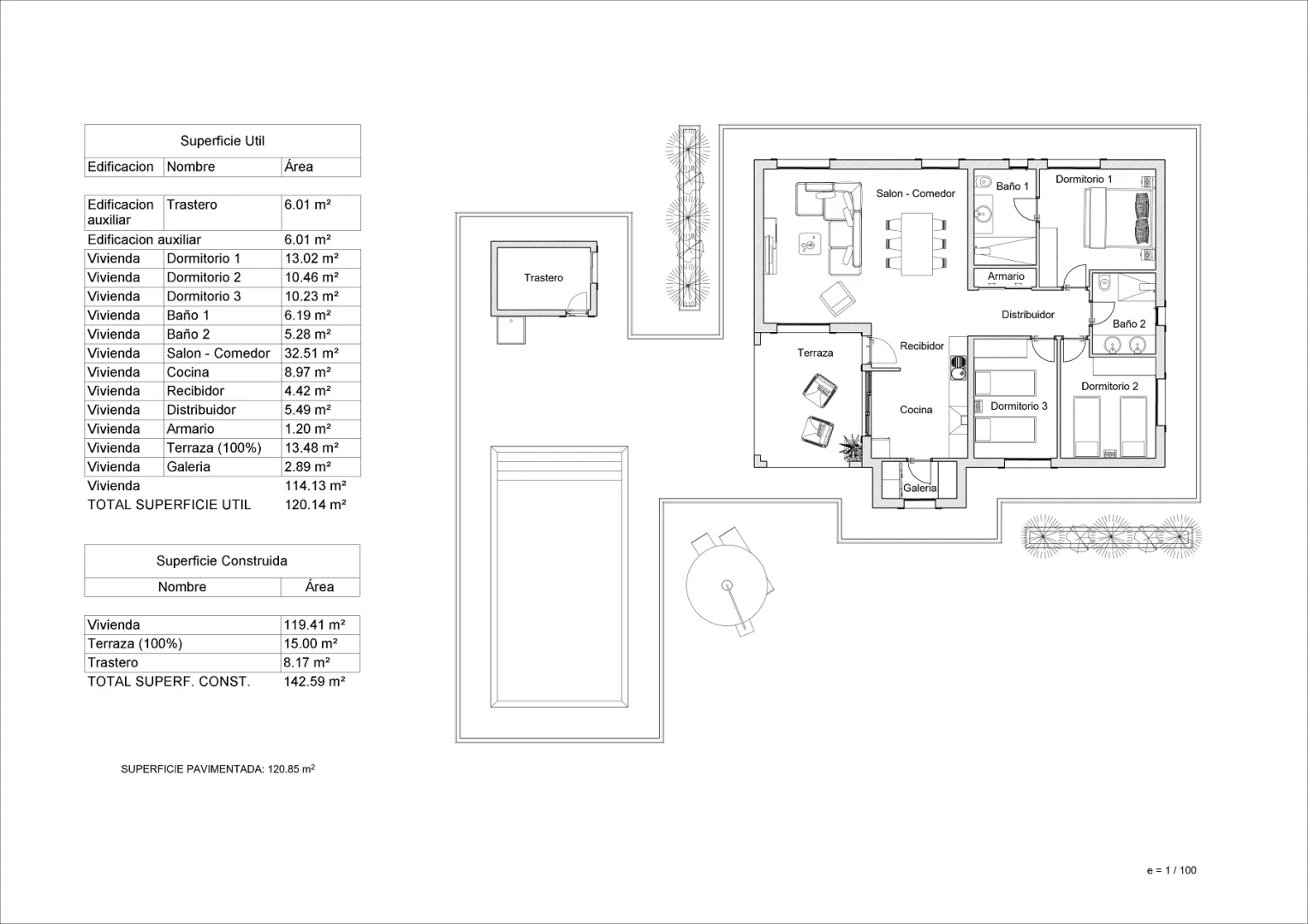
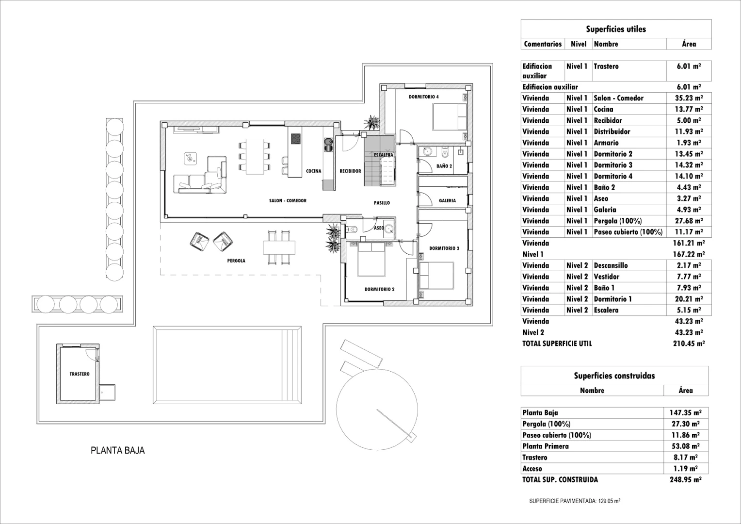
  • Bendr. plotas, m²121 м2
  • Miegamieji3 Miegamieji
  • Vonia2 Vonia

Konvertuoti 295 000 €

SodasŽidinys

Bendra informacija Rodyti žemėlapyje

  • Miestas: La Romana
  • Provincija: Alicante
  • Pakrantė: Costa Blanca
  • Sklypo plotas, m²: 142
  • Sodas: Taip
  • Baseinas: Taip
  • Kalnuose: Taip
  • Miške: Taip
  • Kaimo vietovėje: Taip
  • Priemiestyje: Taip
  • Miesto centre: Taip
  • Sodybų kaime: Taip
  • Vaizdas į kalnus: Taip
  • Vaizdas į mišką: Taip
  • Vaizdas į jūrą: Taip
  • Vaizdas į ežerą: Taip
  • Vaizdas į upę: Taip
  • Panoraminis vaizdas: Taip
  • Vaizdas į gatvę: Taip

Aprašas

Atraskite žavų kaimišką gyvenimo būdą nuostabiame Alikantės regione, La Romana miestelyje, su šiomis įspūdingomis vilomis.

Vilos statomos ant erdelių sklypų, o jūs galite rinktis iš dviejų elegantiškų stilių: modernaus arba klasikinio ispaniško – pagal savo poreikius ir asmeninį skonį.

Šie nauji namai siūlo lanksčius išplanavimo variantus: nuo 2 iki 4 miegamųjų ir 2 vonios kambarių. Visi kambariai suprojektuoti su įmontuotomis spintomis, kad būtų maksimaliai išnaudota erdvė.

Vilas supantis sodas pasižymi estetišku dizainu ir yra lengvai prižiūrimas. Čia galėsite mėgautis idealia aplinka privačiame sode.

  • Privatus baseinas, puikiai tinkantis poilsiui šiltais mėnesiais
  • Sklypas visiškai aptvertas, užtikrinant privatumą ir saugumą
  • Įvažiavimas per automatinius vartus automobiliams ir atskiri varteliai pėstiesiems

Laikantis tvarumo ir komforto principų, šiuose namuose įrengta saulės energijos sistemos išankstinė instaliacija ir jaukus židinys svetainėje.

Vonios kambariai ir virtuvė pilnai įrengti ir paruošti, kad galėtumėte pritaikyti juos savo stiliui, pasirinkdami buitinę techniką pagal savo skonį.

Gyvendami La Romana mėgausitės ramia kaimiška atmosfera, o šios naujos vilos suteiks idealų modernumo ir tradicijų derinį.

Siūlomas platus plotų pasirinkimas – nuo 127 m² iki 248 m², o kainos svyruoja nuo 210 000 € iki 385 500 €, todėl lengvai rasite variantą, geriausiai atitinkantį jūsų gyvenimo būdą.

Patogumai

  • Soliarumas
  • Sodas
  • Židinys
  • Įmontuotos spintos
  • Privatus baseinas
  • Privatus parkingas
  • Saulės energija

Vaizdo įrašas

Vietovės

Panašūs objektai


Paskutiniai peržiūrėti objektai


WhatsApp