Preloader
Pardavimui
Naujos statybos

Naujos vilos su privačiu baseinu ir sodu ramioje La Romanos vietovėje

La Romana

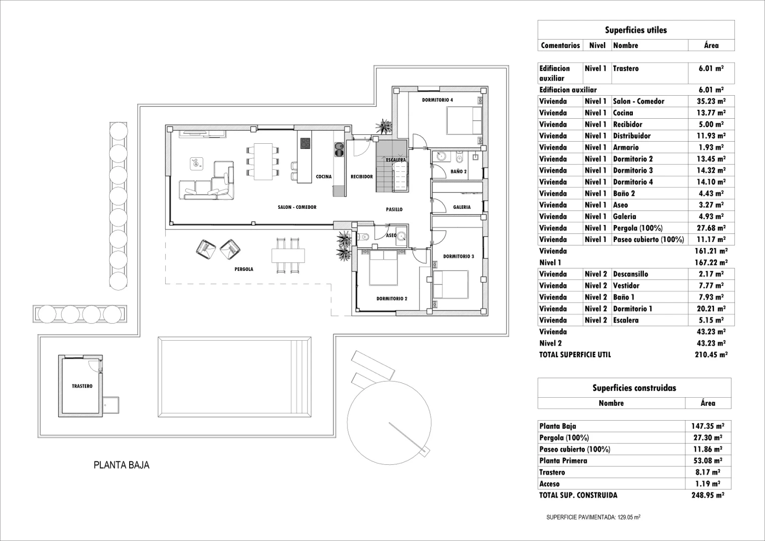
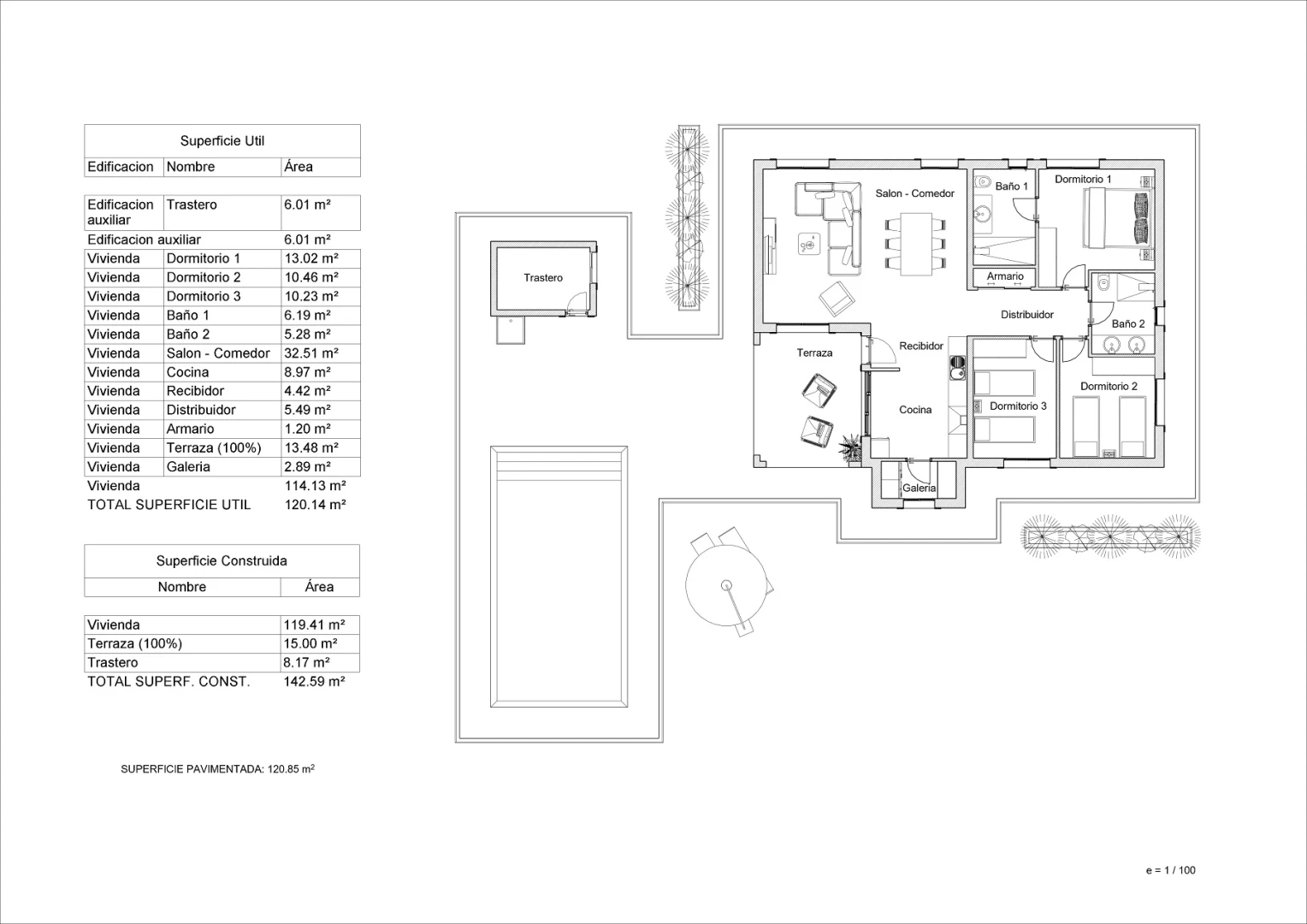
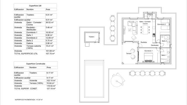
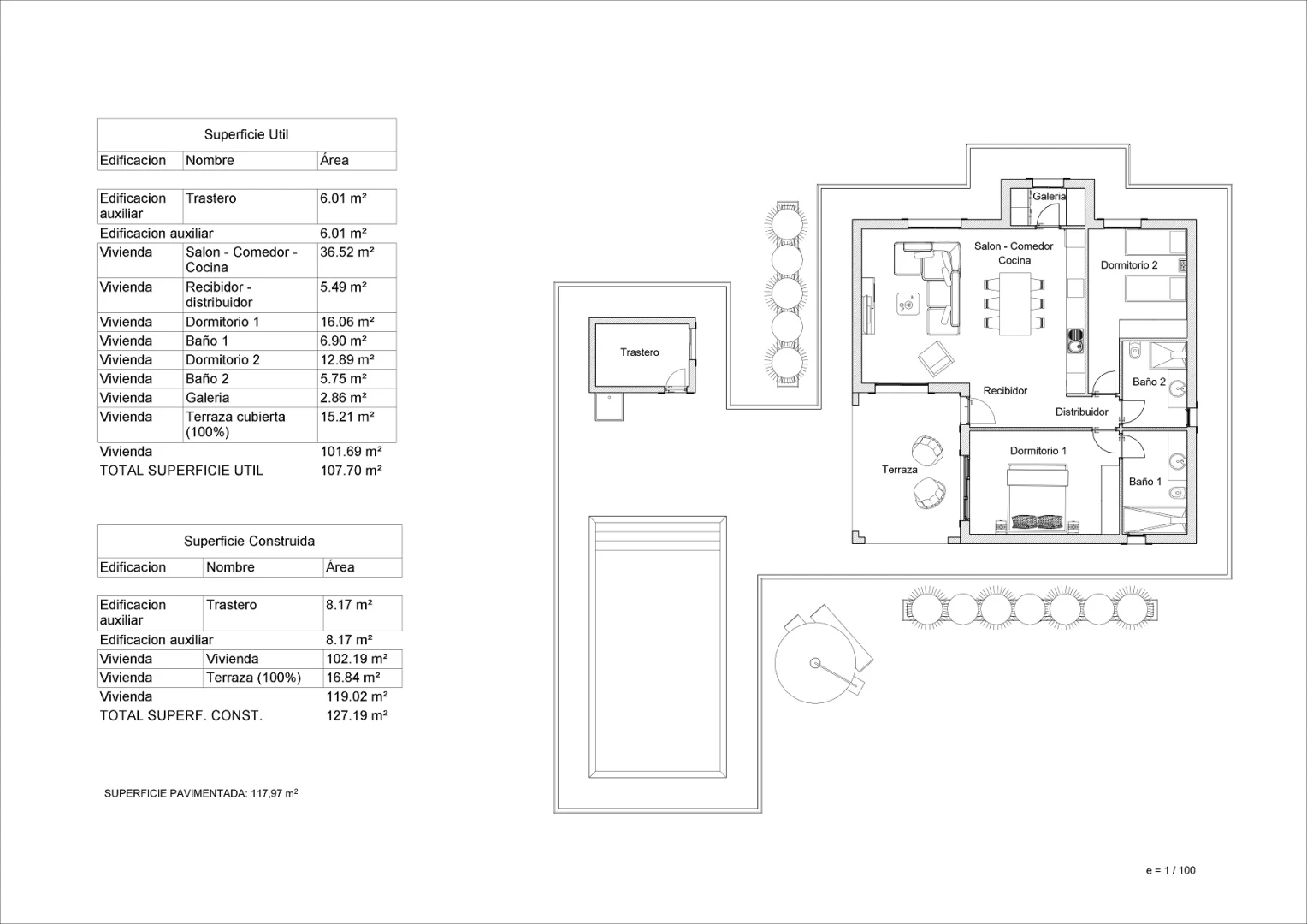
  • Bendr. plotas, m²118 м2
  • Miegamieji2 Miegamieji
  • Vonia2 Vonia

Konvertuoti 267 000 €

SodasŽidinys

Bendra informacija Rodyti žemėlapyje

  • Miestas: La Romana
  • Provincija: Alicante
  • Pakrantė: Costa Blanca
  • Sklypo plotas, m²: 127
  • Sodas: Taip
  • Baseinas: Taip
  • Kalnuose: Taip
  • Miške: Taip
  • Kaimo vietovėje: Taip
  • Priemiestyje: Taip
  • Miesto centre: Taip
  • Sodybų kaime: Taip
  • Vaizdas į kalnus: Taip
  • Vaizdas į mišką: Taip
  • Vaizdas į jūrą: Taip
  • Vaizdas į ežerą: Taip
  • Vaizdas į upę: Taip
  • Panoraminis vaizdas: Taip
  • Vaizdas į gatvę: Taip

Aprašas

Atraskite žavų kaimišką gyvenimo būdą nuostabiame Alikantės regione, La Romanoje, su šiomis įspūdingomis vilomis.

Šie gyvenamieji namai, įsikūrę erdeliuose sklypuose, siūlo pasirinkti vieną iš dviejų elegantiškų stilių: modernų arba klasikinį ispanišką, atitinkantį jūsų poreikius ir asmeninį skonį.

Naujos statybos vilos siūlo lanksčius išplanavimus su 2–4 miegamaisiais ir 2 vonios kambariais. Visuose kambariuose įrengtos sieninės spintos, kad erdvė būtų maksimaliai išnaudota.

Aplinkinis sodas suplanuotas estetiškai ir taip, kad jo priežiūra būtų kuo paprastesnė. Galėsite mėgautis tobula atmosfera privačiame sode.

Poilsiui šiltais mėnesiais – nuosavas privatus baseinas. Sklypas visiškai aptvertas, todėl užtikrinamas privatumas ir saugumas.

  • Automobiliams – elektriniai įvažiavimo vartai
  • Atskiri pėsčiųjų varteliai
  • Išankstinė saulės energijos instaliacija
  • Jaukus židinys svetainėje

Vonios kambariai ir virtuvė visiškai paruošti įrengti pagal jūsų stilių, su buitine technika jūsų pasirinkimu.

Gyvenimas La Romanoje leidžia mėgautis ramia kaimiška aplinka, o šios naujos vilos suteikia idealų šiuolaikiškumo ir tradicijų derinį.

Siūlomas platus plotų pasirinkimas – nuo 127 m² iki 248 m², o kainos svyruoja nuo 210 000 € iki 385 500 €, tad tikrai rasite variantą, geriausiai atitinkantį jūsų gyvenimo būdą.

Patogumai

  • Soliarumas
  • Sodas
  • Židinys
  • Įmontuotos spintos
  • Privatus baseinas
  • Privatus parkingas
  • Saulės energija

Vaizdo įrašas

Vietovės

Panašūs objektai


Paskutiniai peržiūrėti objektai


WhatsApp