Preloader
Pardavimui

Pilnai renovuota vila su baseinu ir parkingu San Luis rajone

Torrevieja

  • Bendr. plotas, m²100 м2
  • Miegamieji3 Miegamieji
  • Vonia2 Vonia

Konvertuoti 359 000 €

LiftasVaizdas į jūrąGaražo vietosVaizdas į gatvę

Bendra informacija Rodyti žemėlapyje

  • Miestas: Torrevieja
  • Provincija: Alicante
  • Pakrantė: Costa Blanca
  • Sklypo plotas, m²: 300
  • Liftas: Taip
  • Garažo vietos: 1
  • Baseinas: Taip
  • Atstumas iki jūros (m): 300
  • Kalnuose: Taip
  • Miške: Taip
  • Kaimo vietovėje: Taip
  • Priemiestyje: Taip
  • Miesto centre: Taip
  • Sodybų kaime: Taip
  • Vaizdas į kalnus: Taip
  • Vaizdas į mišką: Taip
  • Vaizdas į jūrą: Taip
  • Vaizdas į ežerą: Taip
  • Vaizdas į upę: Taip
  • Panoraminis vaizdas: Taip
  • Vaizdas į gatvę: Taip

Aprašas

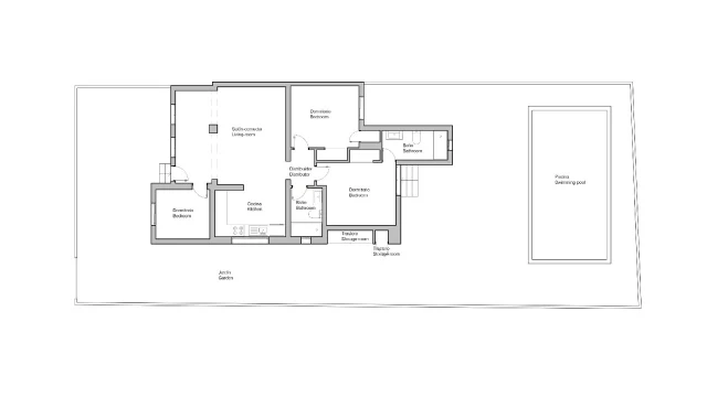
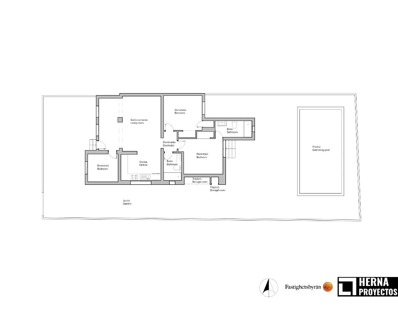
Ši visiškai renovuota vila San Luis rajone siūlo 100 kv. m gyvenamojo ploto 300 kv. m sklype.

Namas turi 3 miegamuosius, 2 vonios kambarius (vienas iš jų – su vonia), erdvų svetainės kambarį ir šiuolaikišką virtuvę.

Priekyje įrengti elektriniai vartai ir automobilių stovėjimo aikštelė dviem automobiliams. Vila renovuota aukštu lygiu, visos gyvenamosios erdvės ir miegamieji yra pilnai kondicionuojami.

Atviro išplanavimo svetainė sujungta su virtuve, o iš jos per terasos tipo vitrinas patenkama į baseino zoną.

Lauke įrengta kepsninė, pavėsinė ir 8 m x 4 m dydžio baseinas, apsuptas dirbtine veja.

Vila yra šalia Laguna de la Mata parko, netoli parduotuvių, barų ir restoranų, o prekybos centras „Habaneras“ pasiekiamas vos per kelias minutes automobiliu.

Patogumai

  • Liftas
  • Oro kondicionierius
  • Greitas internetas
  • Privatus baseinas
  • Garažo vietos

Vaizdo įrašas

Vietovės

Panašūs objektai


Paskutiniai peržiūrėti objektai


WhatsApp