Preloader
Pardavimui
Naujos statybos

Prabangi dviejų aukštų vila šalia golfo klubo ir gamtos parko, netoli jūros

Murcia

  • Bendr. plotas, m²111 м2
  • Miegamieji3 Miegamieji
  • Vonia2 Vonia

Konvertuoti 355 000 €

TerasaSodas

Bendra informacija Rodyti žemėlapyje

  • Miestas: Murcia
  • Provincija: Murcia
  • Pakrantė: Costa Blanca
  • Sklypo plotas, m²: 300
  • Balkonai / terasos: Taip
  • Sodas: Taip
  • Baseinas: Taip
  • Kalnuose: Taip
  • Miške: Taip
  • Kaimo vietovėje: Taip
  • Priemiestyje: Taip
  • Miesto centre: Taip
  • Sodybų kaime: Taip
  • Vaizdas į kalnus: Taip
  • Vaizdas į mišką: Taip
  • Vaizdas į jūrą: Taip
  • Vaizdas į ežerą: Taip
  • Vaizdas į upę: Taip
  • Panoraminis vaizdas: Taip
  • Vaizdas į gatvę: Taip

Aprašas

Ką pasakytumėte apie persikėlimą į prabangų namą šalia garsaus golfo klubo ir įspūdingos Siera de Karaskos kalnų grandinės, vos už kelių kilometrų nuo paplūdimio? Pristatome jums išskirtinį nekilnojamojo turto projektą, kuris siūlo būtent tai.

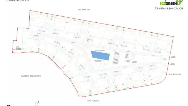
Šis gyvenamasis kompleksas susideda iš 17 atskirų dviejų aukštų vilų, visos su terasa, garažu, sodu ir elegantišku įėjimu su pergole. Tai uždara erdvė, sukurta patogiam ir ramiam gyvenimui.

Pirmame aukšte įrengta erdvi svetainė su valgomojo zona, miegamasis ir tualetas. Antrame aukšte yra dar du miegamieji, iš kurių vienas – su vonios kambariu, taip pat pilnas vonios kambarys.

Kiekviena vila taip pat turi papildomą aukštą, skirtą stogo terasai–soliariumui, kuris idealiai tinka mėgautis nuostabiomis saulėtomis dienomis. Komplekse įrengti baseinai, poilsio zona ir bendra automobilių stovėjimo aikštelė.

Šis nekilnojamasis turtas išsiskiria išskirtine apdaila ir moderniu, avangardiniu dizainu. Naudojamos aeroterminės sistemos ir naujausi energinio efektyvumo sprendimai, užtikrinantys maksimalų komfortą bei mažesnes energijos sąnaudas.

Viena didžiausių komplekso stiprybių – jo vieta: vos 25 minutės kelio iki Mursijos miesto ir tik 8 minutės automobiliu iki artimiausio miestelio, kuriame rasite visas reikalingas paslaugas ir infrastruktūrą – parduotuves, restoranus, mokyklas, sporto klubus.

Gyvendami čia būsite apsupti sporto, ramybės ir gamtos. Vos už penkių minučių kelio automobiliu yra žinomas gamtos parkas, puikiai tinkantis žygiams pėsčiomis ir poilsiui gryname ore su šeima. Tai neabejotinai ideali aplinka auginti vaikus ir kurti didelę šeimą.

Rezidencijų optimalus plotas – 115 m²: trys erdvūs miegamieji, du pilni vonios kambariai ir atskiras tualetas. Šis kompleksas – puikus pasirinkimas ieškantiems prabangos, komforto ir išskirtinai patogios lokacijos derinio.

Patogumai

  • Terasa
  • Soliarumas
  • Sodas
  • Privatus baseinas
  • Sporto salė
  • Išorinis langas
  • Sodo zonos
  • Golfo aikštynas
  • Žaliosios zonos
  • Vidaus langai

Vaizdo įrašas

Vietovės

Panašūs objektai


Paskutiniai peržiūrėti objektai


WhatsApp