Preloader
Pardavimui
Naujos statybos

Prabangios naujos vilos pušyne su baseinu netoli Kosta Blankos paplūdimių

Pilar de la Horadada

  • Bendr. plotas, m²270 м2
  • Miegamieji5 Miegamieji
  • Vonia4 Vonia

Konvertuoti 1 150 000 €

SodasGaražo vietos

Bendra informacija Rodyti žemėlapyje

  • Miestas: Pilar de la Horadada
  • Provincija: Alicante
  • Pakrantė: Costa Blanca
  • Sklypo plotas, m²: 500
  • Garažo vietos: 1
  • Sodas: Taip
  • Baseinas: Taip
  • Kalnuose: Taip
  • Miške: Taip
  • Kaimo vietovėje: Taip
  • Priemiestyje: Taip
  • Miesto centre: Taip
  • Sodybų kaime: Taip
  • Vaizdas į kalnus: Taip
  • Vaizdas į mišką: Taip
  • Vaizdas į jūrą: Taip
  • Vaizdas į ežerą: Taip
  • Vaizdas į upę: Taip
  • Panoraminis vaizdas: Taip
  • Vaizdas į gatvę: Taip

Aprašas

Pasinerkite į prabangą šiose įspūdingose vilose, įsikūrusiose išskirtinėje gamtinėje aplinkoje. Jos suprojektuotos taip, kad užtikrintų maksimalų komfortą ir stovi vešlaus pušyno bei nuostabių regiono paplūdimių apsuptyje – tai idealus išskirtinumo ir gamtos derinys.

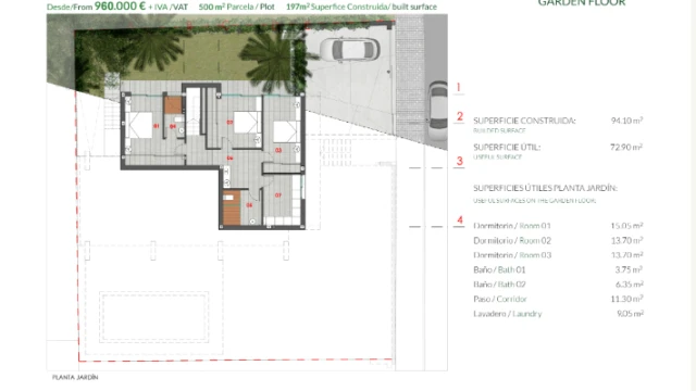
Kiekviena vila stovi ant maždaug 500 m² sklypo ir siūlo 4 arba 5 erdvius miegamuosius bei 4 elegantiškus vonios kambarius. Atviros erdvės suplanuotos taip, kad į vidų patektų kuo daugiau natūralios šviesos, o jūs galėtumėte mėgautis privačiu sodu su baseinu – idealia vieta naudotis Viduržemio jūros klimato privalumais visus metus.

Vilos, kurių plotas siekia apie 233 m² ir kurios šiuo metu dar statomos, išsiskiria išskirtinėmis savybėmis: PVC langais su termoizoliaciniu rėmu ir grindiniu šildymu. Namai išdėstyti per du aukštus, o plytų fasadas derina eleganciją ir ilgaamžiškumą.

Virtuvės – amerikietiško stiliaus, visiškai įrengtos, užtikrinančios komfortą ir funkcionalumą. Be to, galėsite mėgautis plačiu patogumų spektru:

  • privatus baseinas
  • soliariumas
  • vasaros virtuvė
  • sodas
  • garažas

Gyvenimas čia suteikia išskirtinę gyvenimo kokybę – jus supa gamtos grožis, o iki pagrindinių paslaugų patogu nuvykti. Kainos svyruoja nuo 960 000 € iki 1 150 000 €, o gyvenamasis plotas – nuo 196 m² iki 270 m², tad šie objektai yra idealus prabangos ir komforto derinys.

Nepraleiskite progos susikurti savo namus šioje itin paklausioje Kosta Blankos vietovėje. Susisiekite su mumis dėl išsamesnės informacijos ir virtualios apžiūros – atsiųsime jums pateikties nuorodą.

Patogumai

  • Soliarumas
  • Sodas
  • Privatus baseinas
  • Garažo vietos
  • Lauko virtuvė

Vaizdo įrašas

Vietovės

Panašūs objektai


Paskutiniai peržiūrėti objektai


WhatsApp