Preloader
Pardavimui
Naujos statybos

Šiuolaikiški 2–3 kambarių apartamentai gamtos apsuptyje Ispanijoje

Relleu

  • Bendr. plotas, m²256 м2
  • Miegamieji4 Miegamieji
  • Vonia2 Vonia

Konvertuoti 269 000 €

Bendra informacija Rodyti žemėlapyje

  • Miestas: Relleu
  • Provincija: Alicante
  • Pakrantė: Costa Blanca
  • Baseinas: Taip
  • Kalnuose: Taip
  • Miške: Taip
  • Kaimo vietovėje: Taip
  • Priemiestyje: Taip
  • Miesto centre: Taip
  • Sodybų kaime: Taip
  • Vaizdas į kalnus: Taip
  • Vaizdas į mišką: Taip
  • Vaizdas į jūrą: Taip
  • Vaizdas į ežerą: Taip
  • Vaizdas į upę: Taip
  • Panoraminis vaizdas: Taip
  • Vaizdas į gatvę: Taip

Aprašas

Sveiki atvykę į mūsų išskirtinius apartamentus, kuriuose elegancija dera su gamta. Siūlome kruopščiai suprojektuotus 2–3 kambarių būstus.

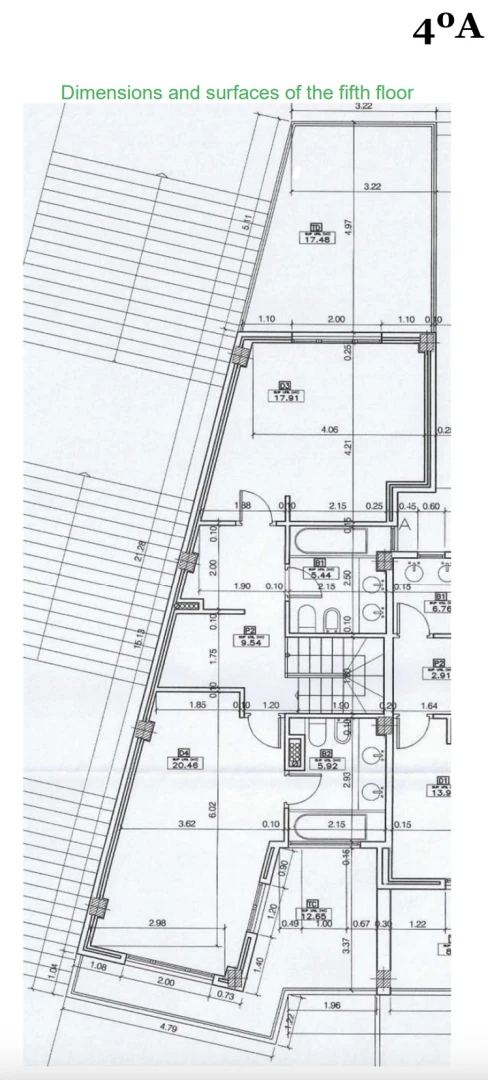
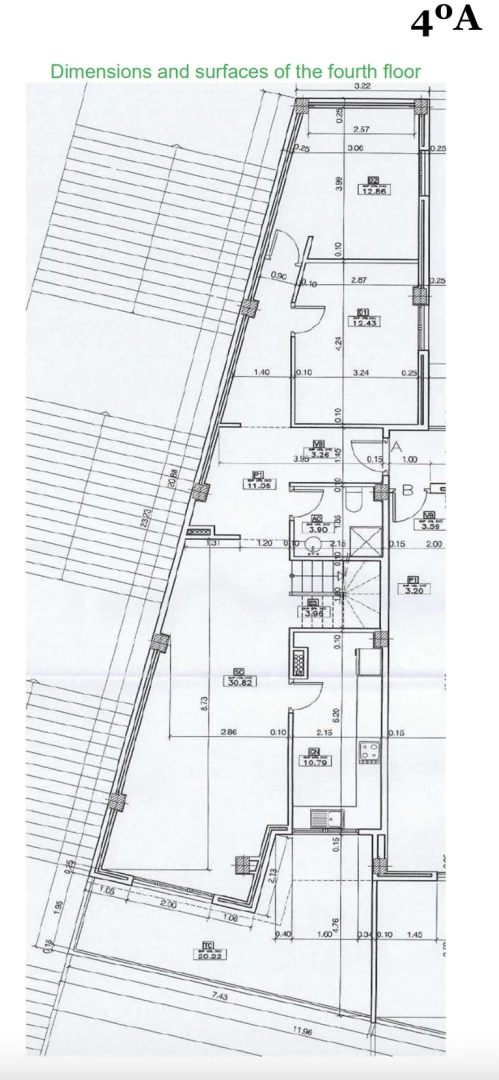
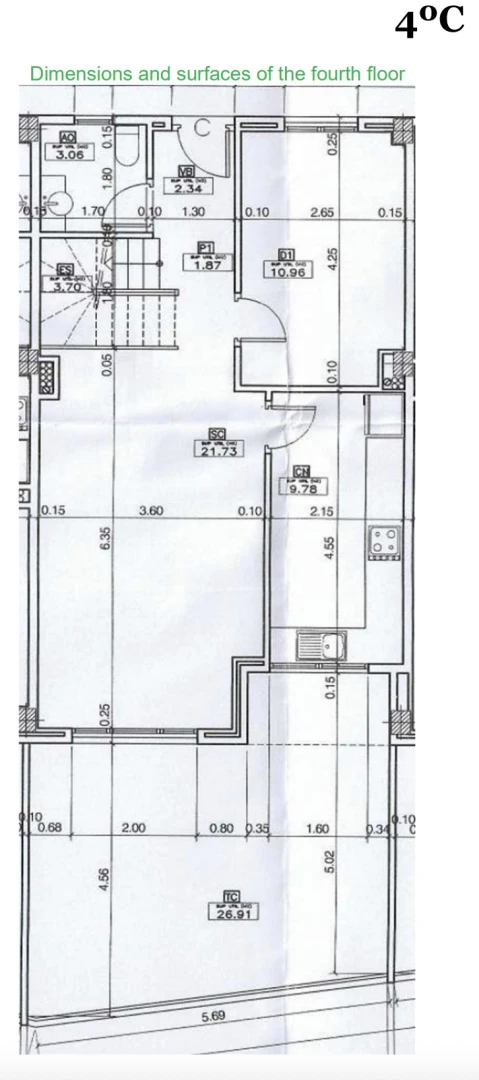
Rinkitės iš apartamentų, kurių plotas nuo 99 m² iki 194 m², su rafinuotai įrengtomis gyvenamosiomis erdvėmis. Mėgaukitės erdviais, šviesiais kambariais ir įspūdingais vaizdais, atsiveriančiais pro langus.

Pasinaudokite proga gyventi vietoje, kur šiuolaikinis prabangus stilius dera su autentišku ispanišku charakteriu. Kainos svyruoja nuo 144 000 € iki 254 000 €, todėl lengvai rasite pasiūlymą pagal savo poreikius ir biudžetą.

Patirkite ramybę ir aplinkos žavesį ramioje aplinkoje, kurią papildo gyvybinga vietos bendruomenė. Gaminkite modernioje atviro plano virtuvėje arba leiskite laiką erdvioje terasoje, kuri jus sujungia su įspūdinga šio regiono gamta.

Patogumai

  • Privatus baseinas
  • Bendras baseinas
  • Sporto salė
  • Vidaus baseinas
  • Virtuvė su sala
  • Erdvi automobilių stovėjimo aikštelė

Vaizdo įrašas

Vietovės

Panašūs objektai


Paskutiniai peržiūrėti objektai


WhatsApp