Preloader
Pardavimui
Naujos statybos

Prabangių vilų kvartalas su privačiais baseinais ir terasomis prie jūros

San Pedro del Pinatar

  • Bendr. plotas, m²111 м2
  • Miegamieji3 Miegamieji
  • Vonia2 Vonia

Konvertuoti 389 000 €

Bendra informacija Rodyti žemėlapyje

  • Miestas: San Pedro del Pinatar
  • Provincija: Murcia
  • Pakrantė: Costa Blanca
  • Sklypo plotas, m²: 103
  • Baseinas: Taip
  • Kalnuose: Taip
  • Miške: Taip
  • Kaimo vietovėje: Taip
  • Priemiestyje: Taip
  • Miesto centre: Taip
  • Sodybų kaime: Taip
  • Vaizdas į kalnus: Taip
  • Vaizdas į mišką: Taip
  • Vaizdas į jūrą: Taip
  • Vaizdas į ežerą: Taip
  • Vaizdas į upę: Taip
  • Panoraminis vaizdas: Taip
  • Vaizdas į gatvę: Taip

Aprašas

Atraskite išskirtinį projektą – atskirus namus-vilas su stilingu ir elegantišku dizainu, kiekvieną su privačiu baseinu, kuris papildo prabangų gyvenimo būdą.

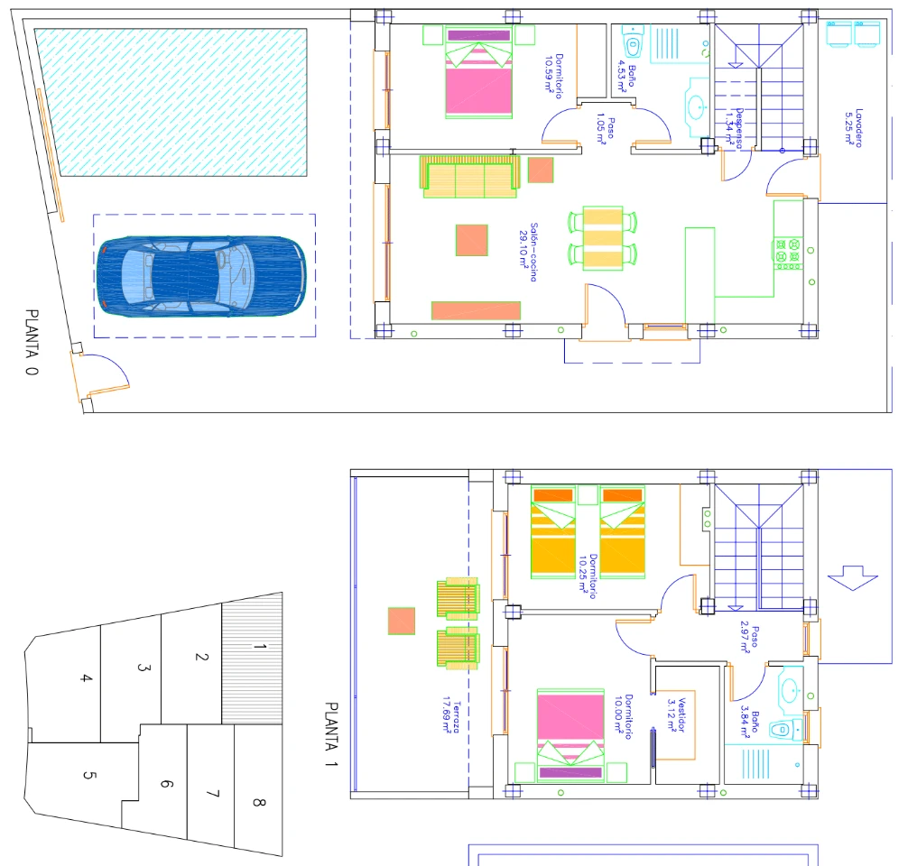
Pirmame aukšte įrengtas šiuolaikiškas atviras išplanavimas: svetainė, valgomasis ir virtuvė harmoningai sujungti į vieną erdvę, o dideli vitrininiai langai atveria vaizdą į terasą ir baseiną. Šiame aukšte taip pat yra viena miegamoji ir vonios kambarys.

Antrame aukšte rasite dar du papildomus miegamuosius, iš kurių kiekvienas turi išėjimą į erdvią terasą ir savo vonios kambarį. Kai kuriuose namuose numatyta galimybė įrengti ant stogo esančią terasą, į kurią patenkama vidiniais laiptais.

Siūlomi įvairūs vilų tipai, kurie apjungia šiuos privalumus. Namai parduodami su modernia buitinės technikos įranga ir pilnai įrengtais vonios kambariais. Kiekvienoje viloje suprojektuota skalbykla, miegamuosiuose įrengtos į sieną įmontuotos spintos su LED apšvietimu, o pagrindinis miegamasis turi atskirą drabužinę. Visi namai paruošti oro kondicionavimo sistemų įrengimui.

Privatus baseinas su sūkurine vonia ir vieta automobiliui sklype suteikia namams išskirtinį patrauklumą ir komfortą.

Šie įspūdingi namai įsikūrę vaizdingoje Mursijos srities aplinkoje. Vos už maždaug 1,9 km nuo Viduržemio jūros ir Mar Menoro paplūdimių esanti vieta užtikrina idealų gamtos ir miesto gyvenimo balansą. Patogus susisiekimas su visomis reikalingomis paslaugomis ir lengvas privažiavimas iki miesto centro garantuoja išskirtinę gyvenimo patirtį.

Mėgaukitės naujaisiais namais, sukurtais taip, kad užtikrintų maksimalų komfortą, stilių ir funkcionalumą.

Patogumai

  • Privatus baseinas

Vaizdo įrašas

Vietovės

Panašūs objektai


Paskutiniai peržiūrėti objektai


WhatsApp