Preloader
Pardavimui
Naujos statybos

Prabangūs apartamentai ir penthausai su baseinu Alikantės centre

Torrevieja

  • Bendr. plotas, m²101 м2
  • Miegamieji2 Miegamieji
  • Vonia2 Vonia

Konvertuoti 469 000 €

TerasaVaizdas į jūrą

Bendra informacija Rodyti žemėlapyje

  • Miestas: Torrevieja
  • Provincija: Alicante
  • Pakrantė: Costa Blanca
  • Balkonai / terasos: Taip
  • Baseinas: Taip
  • Kalnuose: Taip
  • Miške: Taip
  • Kaimo vietovėje: Taip
  • Priemiestyje: Taip
  • Miesto centre: Taip
  • Sodybų kaime: Taip
  • Vaizdas į kalnus: Taip
  • Vaizdas į mišką: Taip
  • Vaizdas į jūrą: Taip
  • Vaizdas į ežerą: Taip
  • Vaizdas į upę: Taip
  • Panoraminis vaizdas: Taip
  • Vaizdas į gatvę: Taip

Aprašas

Alikantės Costa Blanca paklausiausioje vietovėje iškilo naujas prabangos simbolis. Penkių aukštų išskirtinis kompleksas siūlo 34 būstus, kurie iš naujo apibrėžia komfortą ir rafinuotumą gyvybingame miesto centre.

Strategiškai patogioje vietoje esantis projektas dera eleganciją ir modernumą, suteikdamas gyventojams puikų susisiekimą su įvairiomis paslaugomis, parduotuvėmis ir lankytinomis vietomis. Inovatyvus dizainas maksimaliai išnaudoja natūralią šviesą, sukuriant jaukias ir šviesias erdves, skatinančias gerą savijautą.

  • Šiuolaikiška atvira virtuvė
  • Aeroterminis šildymas karštam vandeniui
  • Sūkurinė vonia (jacuzzi)
  • Terasa
  • Įspūdingas baseinas ant stogo su soliariumu

Nuo elegantiškų apartamentų iki prabangių penthausų su vaizdu į jūrą – kiekviena šio projekto erdvė kruopščiai suprojektuota taip, kad atitiktų įvairius gyvenimo stilius. Tai ne tik vieta gyventi, bet ir tikri namai, kuriuose išsipildo svajonės ir kiekviena gyvenimo akimirka tampa ypatinga.

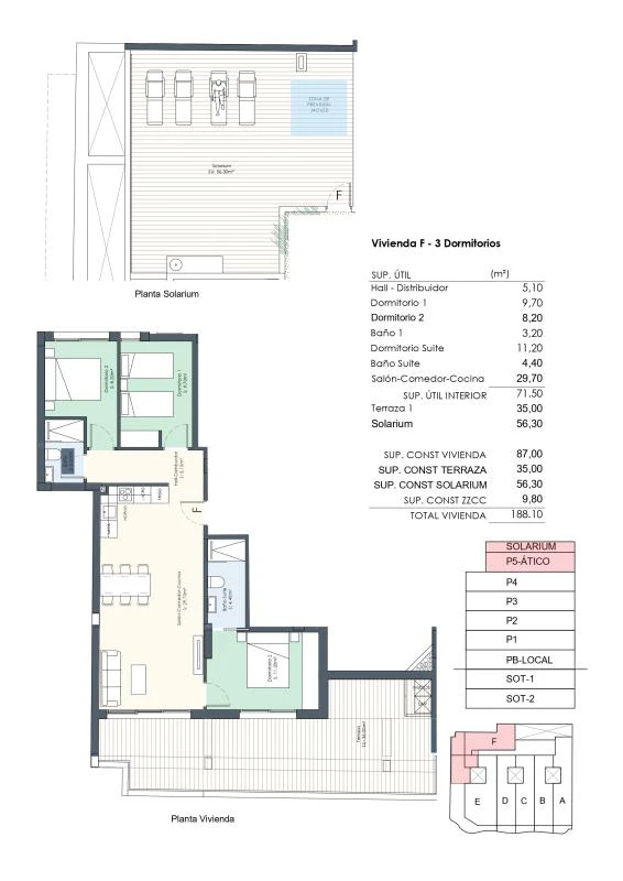
Būstai parduodami už kainą nuo 339 000 € iki 469 000 €, jų plotas – nuo 85 m² iki 188 m². Siūlomi 2–3 miegamųjų apartamentai, pritaikyti skirtingų šeimų poreikiams.

Patogumai

  • Terasa
  • Soliarumas
  • Privatus baseinas
  • Bendras baseinas

Vaizdo įrašas

Vietovės

Panašūs objektai


Paskutiniai peržiūrėti objektai


WhatsApp