Preloader
Pardavimui
Naujos statybos

Prabangūs šeimos namai su baseinu ir soliariumu netoli Torrevjechos paplūdimio

Torrevieja

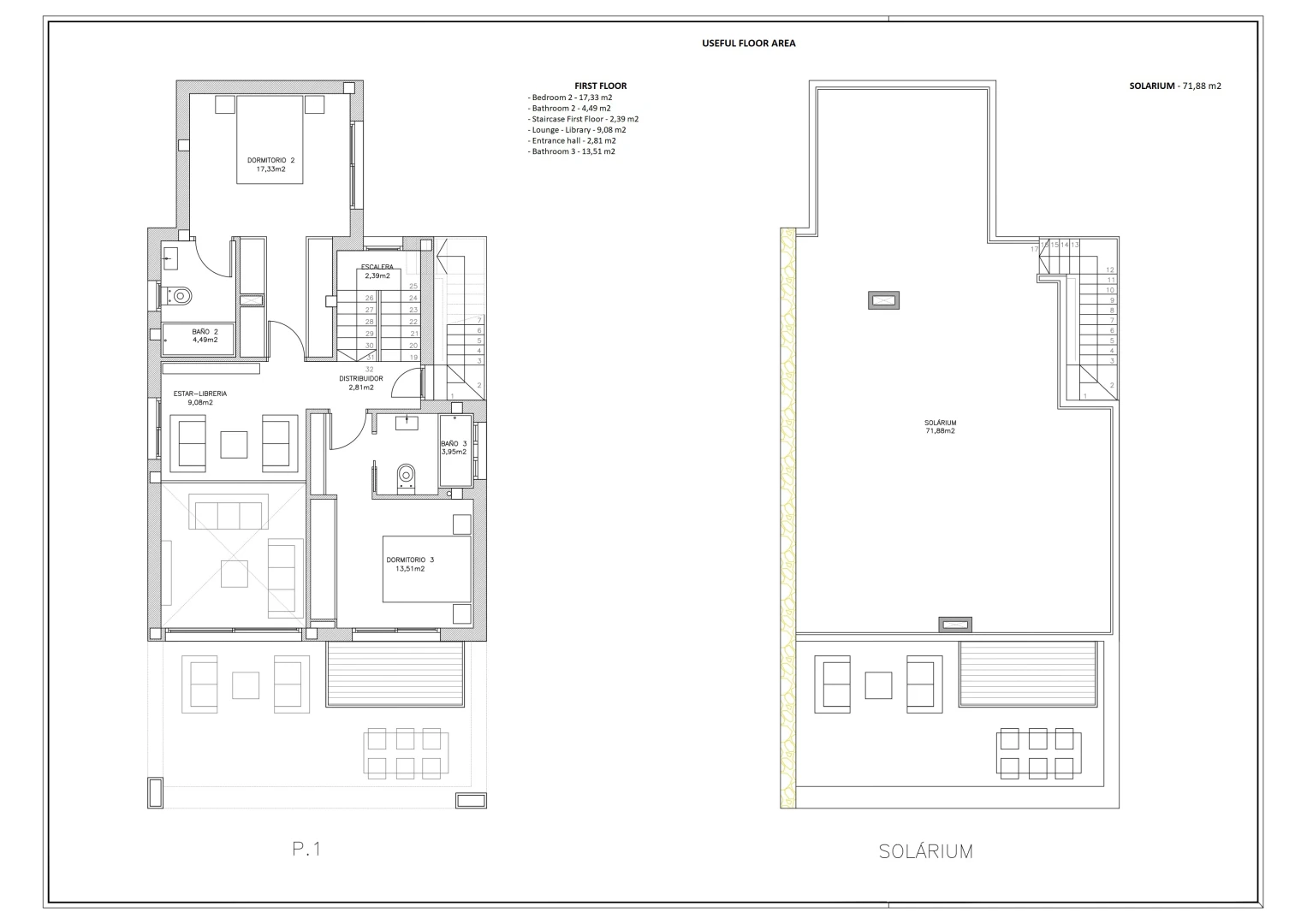
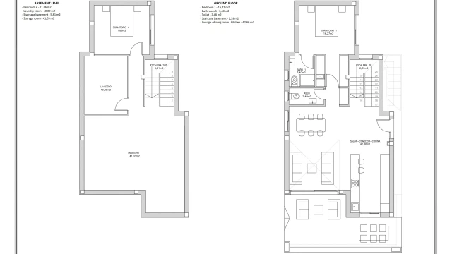
  • Bendr. plotas, m²238 м2
  • Miegamieji4 Miegamieji
  • Vonia2 Vonia

Konvertuoti 750 000 €

TerasaSodasSandėliukasRūsys

Bendra informacija Rodyti žemėlapyje

  • Miestas: Torrevieja
  • Provincija: Alicante
  • Pakrantė: Costa Blanca
  • Balkonai / terasos: Taip
  • Sodas: Taip
  • Baseinas: Taip
  • Kalnuose: Taip
  • Miške: Taip
  • Kaimo vietovėje: Taip
  • Priemiestyje: Taip
  • Miesto centre: Taip
  • Sodybų kaime: Taip
  • Vaizdas į kalnus: Taip
  • Vaizdas į mišką: Taip
  • Vaizdas į jūrą: Taip
  • Vaizdas į ežerą: Taip
  • Vaizdas į upę: Taip
  • Panoraminis vaizdas: Taip
  • Vaizdas į gatvę: Taip

Aprašas

Atraskite įspūdingus būsto variantus žavingame Torrevjechos rajone. Šie prabangūs namai siūlo keturis erdvius miegamuosius ir keturias pilnai įrengtas vonios kambarių, idealiai suprojektuotus atitikti įvairių šeimų poreikius.

Šiuolaikiška amerikietiško tipo virtuvė sklandžiai pereina į svetainės erdvę, sukurdama atvirą, šviesią ir jaukią atmosferą. Namuose įrengtos sieninės spintos, yra privatus sodas su baseinu poilsiui gryname ore.

Be to, kiekvienas objektas turi privačią parkavimo vietą ir soliariumą ant stogo – idealiai tinka mėgautis maloniu Viduržemio jūros klimatu. Taip pat įrengtas rūsys, suteikiantis papildomos erdvės, kurią galima pritaikyti įvairiems poreikiams.

Vos 15 minučių pėsčiomis iki garsiojo paplūdimio – tai išskirtinė galimybė įsigyti būstą, kurio kaina nuo 730 000 €, užtikrinant puikų kainos ir kokybės santykį itin paklausioje vietovėje.

Gyvybingoje Alikantės provincijoje esanti Torrevjecha garsėja saulėtu klimatu ir žavingais Kosta Blankos paplūdimiais. Miestas dera tradicinį žavesį su šiuolaikiniu patogumu, kas atsispindi jo vaizdingose pakrantės promenadose su daugybe pramogų ir turistinių objektų.

Netoli centro esantis Jūros ir druskos muziejus leidžia susipažinti su žvejybinės ir druskos pramonės miesto istorija. Gamtos parkas „Lagunas de La Mata–Torrevieja“ su vaizdingais takais ir įspūdingomis rožinėmis bei žaliomis lagūnomis – ideali vieta pasivaikščiojimams ir poilsiui gamtoje.

Patogų susisiekimą su pasauliu užtikrina netoliese esantis Alikantės oro uostas, pasiekiamas maždaug per 40 minučių automobiliu, ir Mursijos oro uostas, esantis maždaug valandos kelio atstumu.

Patogumai

  • Terasa
  • Soliarumas
  • Sandėliukas
  • Sodas
  • Rūsys
  • Įmontuotos spintos
  • Privatus baseinas
  • Privatus parkingas

Vaizdo įrašas

Vietovės

Panašūs objektai


Paskutiniai peržiūrėti objektai


WhatsApp