Preloader
Pardavimui
Naujos statybos

Šiuolaikinė vila su baseinu ir soliarumu prestižiniame Algorfos komplekse

Algorfa

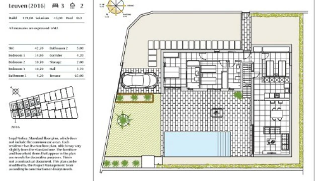
  • Bendr. plotas, m²119 м2
  • Miegamieji3 Miegamieji
  • Vonia2 Vonia

Konvertuoti 519 000 €

TerasaSodasSandėliukasRūsysGrilisGaražo vietosVidinis kiemasVaizdas į gatvę

Bendra informacija Rodyti žemėlapyje

  • Miestas: Algorfa
  • Provincija: Alicante
  • Pakrantė: Costa Blanca
  • Statybos metai: 2024
  • Sklypo plotas, m²: 433
  • Terasos plotas, m²: 110
  • Aukštas: 1
  • Balkonai / terasos: Taip
  • Garažo vietos: 1
  • Sodas: Taip
  • Baseinas: Taip
  • Atstumas iki jūros (m): 19000
  • Kalnuose: Taip
  • Miške: Taip
  • Kaimo vietovėje: Taip
  • Priemiestyje: Taip
  • Miesto centre: Taip
  • Sodybų kaime: Taip
  • Vaizdas į kalnus: Taip
  • Vaizdas į mišką: Taip
  • Vaizdas į jūrą: Taip
  • Vaizdas į ežerą: Taip
  • Vaizdas į upę: Taip
  • Panoraminis vaizdas: Taip
  • Vaizdas į gatvę: Taip

Aprašas

Siūloma įspūdinga vila gražiame, šiuolaikiniame gyvenamajame komplekse Algorfos miestelyje.

Vilos plotas – 119 kv. m. Numatyti trys miegamieji kambariai, du vonios kambariai, erdvi svetainė su atvira virtuve, nuosavas 478 kv. m sklypas ir didelė 65 kv. m terasa, nuo kurios atsiveria nuostabūs vaizdai. Soliariumo plotas – 45 kv. m. Įrengtas privatus 8 x 3 m baseinas.

Į kainą įskaičiuota:

  • pilnai įrengti vonios kambariai su grindų šildymu
  • įrengta virtuvė su baldais
  • išvedžiota oro kondicionavimo sistema (išankstinė instaliacija)
  • signalizacija su judesio davikliais ir vaizdo kameromis
  • šarvuotos įėjimo durys
  • įmontuotos spintos
  • elektrinės žaliuzės
  • dvigubi langų stiklo paketai
  • įrengtos dušo pertvaros, spintelės ir veidrodžiai

Statant ir įrengiant namą naudojamos tik aukštos kokybės medžiagos. Namas išsiskiria šiuolaikiniu dizainu – natūralaus akmens ir medžio derinys suteikia interjerui jaukumo ir prabangos.

Šį objektą galima rezervuoti sumokėjus 6000 eurų avansą.

Kosta Blanka – tikras Viduržemio jūros pakrantės rojus. Vien šiame krante yra apie 170 puikių paplūdimių ir įlankų. Kraštovaizdis labai įvairus: gamtos parkai, sūrūs ežerai ir kalnai. Alikantės provincija garsėja 22 golfo laukais. Tai puiki vieta gyventi, atostogauti ir dirbti.

Vila yra rajone su puikiai išvystyta infrastruktūra: restoranai, parduotuvės, prekybos centras, vaistinės, autobusų stotelės, parkai, kavinės, barai, golfo aikštynai. Atstumas iki jūros – apie 17 km.

Puiki vila idealiai tinka tiems, kurie ieško gražių, stilingų namų prestižinėje vietoje, visai šalia visų būtiniausių paslaugų ir pramogų.

Galima nuotolinė rezervacija, taip pat pirkimas išsimokėtinai, su 3–4 % palūkanomis.

Perkant nekilnojamąjį turtą Ispanijoje, galima gauti leidimą gyventi šalyje. Mūsų įmonė padeda sutvarkyti bet kokio tipo leidimus gyventi. Įsigyjant nekilnojamąjį turtą, kurio vertė viršija 300 000 eurų, leidimą gyventi padedame gauti kaip papildomą nemokamą paslaugą.

Patogumai

  • Terasa
  • Soliarumas
  • Sandėliukas
  • Sodas
  • Grilis
  • Spinta
  • Kiemo terasa
  • Rūsys
  • Virtuvės baldai
  • Įmontuotos spintos
  • Automatinis laistymas
  • Automatinės durys
  • Oro kondicionierius
  • Individualus oro kondicionavimas
  • Individualus šildymas
  • Šildomos grindys vonioje
  • Internetas
  • Greitas internetas
  • Interjero magnetinės durys
  • Signalizacija
  • Šarvuotos durys
  • Privatus baseinas
  • Garažo vietos

Vaizdo įrašas

Vietovės

Panašūs objektai


Paskutiniai peržiūrėti objektai


WhatsApp