Preloader
Pardavimui
Naujos statybos

Šiuolaikinės vilos su baseinu ir soliarumu ramioje Benijofaro gyvenvietėje

Benijófar

  • Bendr. plotas, m²200 м2
  • Miegamieji3 Miegamieji
  • Vonia3 Vonia

Konvertuoti 515 000 €

ŽidinysGrilisGaražo vietos

Bendra informacija Rodyti žemėlapyje

  • Miestas: Benijófar
  • Provincija: Alicante
  • Pakrantė: Costa Blanca
  • Garažo vietos: 1
  • Baseinas: Taip
  • Kalnuose: Taip
  • Miške: Taip
  • Kaimo vietovėje: Taip
  • Priemiestyje: Taip
  • Miesto centre: Taip
  • Sodybų kaime: Taip
  • Vaizdas į kalnus: Taip
  • Vaizdas į mišką: Taip
  • Vaizdas į jūrą: Taip
  • Vaizdas į ežerą: Taip
  • Vaizdas į upę: Taip
  • Panoraminis vaizdas: Taip
  • Vaizdas į gatvę: Taip

Aprašas

Išskirtinės, šiuolaikiškos vilos, esančios ramioje Benijofaro gyvenamojoje zonoje, vos kelios minutės kelio nuo Guardamaro paplūdimių ir visų būtiniausių paslaugų. Šie elegantiški namai sujungia modernų dizainą, aukštos kokybės statybą ir energinį efektyvumą privilegijuotoje Viduržemio jūros aplinkoje.

Kiekvienoje viloje yra 3 erdvūs miegamieji ir 3 vonios kambariai, išdėstyti bendrame maždaug 200 m² užstatytame plote. Vidaus erdvės išsiskiria šviesumu dėl didelių langų ir apgalvotos orientacijos, leidžiančios mėgautis natūralia šviesa visą dieną.

Namas turi visiškai įrengtą rūsį su pilnai įrengtu vonios kambariu, galerija ir skalbykla, taip pat nuosavą liftą, jungiantį visus aukštus.

  • Privatus soliarumas su kepsninės zona ir plautuve – ideali vieta šeimos poilsiui
  • Privatus baseinas su dekoratyviniu kriokliu, sukuriantis ypatingą komfortą mėgaujantis Kosta Blankos klimatu

Komfortą užtikrina aeroterminis šildymo ir karšto vandens ruošimo sprendimas, pasirengimas ortakiniam oro kondicionavimui, LED apšvietimas ir trys saulės baterijos, didinančios namo energinį efektyvumą.

Virtuvė visiškai įrengta: viršutinės ir apatinės spintelės, plautuvė ir keraminis ar panašus stalviršis. Vonios kambariuose sumontuoti pakabinami praustuvai, kokybiški maišytuvai, dušo padėklai su stiklinėmis pertvaromis ir moderni apdaila.

Interjerą papildo dekoratyvinis židinys svetainėje, suteikiantis gyvenamajai erdvei elegancijos ir jaukumo.

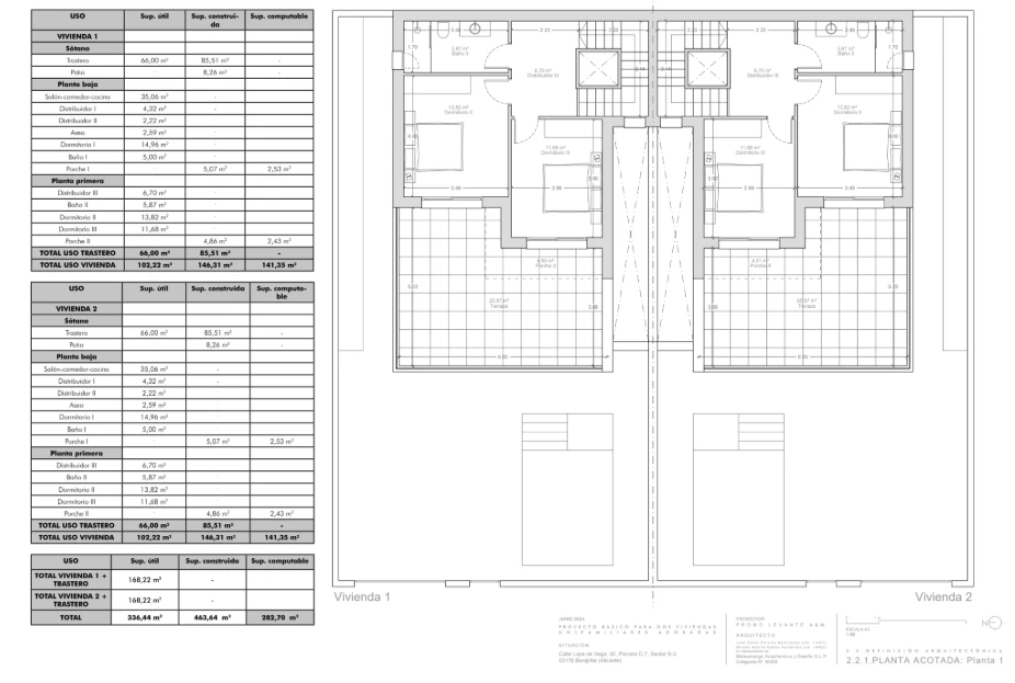
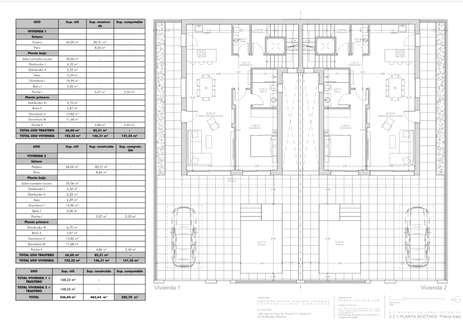
  • Bendras užstatytas plotas: 200,93 m²
  • Naudingas gyvenamasis plotas: 102,22 m²
  • Rūsio plotas: 66 m²
  • Terasos ir soliarumas: 98,71 m²
  • Miegamieji: 3
  • Vonios kambariai: 3
  • Kaina nuo: 515 000 €

Tai išskirtinė galimybė ieškantiems šiuolaikinės vilos su aukštais kokybės standartais, ramioje Viduržemio jūros aplinkoje, netoli jūros ir visų reikalingų paslaugų.

Patogumai

  • Grilis
  • Židinys
  • Privatus baseinas
  • Garažo vietos
  • Žaliosios zonos
  • Virtuvė su sala
  • Saulės energija

Vaizdo įrašas

Vietovės

Panašūs objektai


Paskutiniai peržiūrėti objektai


WhatsApp