Preloader
Pardavimui
Naujos statybos

Šiuolaški butai ir penthausai Algorfėje – stilingas gyvenimas gamtos apsuptyje

Algorfa

  • Bendr. plotas, m²73 м2
  • Miegamieji2 Miegamieji
  • Vonia2 Vonia

Konvertuoti 210 223 €

Vaizdas į gatvę

Bendra informacija Rodyti žemėlapyje

  • Miestas: Algorfa
  • Provincija: Alicante
  • Pakrantė: Costa Blanca
  • Baseinas: Taip
  • Kalnuose: Taip
  • Miške: Taip
  • Kaimo vietovėje: Taip
  • Priemiestyje: Taip
  • Miesto centre: Taip
  • Sodybų kaime: Taip
  • Vaizdas į kalnus: Taip
  • Vaizdas į mišką: Taip
  • Vaizdas į jūrą: Taip
  • Vaizdas į ežerą: Taip
  • Vaizdas į upę: Taip
  • Panoraminis vaizdas: Taip
  • Vaizdas į gatvę: Taip

Aprašas

Vaizdingoje Algorfos vietovėje esantis novatoriškas projektas iš naujo apibrėžia šiuolaikinį gyvenimą, siūlydamas stilių ir komfortą. Planuojama projekto pabaiga – 2025 m.

Komplekse numatytos išskirtinės gyvenamosios erdvės – apartamentai ir penthausai, pritaikyti įvairiems poreikiams ir gyvenimo būdams.

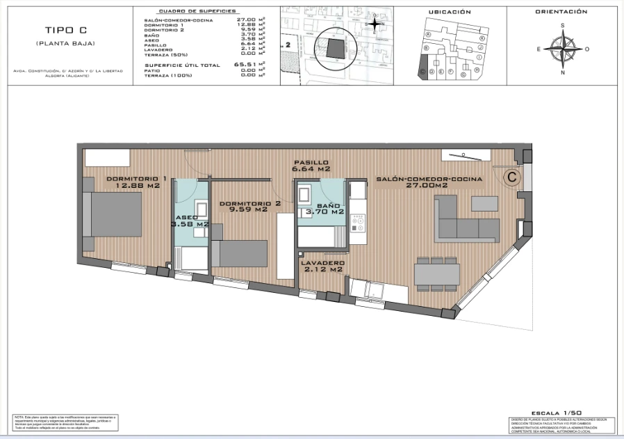
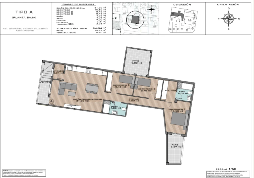
  • Plotas: nuo 61 m² iki 85 m². Daugiapaskirtės erdvės suplanuotos taip, kad atitiktų skirtingus gyvenimo stilius.
  • Miegamieji: 2–3 miegamųjų apartamentų variantai tinka ir vienišiams, ir augančioms šeimoms.
  • Virtuvė: šiuolaikiška amerikietiško tipo virtuvė, atvira erdvė, harmoningai derinanti funkcionalumą ir estetiką – puikus pasirinkimas vertinantiems modernų dizainą.
  • Aukštai: 3 aukštų pastatas užtikrina privatumą ir komfortą kiekviename būste.

Šis projektas – tai ne tik vieta gyventi, bet ir siekis užtikrinti aukštą gyvenimo kokybę bei šiuolaikinę architektūrą.

Strategiškai patogi vieta ir modernus požiūris į gyvenamąją aplinką daro šį projektą idealiu pasirinkimu ieškantiems komforto ir šiuolaikiškumo.

Kainos intervalas – nuo 149 350 € iki 240 814 €, todėl šie būstai yra patrauklus pasirinkimas plačiam pirkėjų ratui.

Patogumai

  • Privatus baseinas
  • Bendras baseinas
  • Sporto salė
  • Virtuvė su sala

Vaizdo įrašas

Vietovės

Panašūs objektai


Paskutiniai peržiūrėti objektai


WhatsApp