Preloader
Pardavimui
Naujos statybos

Šiuolaikiškas ir tvarus būstas šalia jūros, Costa Blancoje

Gran Alacant

  • Bendr. plotas, m²118 м2
  • Miegamieji2 Miegamieji
  • Vonia2 Vonia

Konvertuoti 279 000 €

Rūsys

Bendra informacija Rodyti žemėlapyje

  • Miestas: Gran Alacant
  • Provincija: Alicante
  • Pakrantė: Costa Blanca
  • Baseinas: Taip
  • Kalnuose: Taip
  • Miške: Taip
  • Kaimo vietovėje: Taip
  • Priemiestyje: Taip
  • Miesto centre: Taip
  • Sodybų kaime: Taip
  • Vaizdas į kalnus: Taip
  • Vaizdas į mišką: Taip
  • Vaizdas į jūrą: Taip
  • Vaizdas į ežerą: Taip
  • Vaizdas į upę: Taip
  • Panoraminis vaizdas: Taip
  • Vaizdas į gatvę: Taip

Aprašas

Šie modernaus ir Viduržemio jūros stiliaus vienbučiai namai išsiskiria funkcionaliu, šviesiu ir komfortišku dizainu.

Namas pastatytas iš aukščiausios kokybės medžiagų, siekiant maksimaliai išnaudoti erdvę ir natūralią šviesą. Tai erdvūs, jaukūs ir harmoningi namai.

Dizainas ir išplanavimas

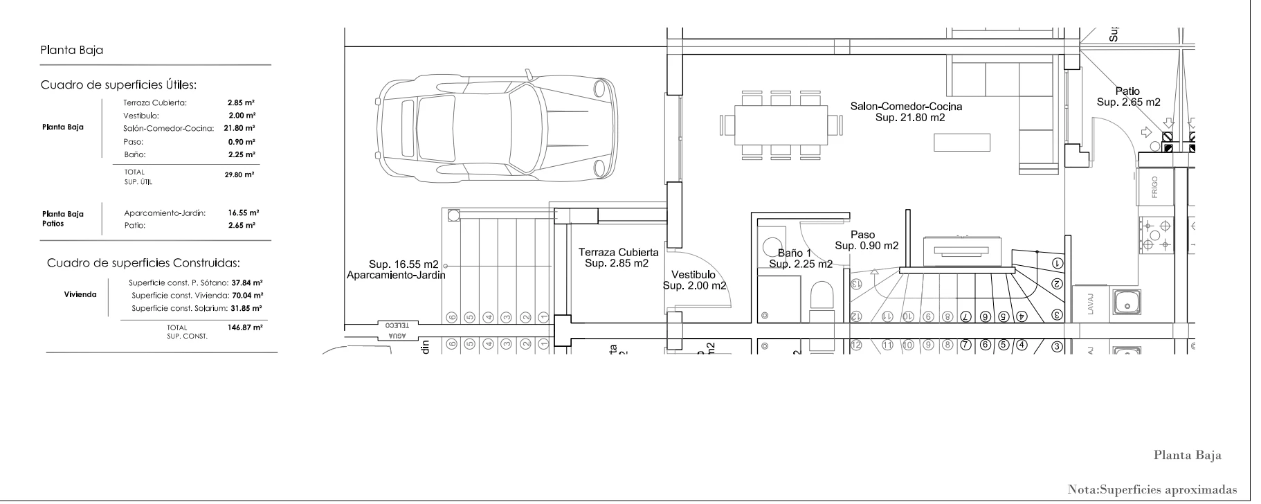
Gyvenamąjį kompleksą sudaro sublokuoti bungalow tipo namai, kurie užtikrina didesnę nepriklausomybę ir privatumą, su tiesioginiu patekimu iš lauko.

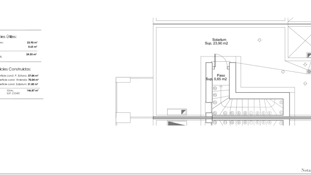
Kiekvienas būstas turi privačią antžeminę parkavimo vietą, pilnai įrengtą rūsį ir stogo terasą–soliariumą, puikiai tinkančią mėgautis saule ir vaizdais.

Vidaus erdvės apjungia eleganciją ir funkcionalumą: pusiau atskira virtuvė, atvira svetainė su valgomojo zona ir dideli vitrininiai langai, kurių dėka erdvė sklandžiai pereina į išorę.

Pagrindinės savybės

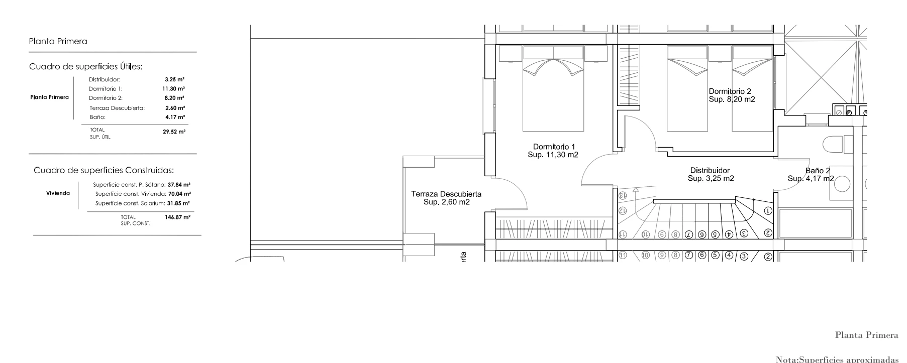
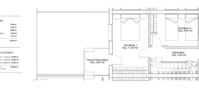
  • Plotas paskirstytas per 3 aukštus
  • 2 miegamieji ir 2 vonios kambariai
  • Pagrindinis miegamasis su išėjimu į viršutinį balkoną
  • Pilnai įrengta pusiau atskira virtuvė
  • Svetainė su valgomojo zona ir dideliais vitrininiais langais
  • Įrengtas rūsys ir vidinis kiemelis
  • Privatus stogo soliariumas
  • Bendras baseinas ir apželdintos poilsio zonos
  • Lauko parkavimo vieta privačiam naudojimui
  • Aukštos kokybės medžiagos ir apdaila
  • Saulės energijos sistema su saulės moduliais ir kaupikliu
  • Įrengtas aeroterminis vandens šildytuvas

Apdaila ir kokybė

  • Aukštos kokybės akmens masės (porceliano) grindų danga ir keraminiai sienų apdailos elementai
  • Šarvuotos, padidinto saugumo įėjimo durys
  • Balto aliuminio langai su terminiu tilto pertrūkiu ir dvigubu Climalit stiklo paketu
  • Lygus baltas plastikinis dažymas sienoms ir luboms
  • Virtuvės baldai iš postformuotos MDF plokštės su kompaktiško kvarco stalviršiu
  • Saulės energijos sistema buitinio karšto vandens ruošimui
  • Sienų konstrukcija iš dvigubo mūro su mineralinės vatos izoliacija, užtikrinanti šilumos ir garso izoliaciją

Bendros erdvės ir aplinka

Komplekse įrengtas bendras baseinas ir plačios apželdintos erdvės, sukurtos taip, kad gyventojai galėtų mėgautis ramybe ir gerove.

Projektas įsikūręs Monte y Mar rajone (Gran Alakant). Tai išskirtinė vieta, kurioje dera gamta, visapusiška infrastruktūra ir artumas jūrai.

Apytiksliai atstumai

  • Apie 5 min. kelio iki Alikantės–Elčės tarptautinio oro uosto
  • Apie 5 min. kelio iki Carabassí paplūdimių
  • Tiesioginis susisiekimas su N-332 keliu ir A-7 greitkeliu
  • Netoli prekybos centrų, parduotuvių ir gamtos teritorijų

Namai mėgstantiems gyvenimu mėgautis

Šie būstai derina Viduržemio jūros architektūrą ir šiuolaikinį dizainą, sukurdami šviesias, efektyvias ir komfortiškas erdves.

Kiekviena detalė kruopščiai apgalvota, kad gyventojams būtų suteikta išskirtinė gyvenimo patirtis.

Šiuolaikiškas, tvarus gyvenimas netoli jūros.

Išskirtinė galimybė gyventi arba investuoti į gerai išvystytą gyvenamąjį rajoną Kosta Blankoje.

Patogumai

  • Rūsys
  • Privatus baseinas
  • Privatus parkingas

Vaizdo įrašas

Vietovės

Panašūs objektai


Paskutiniai peržiūrėti objektai


WhatsApp